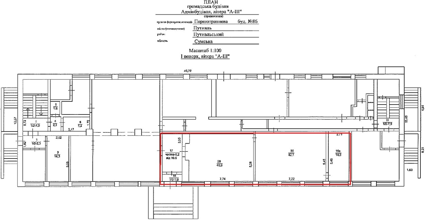
Сумська обл., м. Путивль, вул. Першотравнева, буд. 86. Оренда – офісні приміщення 1-го поверху площею 109,30 кв.м. (В)

13 116.00 грн
120.00 грн / м2
Україна, Сумська обл., м. Путивль, вул. Першотравнева, буд.86
Перейти до аукціону на сайті
  • Інформація
  • Опис
  • Документи
Дата оголошення пропозиції:
06 серпня 2021
Площа:
109.30 м2
Тип об’єкта:
Офіс
Тип аукціону:
Англійський аукціон
Статус аукціону:
Аукціон не відбувся
Тип угоди:
Оренда
Розмір мінімального кроку:
150.00 ₴
Розмір гарантійного внеску:
7 869.60 ₴
Початок прийому пропозицій:
06.08.2021 10:43:49
Завершення прийому пропозицій:
07.09.2021 20:00:00
Лот:
UA-PS-2021-08-06-000005-1
№ лоту (УТК):
UTK060821_07С
Лот виставляється на торги (раз):
1
Стислий опис майна:
Пропонуються до оренди офісні приміщення 1-го поверху площею 109,3 кв.м. центральної будівлі АТС в м. Путивль. Знаходиться в центральній частині міста. Вхід з торцевої частини будівлі. Добра візуалізація з дороги. Приміщення потребують косметичного ремонту. Характеристики: кількість поверхів – 3; Загальна площа – 1 203 кв.м.; Площа запропонована до оренди – 109,3 кв.м.; Опалення, електропостачання – наявне; водопостачання - відсутнє (є можливість користуватись водою та санвузлом на другому поверсі); Дозволена потужність – 5 кВт; земельна ділянка – 0,4002 га (договір оренди ЗД).
Адреса місцезнаходження майна:
Україна, Сумська обл., м. Путивль, вул. Першотравнева, буд.86
Схожі пропозиції
15.02.2023
Сумська обл., Роменський р-н, смт. Липова Долина, вул. Загорянка, 2. Оренда – офісні приміщення 1-го поверху площею 25,7 кв.м. (В)
1 017.72 грн
39.60 грн / м2
Офіс
Сумська обл., Роменський р-н, смт. Липова Долина, вул. Загорянка, 2. Оренда – офісні приміщення 1-го поверху площею 25,7 кв.м. (В)
Україна, Сумська обл., смт. Липова Долина, вулиця Загорянка, 2
18.04.2023
Сумська обл., м. Путивль, вул. Першотравнева, буд. 86. Оренда – офісні приміщення 1-го поверху площею 14,80 кв.м. (В)
500.98 грн
33.85 грн / м2
Офіс
Сумська обл., м. Путивль, вул. Першотравнева, буд. 86. Оренда – офісні приміщення 1-го поверху площею 14,80 кв.м. (В)
Україна, Сумська обл., м. Путивль, вул. Першотравнева, буд. 86
18.07.2023
Сумська обл., м. Суми, вул. Іллінська, буд. 2. Оренда – офісні приміщення 7-го поверху площею 89,80 кв.м. (В)
4 148.76 грн
46.20 грн / м2
Офіс
Сумська обл., м. Суми, вул. Іллінська, буд. 2. Оренда – офісні приміщення 7-го поверху площею 89,80 кв.м. (В)
Україна, Сумська обл., м. Суми, вул. Іллінська, буд. 2
02.09.2025
Сумська область, Конотопський р-н, с. Клепали, вул. Петровського, буд. 1. Оренда – офісні приміщення 1-го поверху площею 42,80 кв.м. (В)
720.75 грн
16.84 грн / м2
Офіс
Сумська область, Конотопський р-н, с. Клепали, вул. Петровського, буд. 1. Оренда – офісні приміщення 1-го поверху площею 42,80 кв.м. (В)
Україна, Сумська обл., Клепали, , Клепали, вул. Петровського, буд. 1
Переглянуті пропозиції
м. Рівне, вул. Транспортна,14. Оренда – приміщення 1-го та 2-го поверху
5 317.43 грн
17.66 грн / м2
Приміщення
м. Рівне, вул. Транспортна,14. Оренда – приміщення 1-го та 2-го поверху
Україна, Рівненська обл., м. Рівне, вул. Транспортна,14
05.09.2023
Полтавська обл., Лубенський р-н, с. Засулля, вул. Молодіжна, буд.20. Оренда – одноповерхова будівля площею 189,80 кв.м. (В)
1 275.46 грн
6.72 грн / м2
Будівля
Полтавська обл., Лубенський р-н, с. Засулля, вул. Молодіжна, буд.20. Оренда – одноповерхова будівля площею 189,80 кв.м. (В)
Україна, Полтавська обл., Лубенський р-н, с. Засулля, вул. Молодіжна, буд.20