ДОВГОСТРОКОВА ОРЕНДА! м. Київ, вул. Ісаакяна, 3 , Оренда – приміщення будівлі літ. «А», площею 1570,90 кв.м. (В)

309 734.35 грн
197.17 грн / м2
Україна, м.Київ, Київ, вул. Ісаакяна, 3
Перейти до аукціону на сайті
  • Інформація
  • Опис
  • Документи
Дата оголошення пропозиції:
11 серпня 2021
Площа:
1570.90 м2
Тип об’єкта:
Приміщення
Тип аукціону:
Англійський аукціон
Статус аукціону:
Аукціон не відбувся
Тип угоди:
Оренда
Розмір мінімального кроку:
3 000.00 ₴
Розмір гарантійного внеску:
185 840.61 ₴
Початок прийому пропозицій:
11.08.2021 08:46:25
Завершення прийому пропозицій:
09.09.2021 20:00:00
Лот:
UA-PS-2021-08-11-000013-1
№ лоту (УТК):
UTK080721_01Т
Лот виставляється на торги (раз):
2
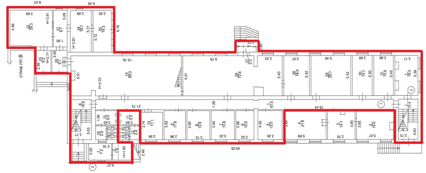
Стислий опис майна:
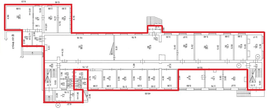
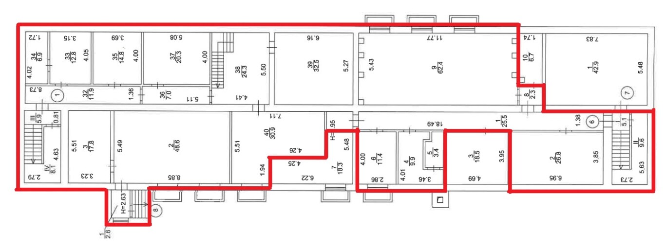
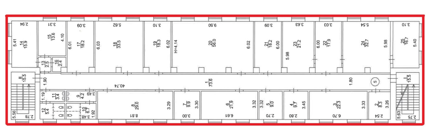
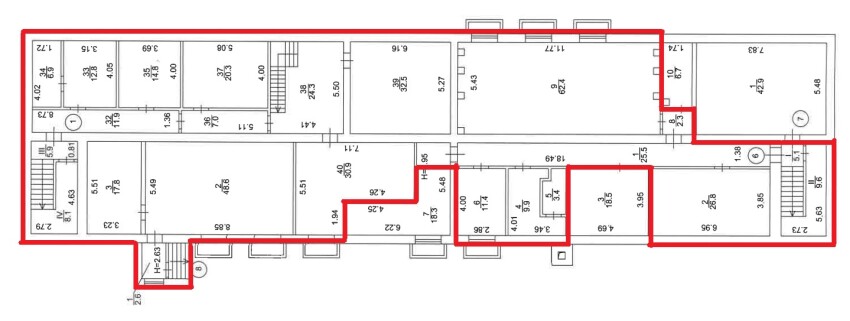
Пропонується до оренди приміщення будівлі літ «А», площею 1570,90 кв.м. Розташування будівлі у Шевченківському районі міста Києва, місцевість Шулявка. Поруч розвинена інфраструктура, зупинки швидкісного трамваю, маршрутного та громадського транспорту, магазини, кафе, аптеки. Вхід з двору, через прохідну. Доступ вільний 24/7. Характеристики: Загальна площа будівлі – 2069,60 м2; Площа запропонована до оренди – 1570,90 м2; Опалення – міське (централізоване) Кількість поверхів – 3; Загальна площа земельної ділянки – 0,2892 га;
Адреса місцезнаходження майна:
Україна, м.Київ, Київ, вул. Ісаакяна, 3
Схожі пропозиції
19.09.2023
м. Київ, вул. Василя Макуха (Шевцова Івана), 5. Довгострокова оренда – приміщення 3-го поверху площею 905,3 м2 (В)
132 137.59 грн
145.96 грн / м2
Приміщення
м. Київ, вул. Василя Макуха (Шевцова Івана), 5. Довгострокова оренда – приміщення 3-го поверху площею 905,3 м2 (В)
Україна, м.Київ, Київ, вул. Василя Макуха (Шевцова Івана), 5
м. Київ, вул. Джона Маккейна, 40, Оренда – приміщення 1-го поверху, площею 99,20 м2 (П)
26 407.04 грн
266.20 грн / м2
Приміщення
м. Київ, вул. Джона Маккейна, 40, Оренда – приміщення 1-го поверху, площею 99,20 м2 (П)
Україна, м.Київ, Київ, вул. Джона Маккейна, 40
м. Київ, вул. Олени Теліги, 39-г, літ. «А», оренда – частина приміщень виробничої будівлі, площею 1116,90 м2 (В)
160 163.46 грн
143.40 грн / м2
Приміщення
м. Київ, вул. Олени Теліги, 39-г, літ. «А», оренда – частина приміщень виробничої будівлі, площею 1116,90 м2 (В)
Україна, м.Київ, Київ, вул. Олени Теліги, 39-Г
Київ, вул. Джона Маккейна, №40, оренда – приміщення 1-го поверху, площею 65,60 м2 (В)
13 595.60 грн
207.25 грн / м2
Приміщення
Київ, вул. Джона Маккейна, №40, оренда – приміщення 1-го поверху, площею 65,60 м2 (В)
Україна, м.Київ, Київ, вул. Джона Маккейна, 40
Переглянуті пропозиції
10.10.2023
Сумська обл., Сумський р-н, смт. Краснопілля, вул. Сумська, 5. Оренда – офісне приміщення 1-го поверху площею 20,10 кв.м. (В)
530.64 грн
26.40 грн / м2
Офіс
Сумська обл., Сумський р-н, смт. Краснопілля, вул. Сумська, 5. Оренда – офісне приміщення 1-го поверху площею 20,10 кв.м. (В)
Україна, Сумська обл., Сумський р-н, смт. Краснопілля, вул. Сумська, 5
26.11.2025
м.Харків, вул. Конторська,14. Оренда – приміщення 1-го поверху, площею 15,2 кв.м  (В)
532.00 грн
35.00 грн / м2
Приміщення
м.Харків, вул. Конторська,14. Оренда – приміщення 1-го поверху, площею 15,2 кв.м (В)
Україна, Харківська обл., м. Харків, вул. Конторська,14
14.10.2025
 Полтавська обл., м. Зіньків, вулиця Воздвиженська, 36. Оренда –приміщення 3-го поверху загальною площею 103,80 кв.м. (В)
3 437.86 грн
33.12 грн / м2
Приміщення
Полтавська обл., м. Зіньків, вулиця Воздвиженська, 36. Оренда –приміщення 3-го поверху загальною площею 103,80 кв.м. (В)
Україна, Полтавська обл., Зіньків, вулиця Воздвиженська, 36
м. Київ, Антоновича 40 Оренда приміщень 6 пов.
273 168.00 грн
360.00 грн / м2
Приміщення
м. Київ, Антоновича 40 Оренда приміщень 6 пов.
Україна, м.Київ, місто Київ, вул. Антоновича, 40