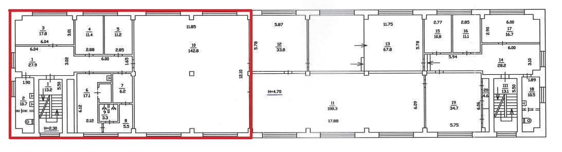
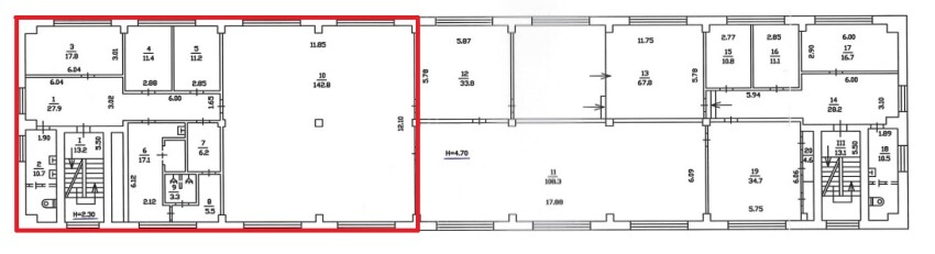
м. Київ, вул. Олени Теліги, 39-г, літ. «А», оренда – частина приміщень виробничої будівлі, площею 1116,90 м2 (В)

160 163.46 грн
143.40 грн / м2
Україна, м.Київ, Київ, вул. Олени Теліги, 39-Г
Перейти до аукціону на сайті
  • Інформація
  • Опис
  • Документи
Дата оголошення пропозиції:
19 березня 2021
Площа:
1116.90 м2
Тип об’єкта:
Приміщення
Тип аукціону:
Англійський аукціон
Статус аукціону:
Аукціон не відбувся
Тип угоди:
Оренда
Розмір мінімального кроку:
1 500.00 ₴
Розмір гарантійного внеску:
96 098.08 ₴
Початок прийому пропозицій:
19.03.2021 14:35:30
Завершення прийому пропозицій:
19.04.2021 20:00:00
Лот:
UA-PS-2021-03-19-000071-1
№ лоту (УТК):
UTK190321_02Т
Лот виставляється на торги (раз):
1
Стислий опис майна:
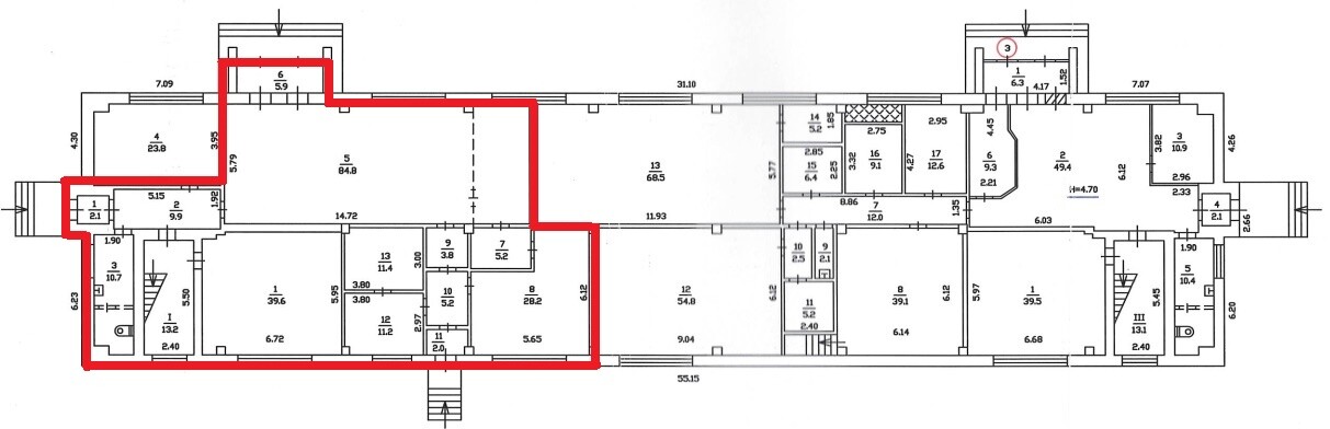
Пропонуються до оренди приміщення виробничої будівлі, літ. «А», площею 1116,90 м2. Будівля розташована в Шевченківському районі міста Києва, місцевість Сирець. Поруч розвинена інфраструктура, зупинки маршрутного транспорту, супермаркети, 5 хв. від ст. м. «Дорогожичі». Вхід з двору. Доступ 24/7. Характеристики кількість поверхів – 3; сан. вузол, каналізація, теплозабезпечення – присутнє, не задовільний стан; площа будівлі – літ. «А» - 2000,40 м2; опалення централізоване (міське); земельна ділянка – 0,3000 га.
Адреса місцезнаходження майна:
Україна, м.Київ, Київ, вул. Олени Теліги, 39-Г
Схожі пропозиції
17.06.2025
м. Київ, вул. Наталії Ужвій, 1 (Подільський р-н). Оренда – приміщення 2-го поверху, загальною площею – 78,90 м. кв. (В)
7 224.08 грн
91.56 грн / м2
Приміщення
м. Київ, вул. Наталії Ужвій, 1 (Подільський р-н). Оренда – приміщення 2-го поверху, загальною площею – 78,90 м. кв. (В)
Україна, м.Київ, Київ, вулиця Наталії Ужвій, 1
06.04.2023
м. Київ, вул. Архітектора Вербицького, 3. Оренда – приміщення 1-го та 3-го поверху площею 263,7 м2 (В)
14 429.66 грн
54.72 грн / м2
Приміщення
м. Київ, вул. Архітектора Вербицького, 3. Оренда – приміщення 1-го та 3-го поверху площею 263,7 м2 (В)
Україна, м.Київ, Київ, вулиця Архітектора Вербицького, 3
м. Київ, вул. Феодори Пушиної, 27-А, оренда - приміщення 3-го поверху, площею 12,60 м. кв. (В)
2 359.40 грн
187.25 грн / м2
Приміщення
м. Київ, вул. Феодори Пушиної, 27-А, оренда - приміщення 3-го поверху, площею 12,60 м. кв. (В)
Україна, м.Київ, Київ, вул. Феодори Пушиної, 27
05.12.2023
м. Київ, вул. Героїв Севастополя, 39/8, літ.«В»;   Оренда – приміщення 1-го поверху блоку зовнішніх споруд, площею 80,60 кв.м. (В)
15 771.00 грн
195.67 грн / м2
Приміщення
м. Київ, вул. Героїв Севастополя, 39/8, літ.«В»; Оренда – приміщення 1-го поверху блоку зовнішніх споруд, площею 80,60 кв.м. (В)
Україна, м.Київ, Київ, вулиця Героїв Севастополя, 39/8
Переглянуті пропозиції
31.01.2023
м. Київ, вул. Ореста Васкула (Феодори Пушиної), 27. Оренда – приміщення 3-го поверху, площею 7,5 кв.м (В)
2 223.60 грн
296.48 грн / м2
Приміщення
м. Київ, вул. Ореста Васкула (Феодори Пушиної), 27. Оренда – приміщення 3-го поверху, площею 7,5 кв.м (В)
Україна, м.Київ, м. Київ, вул. Ореста Васкула (Феодори Пушиної), 27
29.09.2022
Полтавська обл., Кременчуцький р-н., смт. Семенівка, вул. Воїнів Інтернаціоналістів, 12/9. Оренда – приміщення 3-го поверху площею 93,0 кв.м. (В)
993.24 грн
10.68 грн / м2
Приміщення
Полтавська обл., Кременчуцький р-н., смт. Семенівка, вул. Воїнів Інтернаціоналістів, 12/9. Оренда – приміщення 3-го поверху площею 93,0 кв.м. (В)
Україна, Полтавська обл., Кременчуцький р-н., смт. Семенівка, вул. Воїнів Інтернаціоналістів, 12/9