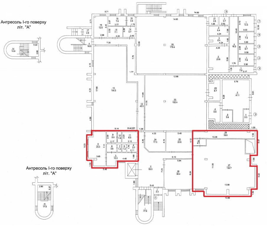
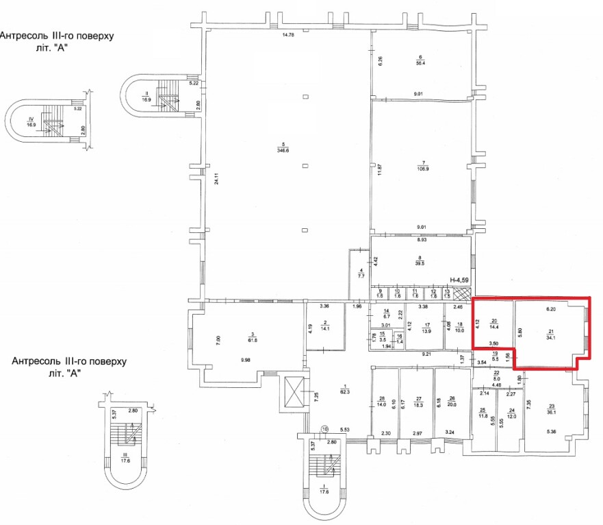
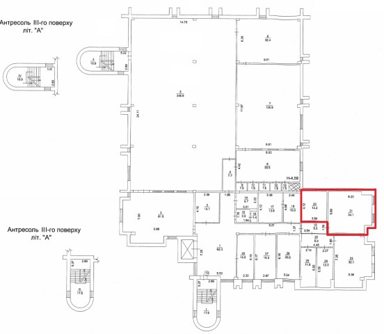
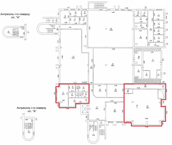
м. Київ, вул. Архітектора Вербицького, 3. Оренда – приміщення 1-го та 3-го поверху площею 263,7 м2 (В)

14 429.66 грн
54.72 грн / м2
Україна, м.Київ, Київ, вулиця Архітектора Вербицького, 3
Перейти до аукціону на сайті
  • Інформація
  • Опис
  • Документи
Дата оголошення пропозиції:
06 березня 2023
Площа:
263.70 м2
Тип об’єкта:
Приміщення
Тип аукціону:
Англійський аукціон
Статус аукціону:
Аукціон не відбувся
Тип угоди:
Оренда
Розмір мінімального кроку:
200.00 ₴
Розмір гарантійного внеску:
8 657.80 ₴
Початок прийому пропозицій:
06.03.2023 18:27:02
Завершення прийому пропозицій:
05.04.2023 20:00:00
Проведення аукціону:
06.04.2023 11:35:00
Лот:
CLE001-UA-20230306-47228
№ лоту (УТК):
UTK181122_01T
Лот виставляється на торги (раз):
4
Стислий опис майна:
Пропонується до оренди приміщення 1-го та 3-го поверху площею 263,7 м2 . Будівля знаходиться в Дарницькому районі міста Києва, житловий масив Харківський. Зупинки маршрутного транспорту, супермаркети, торгово-розважальні центри. Найближчі станції метро «Харківська», «Вирлиця». Вхід з двору. Характеристики: • загальна площа будівлі – 4804,7 м2 ; • кількість поверхів – 5; • опалення централізоване (міське); • земельна ділянка – 0,5530 га; • каналізація, водозабезпечення, сан. вузол – присутні
Адреса місцезнаходження майна:
Україна, м.Київ, Київ, вулиця Архітектора Вербицького, 3
Схожі пропозиції
09.08.2022
м. Київ, вул. Дегтярівська, 28-А. Оренда – приміщення 1-го поверху площею 115,95 кв.м. (В)
17 434.24 грн
150.36 грн / м2
Приміщення
м. Київ, вул. Дегтярівська, 28-А. Оренда – приміщення 1-го поверху площею 115,95 кв.м. (В)
Україна, м.Київ, Київ, вул. Дегтярівська, 28-А
10.06.2025
Довгострокова оренда! м. Київ, бульвар Амвросія Бучми, 5 (Дніпровський р-н), літ. «А». Оренда – частина нежилої будівлі літ. «А», приміщення підвалу, 1,2,3 та 5 поверхів площею 1512,80 кв.м. (В)
м. Київ, вул. Будівельників, 8-Б, оренда – приміщення підвалу, площею 452,60 кв.м. (В)
20 910.12 грн
46.20 грн / м2
Приміщення
м. Київ, вул. Будівельників, 8-Б, оренда – приміщення підвалу, площею 452,60 кв.м. (В)
Україна, м.Київ, Київ, вул. Будівельників, 8-Б
07.11.2024
м. Київ, вул. Архітектора Вербицького, 3;   Оренда – приміщення 1-го та 3-го поверху площею 263,7 кв.м. (В)
25 251.91 грн
95.76 грн / м2
Приміщення
м. Київ, вул. Архітектора Вербицького, 3; Оренда – приміщення 1-го та 3-го поверху площею 263,7 кв.м. (В)
Україна, м.Київ, Київ, вул. Архітектора Вербицького, 3
Переглянуті пропозиції
05.06.2025
Львівська обл., м. Броди, вул. Зелена, 19. Оренда – комплекс будівель площею 170,60 кв.м. (В)
3 070.80 грн
18.00 грн / м2
Будівля
Львівська обл., м. Броди, вул. Зелена, 19. Оренда – комплекс будівель площею 170,60 кв.м. (В)
Україна, Львівська обл., м. Броди, вул. Зелена, 19
Івано-Франківська обл., Косівський р-н., смт. Яблунів, вул. Шевченка, 58. Оренда – приміщення 1-го поверху та складу, площею 74,10 кв.м. (В)
1 867.32 грн
25.20 грн / м2
Приміщення
Івано-Франківська обл., Косівський р-н., смт. Яблунів, вул. Шевченка, 58. Оренда – приміщення 1-го поверху та складу, площею 74,10 кв.м. (В)
Україна, Івано-Франківська обл., Косівський р-н., смт. Яблунів, вул. Шевченка, 58
м. Київ, вул. Макіївська, 3.Оренда – приміщення 2-го поверху, площею 724,10 м2 (В)
33 453.42 грн
46.20 грн / м2
Приміщення
м. Київ, вул. Макіївська, 3.Оренда – приміщення 2-го поверху, площею 724,10 м2 (В)
Україна, м.Київ, Київ, вул. Макіївська, 3
Рівненська обл., м. Рівне вул. Орлова, 37. Оренда – приміщення 4го поверху площею 326,3 м. кв. (В)
25 089.21 грн
76.89 грн / м2
Приміщення
Рівненська обл., м. Рівне вул. Орлова, 37. Оренда – приміщення 4го поверху площею 326,3 м. кв. (В)
Україна, Рівненська обл., м. Рівне , Рівне вул. Орлова, 37