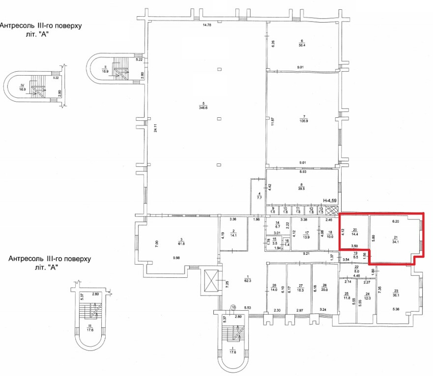
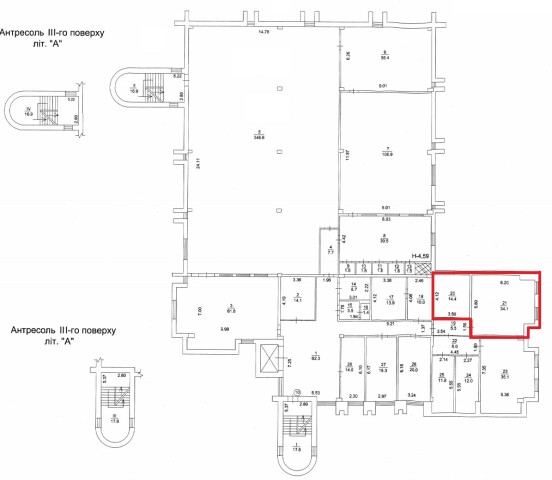
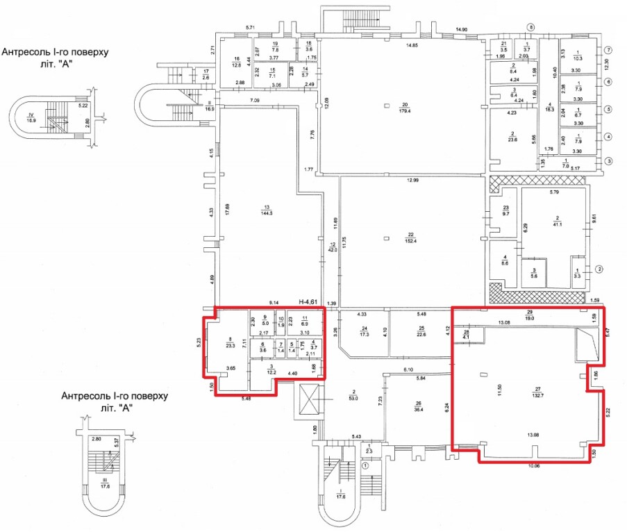
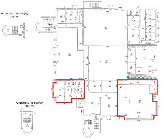
м. Київ, вул. Архітектора Вербицького, 3; Оренда – приміщення 1-го та 3-го поверху площею 263,7 кв.м. (В)

25 251.91 грн
95.76 грн / м2
Україна, м.Київ, Київ, вул. Архітектора Вербицького, 3
Перейти до аукціону на сайті
  • Інформація
  • Опис
  • Документи
Дата оголошення пропозиції:
05 жовтня 2024
Площа:
263.70 м2
Тип об’єкта:
Приміщення
Тип аукціону:
Англійський аукціон
Статус аукціону:
Аукціон не відбувся
Тип угоди:
Оренда
Розмір мінімального кроку:
260.00 ₴
Розмір гарантійного внеску:
15 151.15 ₴
Початок прийому пропозицій:
05.10.2024 09:04:42
Завершення прийому пропозицій:
06.11.2024 20:00:00
Проведення аукціону:
07.11.2024 12:15:00
Лот:
CLE001-UA-20241005-78591
№ лоту (УТК):
UTK181122_01T
Лот виставляється на торги (раз):
10
Стислий опис майна:
Пропонується до оренди приміщення 1-го та 3-го поверху площею 263,7 кв.м . Будівля знаходиться в Дарницькому районі міста Києва, житловий масив Харківський. Зупинки маршрутного транспорту, супермаркети, торгово-розважальні центри. Найближчі станції метро «Харківська», «Вирлиця». Вхід з двору. Характеристики: • загальна площа будівлі – 4804,7 м2 • кількість поверхів – 5; • опалення централізоване (міське); • земельна ділянка – 0,5530 га; • каналізація, водозабезпечення, сан. вузол – присутні
Адреса місцезнаходження майна:
Україна, м.Київ, Київ, вул. Архітектора Вербицького, 3
Схожі пропозиції
14.09.2022
м. Київ, вул. Антоновича, 40, Оренда – приміщення 1-го поверху, площею 66,60 кв. м., (В)
44 195.76 грн
663.60 грн / м2
Приміщення
м. Київ, вул. Антоновича, 40, Оренда – приміщення 1-го поверху, площею 66,60 кв. м., (В)
Україна, м.Київ, Київ, вул. Антоновича, 40
26.04.2023
м. Київ, вул. Ісаакяна, 3 Оренда – Приміщення 2-го поверху площею 149,81 кв.м. (В)
22 690.22 грн
151.46 грн / м2
Приміщення
м. Київ, вул. Ісаакяна, 3 Оренда – Приміщення 2-го поверху площею 149,81 кв.м. (В)
Україна, м.Київ, Київ, вулиця Ісаакяна, 3
м. Київ, вул. Будівельників, 8-Б, оренда – приміщення підвалу, площею 452,60 кв.м. (В)
52 021.84 грн
114.94 грн / м2
Приміщення
м. Київ, вул. Будівельників, 8-Б, оренда – приміщення підвалу, площею 452,60 кв.м. (В)
Україна, м.Київ, Київ, вул. Будівельників, 8-Б
м. Київ, вул. Оболонська, 29-А, оренда – приміщення 1-го поверху площею 113,30 м2 (В)
19 991.79 грн
176.45 грн / м2
Приміщення
м. Київ, вул. Оболонська, 29-А, оренда – приміщення 1-го поверху площею 113,30 м2 (В)
Україна, м.Київ, Київ, вул. Оболонська, 29-А
Переглянуті пропозиції
01.11.2023
Львівська обл., м. Золочів, вул. Пушкіна, 9. Оренда – приміщення 1-го поверху площею 35,1 кв.м. (В)
972.97 грн
27.72 грн / м2
Приміщення
Львівська обл., м. Золочів, вул. Пушкіна, 9. Оренда – приміщення 1-го поверху площею 35,1 кв.м. (В)
Україна, Львівська обл., Золочів, вулиця Пушкіна, 9
08.09.2022
Рівненська обл., Варашський р-н, смт. Рафалівка, вул.Незалежності, 8А. Оренда – будівля складів з гаражем площею 117,4 кв. м. (В)
1 174.00 грн
10.00 грн / м2
Будівля
Рівненська обл., Варашський р-н, смт. Рафалівка, вул.Незалежності, 8А. Оренда – будівля складів з гаражем площею 117,4 кв. м. (В)
Україна, Рівненська обл., Варашський р-н, смт. Рафалівка, вул.Незалежності, 8А
23.02.2024
м. Івано-Франківськ, вул. Довга, 58;   Оренда – приміщення підвалу виробничого будинку, площею 57,6 кв.м. (В)
4 298.11 грн
74.62 грн / м2
Приміщення
м. Івано-Франківськ, вул. Довга, 58; Оренда – приміщення підвалу виробничого будинку, площею 57,6 кв.м. (В)
Україна, Івано-Франківська обл., м. Івано-Франківськ, вулиця Довга, 58
02.09.2025
м. Харків, пр-т Л. Свободи,31 а.Оренда – приміщення 3-го поверху, площею 882,5 кв.м (В)
40 268.48 грн
45.63 грн / м2
Приміщення
м. Харків, пр-т Л. Свободи,31 а.Оренда – приміщення 3-го поверху, площею 882,5 кв.м (В)
Україна, Харківська обл., м. Харків, пр-т Л. Свободи,31 а