м. Київ, вул. Героїв Севастополя, 39/8, літ.«В»; Оренда – приміщення 1-го поверху блоку зовнішніх споруд, площею 80,60 кв.м. (В)

15 771.00 грн
195.67 грн / м2
Україна, м.Київ, Київ, вулиця Героїв Севастополя, 39/8
Перейти до аукціону на сайті
  • Інформація
  • Опис
  • Документи
Дата оголошення пропозиції:
02 листопада 2023
Площа:
80.60 м2
Тип об’єкта:
Приміщення
Тип аукціону:
Англійський аукціон
Статус аукціону:
Аукціон не відбувся
Тип угоди:
Оренда
Розмір мінімального кроку:
1 600.00 ₴
Розмір гарантійного внеску:
9 462.60 ₴
Початок прийому пропозицій:
02.11.2023 14:15:11
Завершення прийому пропозицій:
04.12.2023 20:00:00
Проведення аукціону:
05.12.2023 12:10:00
Лот:
CLE001-UA-20231102-64422
№ лоту (УТК):
UTK010323_1T
Лот виставляється на торги (раз):
7
Стислий опис майна:
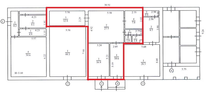
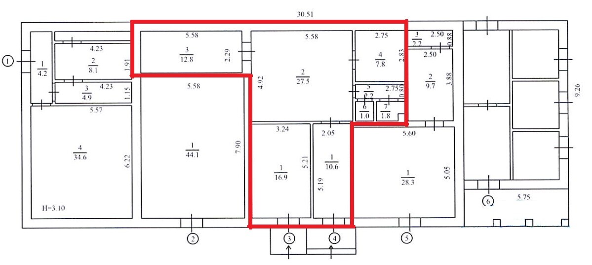
Пропонується до оренди приміщення 1-го поверху блоку зовнішніх споруд, площею 80,60 кв.м.. Розташування будівлі у Солом'янському районі міста Києва, місцевості Відрадний та Новокараваєві дачі. Поруч розвинена інфраструктура, зупинки маршрутного транспорту, трамваю, магазини, кафе, аптеки, середній автомобільний і пішохідний потоки. Вхід з вулиці Героїв Севастополя та з прохідної. Доступ 24/7. Характеристики: - загальна площа будівлі – 216,40 кв.м.; - кількість поверхів – 1; - загальна площа земельної ділянки – 0,9713 га; - опалення – відсутнє; - сан. вузол, каналізація, водопостачання – присутне;
Адреса місцезнаходження майна:
Україна, м.Київ, Київ, вулиця Героїв Севастополя, 39/8
Схожі пропозиції
12.01.2024
м. Київ, вул. Антоновича, 40;  Оренда–Будівля, площею 253,0 кв.м. (В)
55 670.12 грн
220.04 грн / м2
Приміщення
м. Київ, вул. Антоновича, 40; Оренда–Будівля, площею 253,0 кв.м. (В)
Україна, м.Київ, Київ, вул. Антоновича, 40
м. Київ, вул. Макіївська, 3.Оренда – приміщення 2-го поверху площею 724,1 кв.м. (В)
23 417.39 грн
32.34 грн / м2
Приміщення
м. Київ, вул. Макіївська, 3.Оренда – приміщення 2-го поверху площею 724,1 кв.м. (В)
Україна, м.Київ, Київ, вул. Макіївська, 3
19.09.2023
м. Київ, вул. Ореста Васкула (Феодори Пушиної), 27-А. Оренда – приміщення 3-го поверху, площею 34,5 кв.м. (В)
6 810.99 грн
197.42 грн / м2
Приміщення
м. Київ, вул. Ореста Васкула (Феодори Пушиної), 27-А. Оренда – приміщення 3-го поверху, площею 34,5 кв.м. (В)
Україна, м.Київ, м. Київ, вулиця Ореста Васкула, 27
12.08.2022
м. Київ, вул. Ісаакяна, 3. Оренда – Приміщення 1-го поверху площею 57,90 кв.м. (В)
10 961.63 грн
189.32 грн / м2
Приміщення
м. Київ, вул. Ісаакяна, 3. Оренда – Приміщення 1-го поверху площею 57,90 кв.м. (В)
Україна, м.Київ, Київ, вул. Ісаакяна, 3