Чернігівська обл., м. Ніжин, вул. Заньковецької, 4. Оренда – приміщення 3-го поверху, площею 267,7 кв.м. (В)

9 829.94 грн
36.72 грн / м2
Україна, Чернігівська обл., Ніжин, вул. Заньковецької, 4
Перейти до аукціону на сайті
  • Інформація
  • Опис
  • Документи
Дата оголошення пропозиції:
01 вересня 2021
Площа:
267.70 м2
Тип об’єкта:
Приміщення
Тип аукціону:
Англійський аукціон
Статус аукціону:
Аукціон не відбувся
Тип угоди:
Оренда
Розмір мінімального кроку:
150.00 ₴
Розмір гарантійного внеску:
5 897.96 ₴
Початок прийому пропозицій:
01.09.2021 12:55:46
Завершення прийому пропозицій:
30.09.2021 20:00:00
Лот:
UA-PS-2021-09-01-000018-1
№ лоту (УТК):
UTK290721_05Т
Лот виставляється на торги (раз):
2
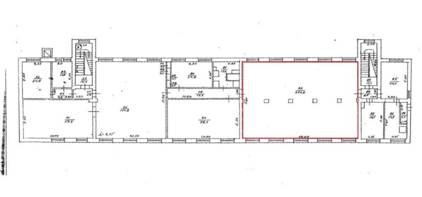
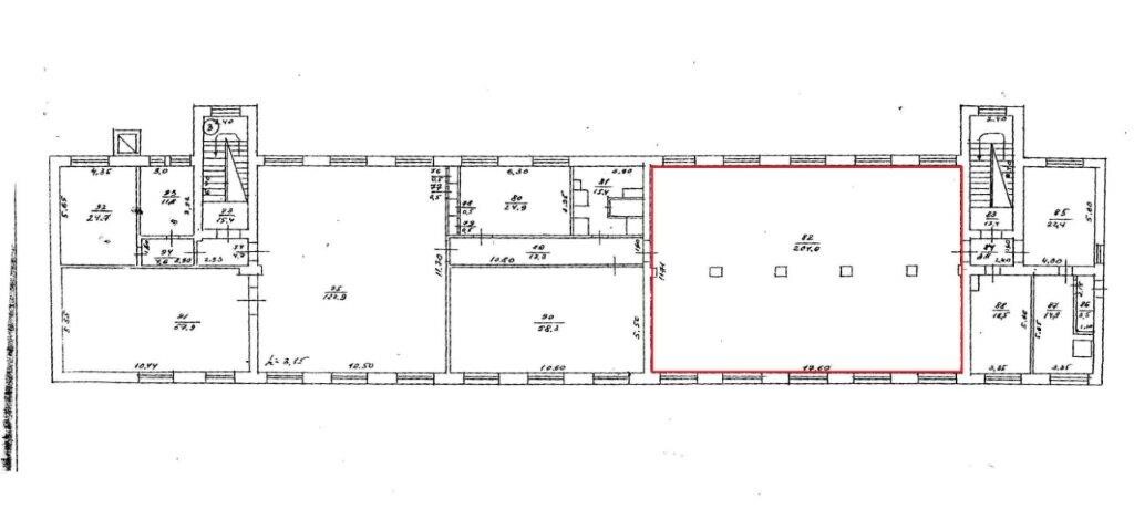
Стислий опис майна:
Пропонується до оренди приміщення на третьому поверсі трьоповерхової будівлі площею 267,7 кв.м. Будівля знаходиться в центральній частині міста, розвинена інфраструктура, високі автомобільний та пішохідний потоки. Характеристики • кількість поверхів – 3 • загальна площа –1775,00 кв.м • площа запропонована до оренди – 267,7 кв.м • земельна ділянка – 0,3455 га (договір оренди)
Адреса місцезнаходження майна:
Україна, Чернігівська обл., Ніжин, вул. Заньковецької, 4
Схожі пропозиції
10.01.2024
Чернігівська обл., м. Борзна, вул. П. Куліша, 100;   Оренда – приміщення 1-го поверху, площею 21,0 кв.м. (В).
501.90 грн
23.90 грн / м2
Приміщення
Чернігівська обл., м. Борзна, вул. П. Куліша, 100; Оренда – приміщення 1-го поверху, площею 21,0 кв.м. (В).
Україна, Чернігівська обл., Борзна, вул. Пантелеймона Куліша, 100
07.09.2022
Чернігівська обл., м. Чернігів, вул. Рокоссовського, 33. Оренда – виробничі приміщення 4-го поверху площею 327,10 кв.м. (В)
15 112.02 грн
46.20 грн / м2
Приміщення
Чернігівська обл., м. Чернігів, вул. Рокоссовського, 33. Оренда – виробничі приміщення 4-го поверху площею 327,10 кв.м. (В)
Україна, Чернігівська обл., Чернігів, вулиця Рокоссовського, 33
24.06.2025
Чернігівська обл., с-ще Ріпки, вул. Святомиколаївська, 67. Оренда – приміщення 1-го поверху, площею 49,10 кв.м (В)
2 003.28 грн
40.80 грн / м2
Приміщення
Чернігівська обл., с-ще Ріпки, вул. Святомиколаївська, 67. Оренда – приміщення 1-го поверху, площею 49,10 кв.м (В)
Україна, Чернігівська обл., Ріпки, 15000, с-ще. Ріпки, вул. Святомиколаївська, 67
29.11.2023
Чернігівська обл., м. Семенівка, вул. Червона площа, 4. Оренда – приміщення 1-го поверху площею 72,10 кв.м (В)
4 477.41 грн
62.10 грн / м2
Приміщення
Чернігівська обл., м. Семенівка, вул. Червона площа, 4. Оренда – приміщення 1-го поверху площею 72,10 кв.м (В)
Україна, Чернігівська обл., м. Семенівка, вул. Червона площа, 4