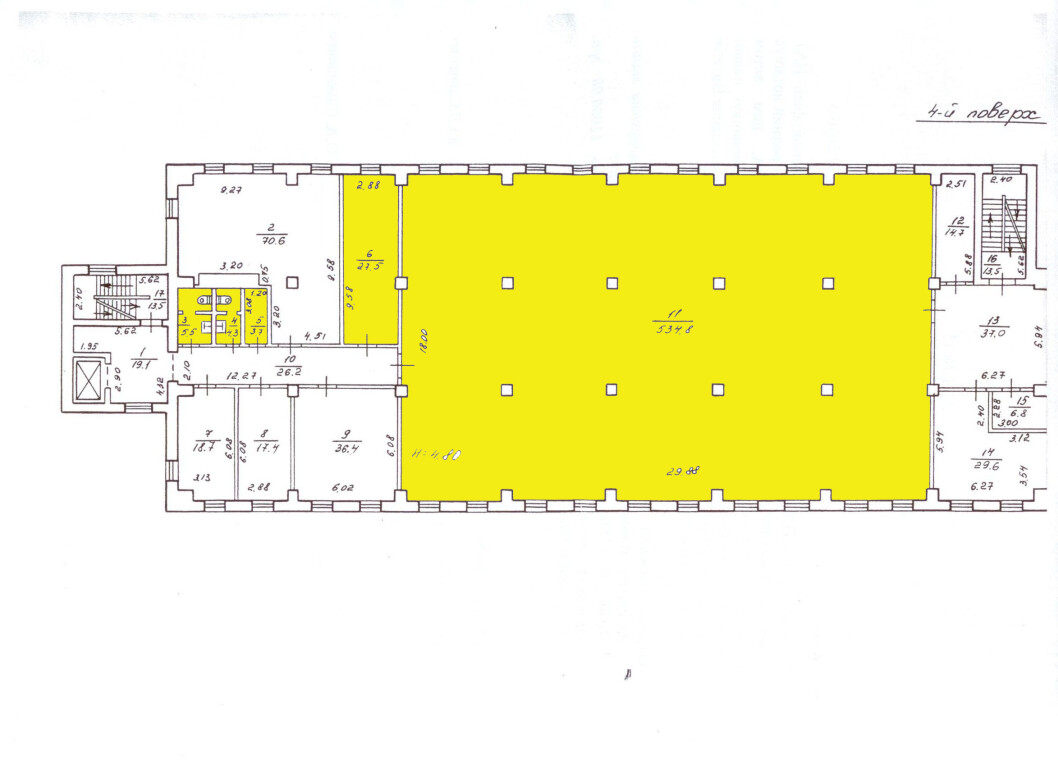
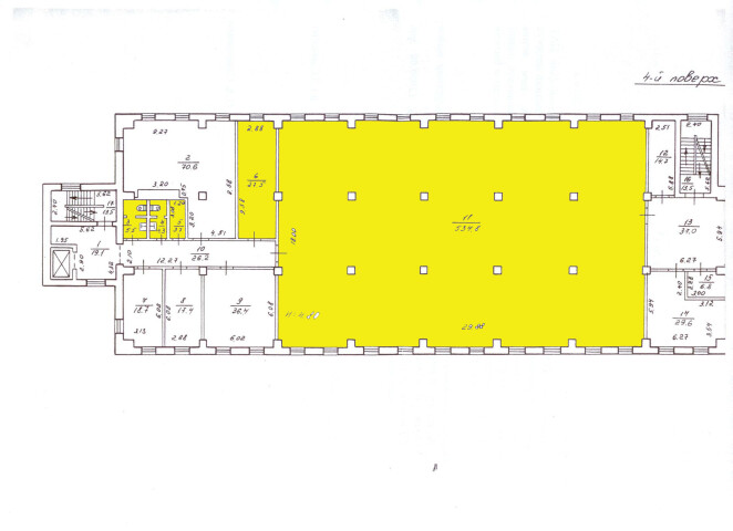
Харківська обл., м. Харків, вул. Ак.Вальтера, 3. Оренда – приміщення четвертого поверху, площею 575,8 кв.м. (В)

11 337.50 грн
19.69 грн / м2
Україна, Харківська обл., Харків, Ак. Вальтера,3
Перейти до аукціону на сайті
  • Інформація
  • Опис
  • Документи
Дата оголошення пропозиції:
03 вересня 2021
Площа:
575.80 м2
Тип об’єкта:
Приміщення
Тип аукціону:
Англійський аукціон
Статус аукціону:
Аукціон не відбувся
Тип угоди:
Оренда
Розмір мінімального кроку:
500.00 ₴
Розмір гарантійного внеску:
6 802.50 ₴
Початок прийому пропозицій:
03.09.2021 11:20:20
Завершення прийому пропозицій:
04.10.2021 20:00:00
Лот:
UA-PS-2021-09-03-000015-3
№ лоту (УТК):
UTK160721_28Т
Лот виставляється на торги (раз):
3
Стислий опис майна:
Пропонуються до оренди нежитлові приміщення четвертого поверху, площею 575,8 кв.м, розташовані за адресою : м. Харків, вул. Ак. Вальтера,3. Будівля знаходиться в спальному районі міста, 5 хвилин до зупинки громадського маршрутного автобусу. Характеристики: • Кількість поверхів – 4; • В приміщеннях присутнє опалення, електроенергія , на поверсі є водопостачання та сан. кімната; • Земельна ділянка – 4600,0 кв.м.
Адреса місцезнаходження майна:
Україна, Харківська обл., Харків, Ак. Вальтера,3
Схожі пропозиції
17.08.2023
Харківська обл., Красноградський р-н, смт. Зачепилівка, вул. Паркова, 3. Оренда - приміщення на 1-му поверсі площею 82,8 кв.м. (В)
1 490.40 грн
18.00 грн / м2
Приміщення
Харківська обл., Красноградський р-н, смт. Зачепилівка, вул. Паркова, 3. Оренда - приміщення на 1-му поверсі площею 82,8 кв.м. (В)
Україна, Харківська обл., Красноградський р-н, смт. Зачепилівка, вул. Паркова, 3
22.02.2023
Харківська обл., Чугуївський р-н, м. Зміїв, вул. Адміністративна, 5. Оренда – приміщення на ІІІ поверсі площею 16,1 кв.м. (В)
502.96 грн
31.24 грн / м2
Приміщення
Харківська обл., Чугуївський р-н, м. Зміїв, вул. Адміністративна, 5. Оренда – приміщення на ІІІ поверсі площею 16,1 кв.м. (В)
Україна, Харківська обл., Чугуївський р-н, м. Зміїв, вул. Адміністративна, 5
05.11.2024
Харківська обл., м. Харків, вул. Коцарська, 45, літер «А-4»;   Оренда – приміщення на 4-му поверсі загальною площею 73,60 кв.м. (В)
3 956.74 грн
53.76 грн / м2
Приміщення
Харківська обл., м. Харків, вул. Коцарська, 45, літер «А-4»; Оренда – приміщення на 4-му поверсі загальною площею 73,60 кв.м. (В)
Україна, Харківська обл., Харків, вулиця Коцарська, 45
01.03.2024
ДОВГОСТРОКОВА ОРЕНДА! м. Харків, вул. Сумгаїтська, 9а.Оренда – приміщення 4-го поверху, площею 643,1 кв.м (В)
55 100.81 грн
85.68 грн / м2
Приміщення
ДОВГОСТРОКОВА ОРЕНДА! м. Харків, вул. Сумгаїтська, 9а.Оренда – приміщення 4-го поверху, площею 643,1 кв.м (В)
Україна, Харківська обл., м. Харків, вул. Сумгаїтська, 9а
Переглянуті пропозиції
25.06.2024
Дніпропетровська обл., м. Кам’янське, вул. Героїв АТО, 1;  Оренда – приміщення 3-го поверху площею 17,3 кв.м. (В)
259.50 грн
15.00 грн / м2
Приміщення
Дніпропетровська обл., м. Кам’янське, вул. Героїв АТО, 1; Оренда – приміщення 3-го поверху площею 17,3 кв.м. (В)
Україна, Дніпропетровська обл., Кам’янське, Героїв АТО, 1
м. Рівне, вул. Транспортна,14. Оренда – приміщення 1-го та 2-го поверху
5 317.43 грн
17.66 грн / м2
Приміщення
м. Рівне, вул. Транспортна,14. Оренда – приміщення 1-го та 2-го поверху
Україна, Рівненська обл., м. Рівне, вул. Транспортна,14
05.09.2023
Полтавська обл., Лубенський р-н, с. Засулля, вул. Молодіжна, буд.20. Оренда – одноповерхова будівля площею 189,80 кв.м. (В)
1 275.46 грн
6.72 грн / м2
Будівля
Полтавська обл., Лубенський р-н, с. Засулля, вул. Молодіжна, буд.20. Оренда – одноповерхова будівля площею 189,80 кв.м. (В)
Україна, Полтавська обл., Лубенський р-н, с. Засулля, вул. Молодіжна, буд.20