Вінницька обл., м. Вінниця, вул. О. Береста, 6. Оренда – приміщення площею 215,90 кв.м. (В)

9 672.32 грн
44.80 грн / м2
Україна, Вінницька обл., м. Вінниця, вул. О. Береста, 6
Перейти до аукціону на сайті
  • Інформація
  • Опис
  • Документи
Дата оголошення пропозиції:
22 жовтня 2021
Площа:
215.90 м2
Тип об’єкта:
Приміщення
Тип аукціону:
Англійський аукціон
Статус аукціону:
Аукціон не відбувся
Тип угоди:
Оренда
Розмір мінімального кроку:
150.00 ₴
Розмір гарантійного внеску:
5 803.39 ₴
Початок прийому пропозицій:
22.10.2021 13:16:44
Завершення прийому пропозицій:
22.11.2021 20:00:00
Лот:
UA-PS-2021-10-22-000060-1
№ лоту (УТК):
UTK170721_02С
Лот виставляється на торги (раз):
4
Стислий опис майна:
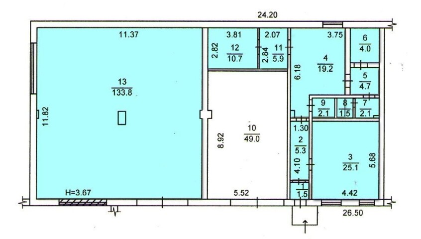
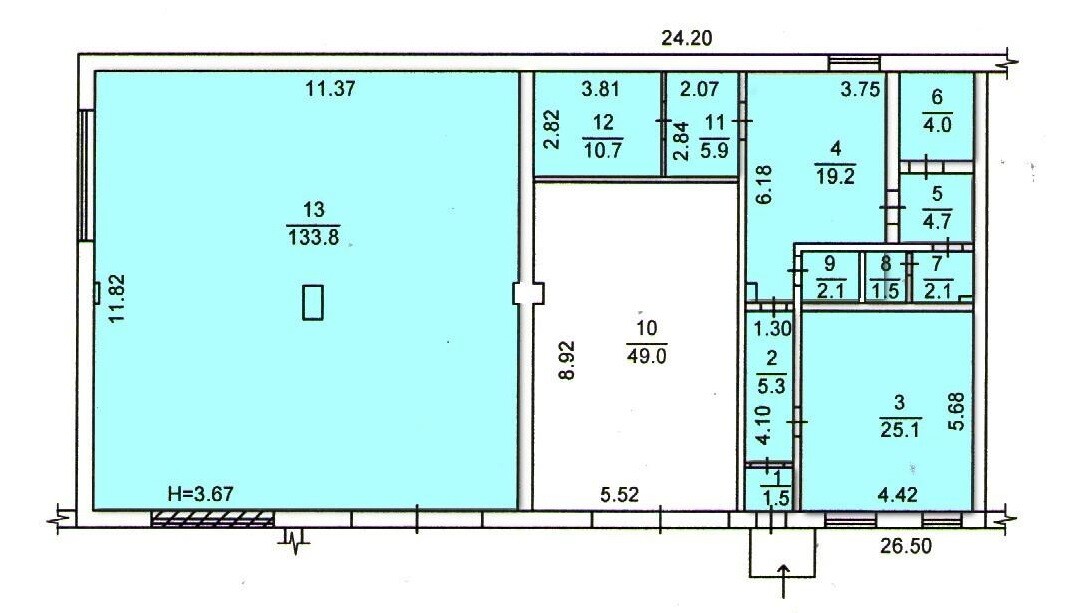
Пропонується до оренди приміщення площею 215,90 кв.м. виробничо-допоміжної будівлі, що розташована в районі наближеному до центру в зоні одноповерхової житлової забудови. Віддаленість від магістрального шосе та зупинки громадського транспорту орієнтовно 200 м. Приміщення потребує ремонту. Характеристики Кількість поверхів –1; Загальна площа – 264,90 кв.м; Площа запропонована до оренди – 215,90 кв.м; Електропостачання.
Адреса місцезнаходження майна:
Україна, Вінницька обл., м. Вінниця, вул. О. Береста, 6
Схожі пропозиції
Вінницька обл., Вінницький р-н., м. Іллінці, вул. Соборна, 29. Оренда – Приміщення підвалу площею 73,0 кв.м. (В)
2 890.80 грн
39.60 грн / м2
Приміщення
Вінницька обл., Вінницький р-н., м. Іллінці, вул. Соборна, 29. Оренда – Приміщення підвалу площею 73,0 кв.м. (В)
Україна, Вінницька обл., м. Іллінці, вул. Соборна, 29
Вінницька обл., Вінницький р-н., м. Іллінці, вул. Соборна, 29. Оренда – Приміщення 1-го поверху площею 39,4 кв.м. (В)
780.12 грн
19.80 грн / м2
Приміщення
Вінницька обл., Вінницький р-н., м. Іллінці, вул. Соборна, 29. Оренда – Приміщення 1-го поверху площею 39,4 кв.м. (В)
Україна, Вінницька обл., Вінницький р-н., м. Іллінці, вул. Соборна, 29
12.01.2024
Вінницька обл., Гайсинський р-н., м. Тростянець, вул. Соборна, 47. Оренда – приміщення 3 поверху площею 66,20 кв.м. (В)
331.00 грн
5.00 грн / м2
Приміщення
Вінницька обл., Гайсинський р-н., м. Тростянець, вул. Соборна, 47. Оренда – приміщення 3 поверху площею 66,20 кв.м. (В)
Україна, Вінницька обл., Гайсинський р-н., м. Тростянець, вул. Соборна, 47
08.05.2024
Вінницька обл., Вінницький р-н, м. Немирів, вул. Горького, 20;   Оренда – навіс площею 248,4 кв.м. (В)
7 469.39 грн
30.07 грн / м2
Приміщення
Вінницька обл., Вінницький р-н, м. Немирів, вул. Горького, 20; Оренда – навіс площею 248,4 кв.м. (В)
Україна, Вінницька обл., Немирів, вулиця Горького, 20
Переглянуті пропозиції
17.09.2024
м. Чернігів, вул. Ринкова, 20;  Оренда – приміщення 6-го поверху площею 25,10 кв.м. (В)
3 064.71 грн
122.10 грн / м2
Приміщення
м. Чернігів, вул. Ринкова, 20; Оренда – приміщення 6-го поверху площею 25,10 кв.м. (В)
Україна, Чернігівська обл., Чернігів, вулиця Ринкова, 20