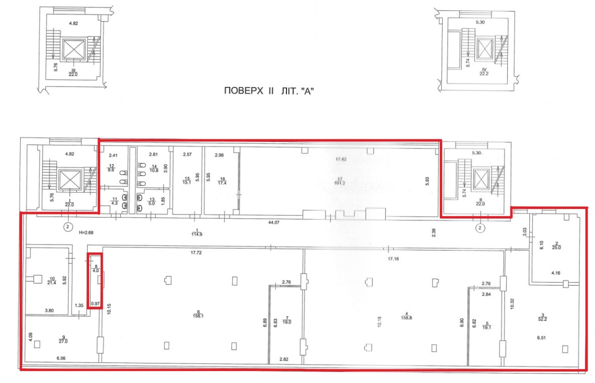
ДОВГОСТРОКОВА ОРЕНДА! м. Київ, вул. Антоновича, 40, оренда – приміщення 2-го поверху, площею 757,90 кв.м. (В)

294 504.78 грн
388.58 грн / м2
Україна, м.Київ, Київ, вул. Антоновича, 40
Перейти до аукціону на сайті
  • Інформація
  • Опис
  • Документи
Дата оголошення пропозиції:
29 жовтня 2021
Площа:
757.90 м2
Тип об’єкта:
Приміщення
Тип аукціону:
Англійський аукціон
Статус аукціону:
Аукціон не відбувся
Тип угоди:
Оренда
Розмір мінімального кроку:
3 500.00 ₴
Розмір гарантійного внеску:
176 702.87 ₴
Початок прийому пропозицій:
29.10.2021 10:16:46
Завершення прийому пропозицій:
29.11.2021 20:00:00
Лот:
UA-PS-2021-10-29-000011-2
№ лоту (УТК):
UTK120721_01T
Лот виставляється на торги (раз):
4
Стислий опис майна:
Пропонуються до оренди приміщення 2-го, площею 757,90 кв.м. Стан приміщень задовільний. Кондиціонування присутнє в приміщенні. Будівля знаходиться у центрі міста на перехресті вулиць Жилянська та Антоновича. Поруч з БЦ розташована зупинка міського автотранспорту, в 5-ти хвилинах ходьби знаходиться станція метро «Олімпійська», парк Тараса Шевченка. Зарядна станція Utrecharge. Вхід з вул. Антоновича. Характеристики: • кількість поверхів – 9; • загальна площа будівлі – 7649,30 м2; • опалення централізоване (міське); • земельна ділянка – 0,2099 га; • сан. вузол, водопостачання, каналізація - присутні;
Адреса місцезнаходження майна:
Україна, м.Київ, Київ, вул. Антоновича, 40
Схожі пропозиції
20.06.2023
м. Київ, вул. Джона Маккейна, №40 , Оренда – приміщення підвалу, площею 44,26 м2 , (В)
5 999.89 грн
135.74 грн / м2
Приміщення
м. Київ, вул. Джона Маккейна, №40 , Оренда – приміщення підвалу, площею 44,26 м2 , (В)
Україна, м.Київ, Київ, вулиця Джона Маккейна, 40
21.10.2025
м. Київ, вул. Наталії Ужвій 1 (Подільський р-н). Оренда – приміщення 3-го поверху, загальною площею – 105,80 м. кв. (В)
м. Київ, Стратегічне шосе, 21-А. Оренда - приміщення 1-го, 2-го та 4-го поверхів площею 2290 кв.м. (В)
35 953.00 грн
15.70 грн / м2
Приміщення
м. Київ, Стратегічне шосе, 21-А. Оренда - приміщення 1-го, 2-го та 4-го поверхів площею 2290 кв.м. (В)
Україна, м.Київ, м. Київ, Стратегічне шосе, 21-А
Переглянуті пропозиції
23.09.2025
Довгострокова оренда! Дніпропетровська обл., м. Кривий Ріг, вул. Героїв Маріуполя, 71. Оренда – приміщення 1-го поверху прибудови АТС-38, площею 118,5 кв. м. (В)
5 204.52 грн
43.92 грн / м2
Приміщення
Довгострокова оренда! Дніпропетровська обл., м. Кривий Ріг, вул. Героїв Маріуполя, 71. Оренда – приміщення 1-го поверху прибудови АТС-38, площею 118,5 кв. м. (В)
Україна, Дніпропетровська обл., Кривий Ріг, Здорова Вода (вул. Героїв Маріуполя, 71
м. Чернігів, вул. Коцюбинського, 50а. Оренда адмінбудівлі
110 035.20 грн
48.00 грн / м2
Адмінбудівля
м. Чернігів, вул. Коцюбинського, 50а. Оренда адмінбудівлі
Україна, Чернігівська обл., м. Чернігів, вул. Коцюбинського, 50а
11.11.2025
 Полтавська обл., Кременчуцький р-н, м. Глобине, вулиця Центральна, 222. Оренда – приміщення 3-го поверху загальною площею 206,50 кв.м. (В)
3 006.64 грн
14.56 грн / м2
Приміщення
Полтавська обл., Кременчуцький р-н, м. Глобине, вулиця Центральна, 222. Оренда – приміщення 3-го поверху загальною площею 206,50 кв.м. (В)
Україна, Полтавська обл., Глобине, вулиця Центральна, 222
21.03.2024
Сумська обл., м. Шостка, вул. Озерна, буд. 39А. Оренда –частина нежитлової будівлі площею 172,3 кв. м. (В)
556.53 грн
3.23 грн / м2
Будівля
Сумська обл., м. Шостка, вул. Озерна, буд. 39А. Оренда –частина нежитлової будівлі площею 172,3 кв. м. (В)
Україна, Сумська обл., м. Шостка, вул. Озерна, буд. 39А