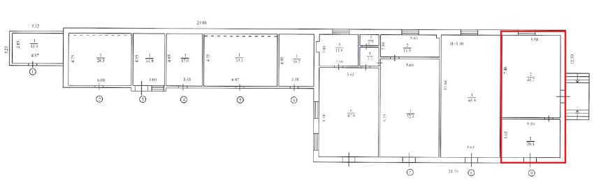
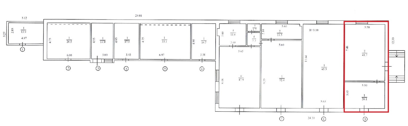
м. Київ, вул. Академіка Шалімова, 39/8, літ. «Б» (Солом'янський р-н). Оренда – приміщення блоку допоміжних споруд, загальною площею – 61,80 кв. м. (В)

11 393.45 грн
184.36 грн / м2
Україна, м.Київ, Київ, вулиця Академіка Шалімова, 39/8
Перейти до аукціону на сайті
  • Інформація
  • Опис
  • Документи
Дата оголошення пропозиції:
17 жовтня 2025
Площа:
61.80 м2
Тип об’єкта:
Приміщення
Тип аукціону:
Англійський аукціон
Статус аукціону:
Прийняття заяв на участь
Тип угоди:
Оренда
Розмір мінімального кроку:
600.00 ₴
Розмір гарантійного внеску:
6 836.07 ₴
Початок прийому пропозицій:
17.10.2025 12:09:06
Завершення прийому пропозицій:
18.11.2025 20:00:00
Проведення аукціону:
19.11.2025 12:25:00
Лот:
CLE001-UA-20251017-18907
№ лоту (УТК):
UTK171025_09U
Лот виставляється на торги (раз):
1
Стислий опис майна:
Пропонується до оренди приміщення блоку допоміжних споруд, площею 61,80 м². Розташування будівлі у Солом'янському районі міста Києва, місцевості Відрадний та Новокараваєві дачі. Поруч розвинена інфраструктура, зупинки маршрутного транспорту, трамваю, магазини, кафе, аптеки, середній автомобільний і пішохідний потоки. Вхід з вулиці Героїв Севастополя та з прохідної. Доступ 24/7. Характеристики: - загальна площа будівлі – 379,80 м²; - кількість поверхів – 1; - загальна площа земельної ділянки – 0,9713 га; - електропостачання - 3 кВт; - опалення – відсутнє; - сан. вузол, каналізація, водопостачання – відсутнє; *земельна ділянка не є предметом оренди.
Адреса місцезнаходження майна:
Україна, м.Київ, Київ, вулиця Академіка Шалімова, 39/8
Схожі пропозиції
15.06.2023
ДОВГОСТРОКОВА ОРЕНДА! м. Київ, вул. Героїв Севастополя, 39/8 літ. «Е». Оренда – приміщення 2-го та 4-го поверхів, площею 1751,8 м2 (В)
80 933.16 грн
46.20 грн / м2
Приміщення
ДОВГОСТРОКОВА ОРЕНДА! м. Київ, вул. Героїв Севастополя, 39/8 літ. «Е». Оренда – приміщення 2-го та 4-го поверхів, площею 1751,8 м2 (В)
Україна, м.Київ, Київ, вулиця Героїв Севастополя, 39
16.02.2023
ДОВГОСТРОКОВА ОРЕНДА! м. Київ, вул. Салютна, 5а, літ. «Б». Оренда – приміщення 3-го та 4-го поверхів площею 992,8 кв.м. (В)
20.12.2022
м. Київ, вул. Архітектора Вербицького, 3. Оренда – приміщення 1-го та 3-го поверху площею 263,70 м2 (В)
36 074.16 грн
136.80 грн / м2
Приміщення
м. Київ, вул. Архітектора Вербицького, 3. Оренда – приміщення 1-го та 3-го поверху площею 263,70 м2 (В)
Україна, м.Київ, Київ, вулиця Архітектора Вербицького, 3
09.12.2022
ДОВГОСТРОКОВА ОРЕНДА! м. Київ, вул. Антоновича, 40, оренда – приміщення 2-го поверху, площею 757,90 кв.м. (В)
161 872.28 грн
213.58 грн / м2
Приміщення
ДОВГОСТРОКОВА ОРЕНДА! м. Київ, вул. Антоновича, 40, оренда – приміщення 2-го поверху, площею 757,90 кв.м. (В)
Україна, м.Київ, Київ, вул. Антоновича, 40