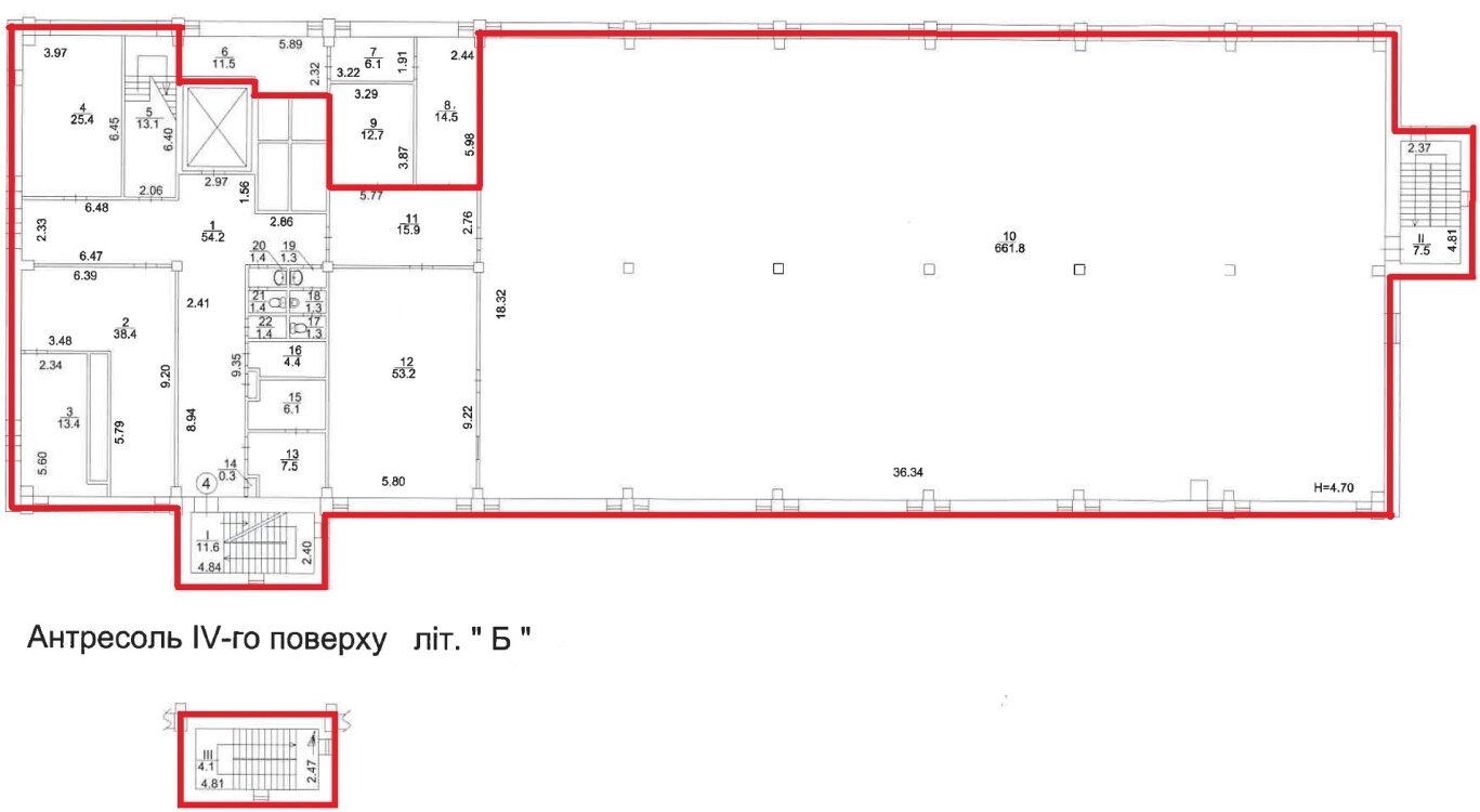
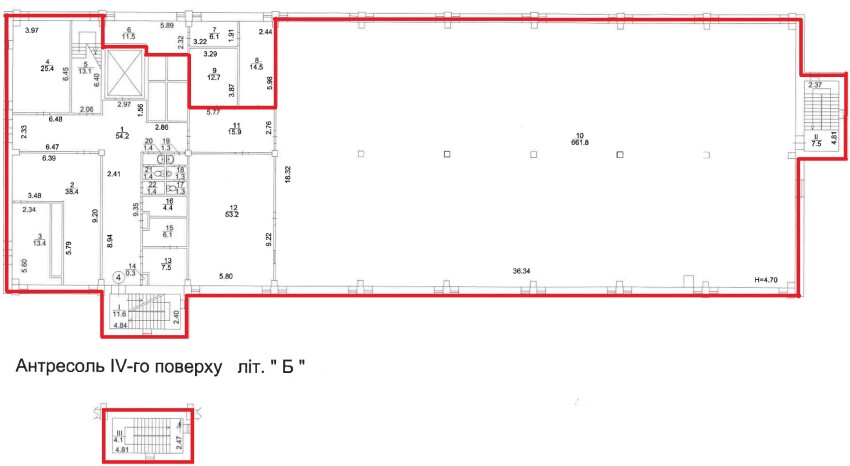
ДОВГОСТРОКОВА ОРЕНДА! м. Київ, вул. Салютна, 5а, літ. «Б». Оренда – приміщення 3-го та 4-го поверхів площею 992,8 кв.м. (В)

45 867.36 грн
46.20 грн / м2
Україна, м.Київ, Київ, вулиця Салютна, 5А
Перейти до аукціону на сайті
  • Інформація
  • Опис
  • Документи
Дата оголошення пропозиції:
16 січня 2023
Площа:
992.80 м2
Тип об’єкта:
Приміщення
Тип аукціону:
Англійський аукціон
Статус аукціону:
Аукціон не відбувся
Тип угоди:
Оренда
Розмір мінімального кроку:
500.00 ₴
Розмір гарантійного внеску:
27 520.42 ₴
Початок прийому пропозицій:
16.01.2023 13:28:43
Завершення прийому пропозицій:
15.02.2023 20:00:00
Проведення аукціону:
16.02.2023 11:15:00
Лот:
CLE001-UA-20230116-01660
№ лоту (УТК):
UTK040422_06T
Лот виставляється на торги (раз):
9
Стислий опис майна:
Пропонуються до оренди приміщення 3-го та 4-го поверху, літ. «Б», площею 992,8 м2 . Будівля розташована в Шевченківському районі міста Києва, місцевість Нивки. Поруч розвинена інфраструктура, зупинки маршрутного транспорту, супермаркети, бізнес-центри, фінансові заклади, 5 хв. від ст. м. «Нивки». Вхід з двору. Доступ 24/7. Характеристики • кількість поверхів – 4; • сан. вузол, каналізація – присутні; • площа будівлі – літ. «Б» - 4892,1 м2; • опалення централізоване (міське); • земельна ділянка – 0,6317 га;
Адреса місцезнаходження майна:
Україна, м.Київ, Київ, вулиця Салютна, 5А
Схожі пропозиції
01.04.2025
м. Київ, бульвар Академіка Вернадського, 79-А (В). Оренда – приміщення 2-го поверху, загальною площею – 37,70 кв.м.
6 424.08 грн
170.40 грн / м2
Приміщення
м. Київ, бульвар Академіка Вернадського, 79-А (В). Оренда – приміщення 2-го поверху, загальною площею – 37,70 кв.м.
Україна, м.Київ, Київ, бульвар Академіка Вернадського, 79
04.06.2025
м. Київ, вул. Архітектора Вербицького, 3 (Дарницький р-н). Оренда – Приміщення 1-го поверху, площею 215,20 м.кв. (В)
25 023.46 грн
116.28 грн / м2
Приміщення
м. Київ, вул. Архітектора Вербицького, 3 (Дарницький р-н). Оренда – Приміщення 1-го поверху, площею 215,20 м.кв. (В)
Україна, м.Київ, Київ, 02091, м. Київ, вул. Архітектора Вербицького , 3
21.10.2025
м. Київ, вул. Наталії Ужвій 1 (Подільський р-н). Оренда – приміщення 3-го поверху, загальною площею – 105,80 м. кв. (В)
31.01.2023
м. Київ, вул. Миколи Голего, 8. Оренда – приміщення 3-го поверху площею 79,7 м2 (В)
17 215.20 грн
216.00 грн / м2
Приміщення
м. Київ, вул. Миколи Голего, 8. Оренда – приміщення 3-го поверху площею 79,7 м2 (В)
Україна, м.Київ, Київ, вулиця Миколи Голего, 8