Вінницька обл., Вінницький р_н, смт. Тиврів, вул. Тиверська, 55. Оренда – приміщення 1го поверху площею 22,4 кв.м. (В)

500.19 грн
22.33 грн / м2
Україна, Харківська обл., Вінницький р_н, смт. Тиврів, вул. Тиверська, 55
Перейти до аукціону на сайті
  • Інформація
  • Опис
  • Документи
Дата оголошення пропозиції:
07 жовтня 2022
Площа:
22.40 м2
Тип об’єкта:
Приміщення
Тип аукціону:
Англійський аукціон
Статус аукціону:
Аукціон не відбувся
Тип угоди:
Оренда
Розмір мінімального кроку:
20.00 ₴
Розмір гарантійного внеску:
300.12 ₴
Початок прийому пропозицій:
07.10.2022 13:16:26
Завершення прийому пропозицій:
07.11.2022 20:00:00
Проведення аукціону:
08.11.2022 11:55:00
Лот:
CLE001-UA-20221007-04233
№ лоту (УТК):
UTK080721_04P
Лот виставляється на торги (раз):
10
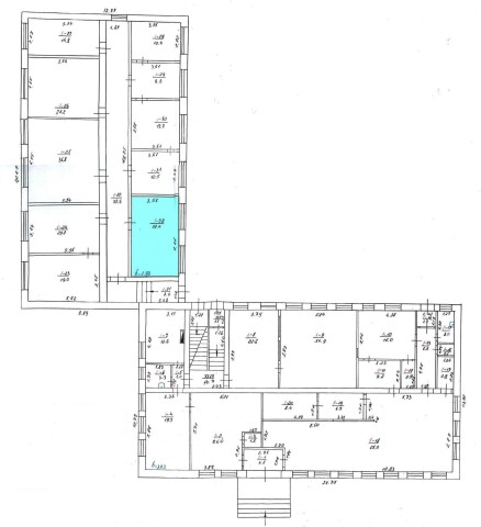
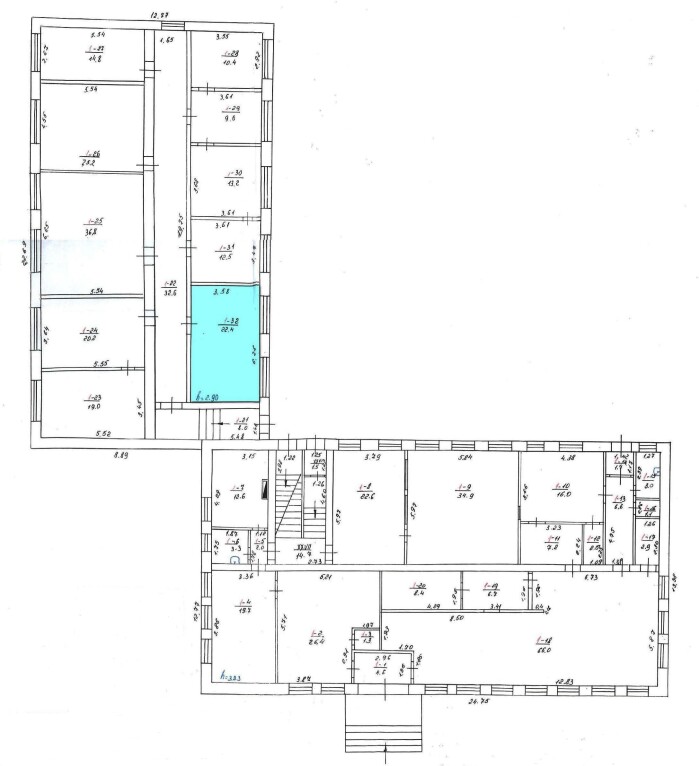
Стислий опис майна:
До оренди пропонуються приміщення 1го поверху площею 22,4 кв.м. Будівля знаходиться в діловому центрі смт. Тиврів Поруч знаходяться магазини, відділення банків, в пішохідній доступності – парк. Характеристики: Кількість поверхів – 2; Загальна площа – 862,4 кв. м; Площа пропонована до оренди – 22,4 кв. м; Електропостачання, водопостачання
Адреса місцезнаходження майна:
Україна, Харківська обл., Вінницький р_н, смт. Тиврів, вул. Тиверська, 55
Схожі пропозиції
14.10.2025
м. Харків, пр-т Ювілейний,66. Оренда – приміщення 2-го поверху площею 10,8 кв.м (В)
572.83 грн
53.04 грн / м2
Приміщення
м. Харків, пр-т Ювілейний,66. Оренда – приміщення 2-го поверху площею 10,8 кв.м (В)
Україна, Харківська обл., м. Харків, пр-т Ювілейний,66
04.09.2025
м. Харків, пр-т Байрона,169. Оренда – приміщення другого поверху площею 36,3 кв.м (В)
1 981.98 грн
54.60 грн / м2
Приміщення
м. Харків, пр-т Байрона,169. Оренда – приміщення другого поверху площею 36,3 кв.м (В)
Україна, Харківська обл., м. Харків, пр-т Байрона, 169
04.03.2025
ДОВГОСТРОКОВА ОРЕНДА! Харків, пр-т. Г. Сталінграду, 169. Оренда – приміщення 4-го поверху площею 684,90 кв.м. (В)
26 711.00 грн
39.00 грн / м2
Приміщення
ДОВГОСТРОКОВА ОРЕНДА! Харків, пр-т. Г. Сталінграду, 169. Оренда – приміщення 4-го поверху площею 684,90 кв.м. (В)
Україна, Харківська обл., м. Харків, пр-т. Г. Сталінграду, 169
30.09.2025
м. Харків, вул. Амосова,13-в. Оренда – група приміщень першого поверху площею 34,0 кв.м (В)
2 536.92 грн
74.62 грн / м2
Приміщення
м. Харків, вул. Амосова,13-в. Оренда – група приміщень першого поверху площею 34,0 кв.м (В)
Україна, Харківська обл., Харків, Харків, вул. Амосова,13-в
Переглянуті пропозиції
Вінницька обл., Гайсинський р-н, с. Ольгопіль, вул. Центральна, 131. Оренда – приміщення площею 86,10 кв.м. (В)
3 207.23 грн
37.25 грн / м2
Приміщення
Вінницька обл., Гайсинський р-н, с. Ольгопіль, вул. Центральна, 131. Оренда – приміщення площею 86,10 кв.м. (В)
Україна, Вінницька обл., Гайсинський р-н, с. Ольгопіль, вул. Центральна, 131
12.05.2023
Львівська обл. смт. Верхнє Синьовидне, вул. Січових Стрільців, 106. Оренда – частини будівлі площею 294,10 кв.м. (В)
3 517.44 грн
11.96 грн / м2
Будівля
Львівська обл. смт. Верхнє Синьовидне, вул. Січових Стрільців, 106. Оренда – частини будівлі площею 294,10 кв.м. (В)
Україна, Львівська обл., смт. Верхнє Синьовидне, вул. Січових Стрільців, 106
19.12.2024
Львівська обл., м. Старий Самбір, вул. Л.Галицького,61.Оренда – приміщення 1-го поверху площею 52,80 кв. м. (В)
8 937.46 грн
169.27 грн / м2
Приміщення
Львівська обл., м. Старий Самбір, вул. Л.Галицького,61.Оренда – приміщення 1-го поверху площею 52,80 кв. м. (В)
Україна, Львівська обл., м. Старий Самбір, вул. Л.Галицького, 61
03.04.2024
Львівська обл., Радехівський р-н., с. Барилів, вул. Б. Хмельницького, 1. Оренда – приміщення 1-го поверху площею 14,70 кв.м. (В)
294.00 грн
20.00 грн / м2
Приміщення
Львівська обл., Радехівський р-н., с. Барилів, вул. Б. Хмельницького, 1. Оренда – приміщення 1-го поверху площею 14,70 кв.м. (В)
Україна, Львівська обл., Радехівський р-н., с. Барилів, вул. Б. Хмельницького, 1