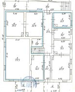
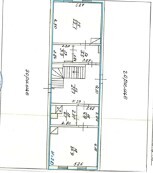
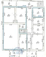
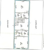
Львівська обл. смт. Верхнє Синьовидне, вул. Січових Стрільців, 106. Оренда – частини будівлі площею 294,10 кв.м. (В)

3 517.44 грн
11.96 грн / м2
Україна, Львівська обл., смт. Верхнє Синьовидне, вул. Січових Стрільців, 106
Перейти до аукціону на сайті
  • Інформація
  • Опис
  • Документи
Дата оголошення пропозиції:
10 квітня 2023
Площа:
294.10 м2
Тип об’єкта:
Будівля
Тип аукціону:
Англійський аукціон
Статус аукціону:
Аукціон не відбувся
Тип угоди:
Оренда
Розмір мінімального кроку:
100.00 ₴
Розмір гарантійного внеску:
2 110.46 ₴
Початок прийому пропозицій:
10.04.2023 11:21:13
Завершення прийому пропозицій:
11.05.2023 20:00:00
Проведення аукціону:
12.05.2023 11:05:00
Лот:
CLE001-UA-20230410-48166
№ лоту (УТК):
UTK201022_11P
Лот виставляється на торги (раз):
6
Стислий опис майна:
Пропонується до оренди частина будівлі площею 294,10 кв. м. Будівля розташована при дорозі в центральній частині селища на автомобільному шляху міжнародного значення . Характеристики: кількість поверхів – 1; автономне газове опалення, ; Вільне до використання електропостачання- 4 кВт; земельна ділянка – 0,25 га (сплачується податок)
Адреса місцезнаходження майна:
Україна, Львівська обл., смт. Верхнє Синьовидне, вул. Січових Стрільців, 106
Схожі пропозиції
15.10.2024
ДОВГОСТРОКОВА ОРЕНДА! Тернопільська обл., м. Тернопіль, вул. Бордуляка, 5. Оренда – будівля складу площею 462,5 кв.м. (В)
21 922.50 грн
47.40 грн / м2
Будівля
ДОВГОСТРОКОВА ОРЕНДА! Тернопільська обл., м. Тернопіль, вул. Бордуляка, 5. Оренда – будівля складу площею 462,5 кв.м. (В)
Україна, Львівська обл., м. Тернопіль, вул. Бордуляка, 5
24.04.2025
ДОВГОСТРОКОВА ОРЕНДА! Львівська обл., м. Львів, вул. Суботівська, 13а.Оренда – нежитлова будівля АТС площею 1813,50 кв. м. (В)
108 810.00 грн
60.00 грн / м2
Будівля
ДОВГОСТРОКОВА ОРЕНДА! Львівська обл., м. Львів, вул. Суботівська, 13а.Оренда – нежитлова будівля АТС площею 1813,50 кв. м. (В)
Україна, Львівська обл., м. Львів, вул. Суботівська, 13а
Львівська обл., Буський р-н, м. Буськ, вул. Заводська, 3Б. Оренда – будівля площею 403,20 кв.м. (В)
7 338.24 грн
18.20 грн / м2
Будівля
Львівська обл., Буський р-н, м. Буськ, вул. Заводська, 3Б. Оренда – будівля площею 403,20 кв.м. (В)
Україна, Львівська обл., м. Буськ, вул. Заводська, 3Б
29.08.2025
Львівська обл. смт. Верхнє Синьовидне, вул. Січових Стрільців, 106. Оренда – частини будівлі площею 294,10 кв.м. (В)
4 185.04 грн
14.23 грн / м2
Будівля
Львівська обл. смт. Верхнє Синьовидне, вул. Січових Стрільців, 106. Оренда – частини будівлі площею 294,10 кв.м. (В)
Україна, Львівська обл., смт. Верхнє Синьовидне, вул. Січових Стрільців, 106
Переглянуті пропозиції
19.12.2024
Львівська обл., м. Старий Самбір, вул. Л.Галицького,61.Оренда – приміщення 1-го поверху площею 52,80 кв. м. (В)
8 937.46 грн
169.27 грн / м2
Приміщення
Львівська обл., м. Старий Самбір, вул. Л.Галицького,61.Оренда – приміщення 1-го поверху площею 52,80 кв. м. (В)
Україна, Львівська обл., м. Старий Самбір, вул. Л.Галицького, 61
03.04.2024
Львівська обл., Радехівський р-н., с. Барилів, вул. Б. Хмельницького, 1. Оренда – приміщення 1-го поверху площею 14,70 кв.м. (В)
294.00 грн
20.00 грн / м2
Приміщення
Львівська обл., Радехівський р-н., с. Барилів, вул. Б. Хмельницького, 1. Оренда – приміщення 1-го поверху площею 14,70 кв.м. (В)
Україна, Львівська обл., Радехівський р-н., с. Барилів, вул. Б. Хмельницького, 1
м. Чернігів, вул. Ринкова, 20 Оренда приміщень 6 пов.
1 659.91 грн
51.55 грн / м2
Приміщення
м. Чернігів, вул. Ринкова, 20 Оренда приміщень 6 пов.
Україна, Чернігівська обл., м. Чернігів, вул. Ринкова, 20
26.11.2025
Сумська обл., м. Путивль, вул. Першотравнева, буд. 86. Оренда – офісні приміщення 2-го поверху площею 54,60 кв.м. (В)
655.20 грн
12.00 грн / м2
Офіс
Сумська обл., м. Путивль, вул. Першотравнева, буд. 86. Оренда – офісні приміщення 2-го поверху площею 54,60 кв.м. (В)
Україна, Сумська обл., м. Путивль, вул. Першотравнева, буд. 86