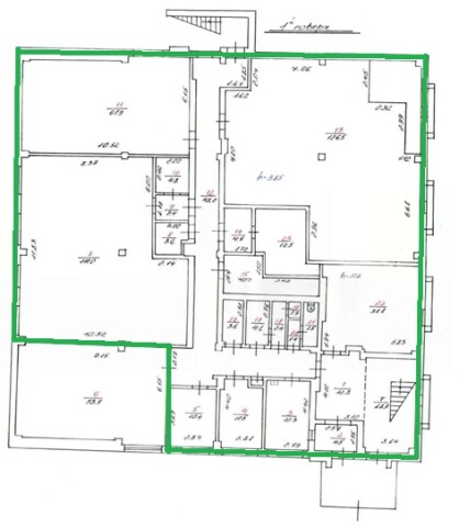
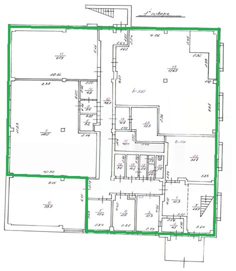
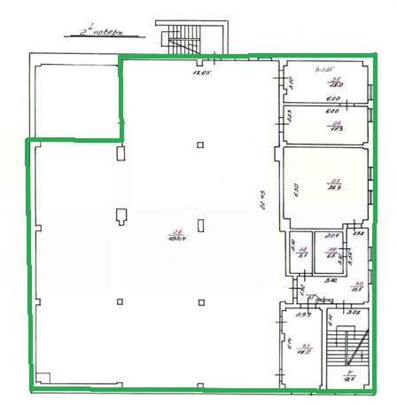
ДОВГОСТРОКОВА ОРЕНДА! Львівська обл., м. Львів, вул. Суботівська, 13а.Оренда – нежитлова будівля АТС площею 1813,50 кв. м. (В)

108 810.00 грн
60.00 грн / м2
Україна, Львівська обл., м. Львів, вул. Суботівська, 13а
Перейти до аукціону на сайті
  • Інформація
  • Опис
  • Документи
Дата оголошення пропозиції:
21 березня 2025
Площа:
1813.50 м2
Тип об’єкта:
Будівля
Тип аукціону:
Англійський аукціон
Статус аукціону:
Аукціон не відбувся
Тип угоди:
Оренда
Розмір мінімального кроку:
2 000.00 ₴
Розмір гарантійного внеску:
65 286.00 ₴
Початок прийому пропозицій:
21.03.2025 15:33:14
Завершення прийому пропозицій:
23.04.2025 20:00:00
Проведення аукціону:
24.04.2025 11:25:00
Лот:
CLE001-UA-20250321-40726
№ лоту (УТК):
UTK201023_21P
Лот виставляється на торги (раз):
10
Стислий опис майна:
Пропонується до оренди будівля АТС площею 1813,50 кв. м.(вся будівля, крім приміщення №6 - кабельна шахта та частини приміщення №24 (36,3 кв.м) – радіовузол). Будівля знаходиться на околиці міста, в районі з розвиненою інфраструктурою і відмінною транспортною розв’язкою. Стан приміщень задовільний. Огороджена територія. Характеристики : кількість поверхів – 3 Електропостачання -20кВт (вільне до використання) Теплопостачання тимчасово відключене Водопостачання та водовідведення. земельна ділянка – 0,3554 га (оренда)
Адреса місцезнаходження майна:
Україна, Львівська обл., м. Львів, вул. Суботівська, 13а
Схожі пропозиції
Львів, вул. Суботівська, 13-А Оренда будівлі
85 959.90 грн
47.40 грн / м2
Будівля
Львів, вул. Суботівська, 13-А Оренда будівлі
Україна, Львівська обл., м. Львів, вул. Суботівська, буд. 13-А
14.05.2024
ДОВГОСТРОКОВА ОРЕНДА! Львівська обл., м. Львів, вул. Суботівська, 13а.Оренда – нежитлова будівля АТС площею 1813,50 кв. м. (В)
110 786.72 грн
61.09 грн / м2
Будівля
ДОВГОСТРОКОВА ОРЕНДА! Львівська обл., м. Львів, вул. Суботівська, 13а.Оренда – нежитлова будівля АТС площею 1813,50 кв. м. (В)
Україна, Львівська обл., м. Львів, вул. Суботівська, 13а
14.05.2024
Львівська обл., с. Сілець, вул. Підберезина, 25. Оренда – частини будівлі загальною площею 48,80 кв. м (В)
622.69 грн
12.76 грн / м2
Будівля
Львівська обл., с. Сілець, вул. Підберезина, 25. Оренда – частини будівлі загальною площею 48,80 кв. м (В)
Україна, Львівська обл., с. Сілець, вул. Підберезина, 25
Переглянуті пропозиції
05.06.2024
Полтавська обл., Кременчуцький р-н., м. Горішні Плавні, вул. Миру, 18. Оренда – Приміщення 2-го поверху, площею 19,90 кв.м. (В)
503.47 грн
25.30 грн / м2
Приміщення
Полтавська обл., Кременчуцький р-н., м. Горішні Плавні, вул. Миру, 18. Оренда – Приміщення 2-го поверху, площею 19,90 кв.м. (В)
Україна, Полтавська обл., Кременчуцький р-н., м. Горішні Плавні, вул. Миру, 18
12.11.2024
м.Харків, пр-т Олександрівський,83. Оренда – приміщення третього поверху, площею 115,9 кв.м (П)
5 493.66 грн
47.40 грн / м2
Приміщення
м.Харків, пр-т Олександрівський,83. Оренда – приміщення третього поверху, площею 115,9 кв.м (П)
Україна, Харківська обл., м. Харків, пр-т Олександрівський, 83
27.09.2024
Харківська обл., м. Харків, вул. Шарикова, 34.Оренда – приміщення 2-го поверху загальною площею 117,00 кв.м. (В)
14 812.20 грн
126.60 грн / м2
Приміщення
Харківська обл., м. Харків, вул. Шарикова, 34.Оренда – приміщення 2-го поверху загальною площею 117,00 кв.м. (В)
Україна, Харківська обл., м. Харків, вул. Шарикова, 34
15.10.2025
Сумська обл., Роменський р-н, смт. Липова Долина, вул. Загорянка, буд. 2. Оренда – офісні приміщення 1-го поверху площею 25,70 кв.м. (В)