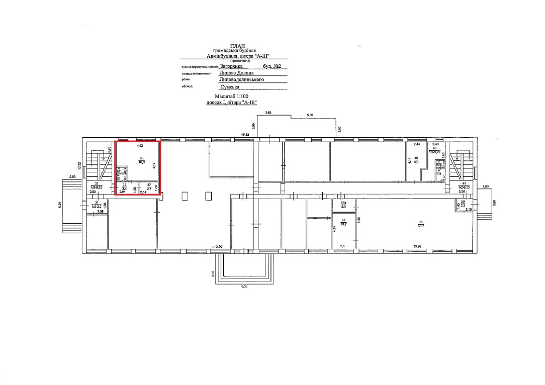
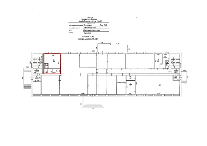
Сумська обл., Роменський р-н, смт. Липова Долина, вул. Загорянка, буд. 2. Оренда – офісні приміщення 1-го поверху площею 25,70 кв.м. (В)

514.00 грн
20.00 грн / м2
Україна, Сумська обл., Липова Долина, вулиця Загорянка, 2
Перейти до аукціону на сайті
  • Інформація
  • Опис
  • Документи
Дата оголошення пропозиції:
11 вересня 2025
Площа:
25.70 м2
Тип об’єкта:
Офіс
Тип аукціону:
Англійський аукціон
Статус аукціону:
Аукціон не відбувся
Тип угоди:
Оренда
Розмір мінімального кроку:
50.00 ₴
Розмір гарантійного внеску:
308.40 ₴
Початок прийому пропозицій:
11.09.2025 09:31:06
Завершення прийому пропозицій:
14.10.2025 20:00:00
Проведення аукціону:
15.10.2025 11:35:00
Лот:
CLE001-UA-20250911-78746
№ лоту (УТК):
UTK120123_06U
Лот виставляється на торги (раз):
4
Стислий опис майна:
Пропонуються до оренди офісні приміщення 1-го поверху площею 25,70 кв.м. Знаходиться в центральній частині міста. Окремий вхід з фасаду. Добра візуалізація з дороги. В даному приміщенні наявне лише електропостачання. Можливість передачі приміщень в суборенду. Доступ вільний 24/7. Характеристики: • Кількість поверхів – 3; • Загальна площа – 1241,75 кв.м.; • Площа запропонована до оренди - 25,70 кв.м.; • Електропостачання – наявне; • Опалення, водопостачання – відсутнє (наявний санвузол та вода загального користування на другому поверсі); • Земельна ділянка – 0,2541 га (договір оренди).
Адреса місцезнаходження майна:
Україна, Сумська обл., Липова Долина, вулиця Загорянка, 2
Схожі пропозиції
21.03.2024
Сумська обл., смт. Велика Писарівка, вул. Грайворонська, 11. Оренда – офісне приміщення на 2-му поверсі площею 20,40 кв.м. (В)
501.84 грн
24.60 грн / м2
Офіс
Сумська обл., смт. Велика Писарівка, вул. Грайворонська, 11. Оренда – офісне приміщення на 2-му поверсі площею 20,40 кв.м. (В)
Україна, Сумська обл., смт. Велика Писарівка, вул. Грайворонська, 11
21.03.2024
Сумська обл., м. Суми, вул. Нижньосироватська, 64. Оренда – офісні приміщення 2-го поверху площею 22,90 кв.м. (В)
1 281.94 грн
55.98 грн / м2
Офіс
Сумська обл., м. Суми, вул. Нижньосироватська, 64. Оренда – офісні приміщення 2-го поверху площею 22,90 кв.м. (В)
Україна, Сумська обл., м. Суми, вул. Нижньосироватська, 64
10.01.2024
Сумська обл., м. Путивль, вул. Першотравнева, буд. 86. Оренда – офісні приміщення 2-го поверху площею 54,60 кв.м. (В)
518.70 грн
9.50 грн / м2
Офіс
Сумська обл., м. Путивль, вул. Першотравнева, буд. 86. Оренда – офісні приміщення 2-го поверху площею 54,60 кв.м. (В)
Україна, Сумська обл., м. Путивль, вул. Першотравнева, буд. 86
05.04.2023
Сумська обл., м. Суми, вул. Іллінська, буд. 2. Оренда – офісні приміщення 3-го поверху площею 438,2 кв. м. (В)
20 244.84 грн
46.20 грн / м2
Офіс
Сумська обл., м. Суми, вул. Іллінська, буд. 2. Оренда – офісні приміщення 3-го поверху площею 438,2 кв. м. (В)
Україна, Сумська обл., м. Суми, вул. Іллінська, буд. 2
Переглянуті пропозиції
12.01.2024
ДОВГОСТРОКОВА ОРЕНДА! Київська обл., м.Обухів, вул. Трипільська (Будьоного), 53;  Оренда–Торговий павільйон, площею 176,5 кв.м. (В)
9 848.70 грн
55.80 грн / м2
Приміщення
ДОВГОСТРОКОВА ОРЕНДА! Київська обл., м.Обухів, вул. Трипільська (Будьоного), 53; Оренда–Торговий павільйон, площею 176,5 кв.м. (В)
Україна, Київська обл., м. Обухів, вулиця Трипільська, 53