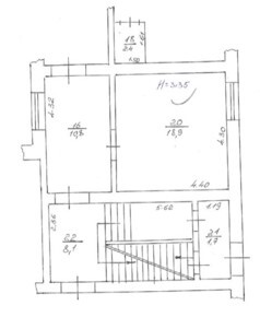
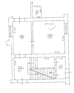
Сумська обл., м. Лебедин, вул. Героїв Майдану, буд. 23, оренда – будівля площею 1 175,1 кв.м (В)

2 373.70 грн
2.02 грн / м2
Україна, Сумська обл., Лебедин, вул. Героїв Майдану, 23
Перейти до аукціону на сайті
  • Інформація
  • Опис
  • Документи
Дата оголошення пропозиції:
28 липня 2022
Площа:
1175.10 м2
Тип об’єкта:
Будівля
Тип аукціону:
Англійський аукціон
Статус аукціону:
Аукціон не відбувся
Тип угоди:
Оренда
Розмір мінімального кроку:
50.00 ₴
Розмір гарантійного внеску:
1 424.22 ₴
Початок прийому пропозицій:
28.07.2022 12:49:17
Завершення прийому пропозицій:
29.08.2022 20:00:00
Проведення аукціону:
30.08.2022 12:35:00
Лот:
CLE001-UA-20220728-57745
№ лоту (УТК):
UTK130721_05T
Лот виставляється на торги (раз):
10
Стислий опис майна:
Пропонується до оренди будівля (частина першого та другий поверхи, підвал) площею 1175,1 кв.м. Об`єкт оренди знаходиться в центральній частині міста. Відмінна візуалізація з дороги. Поруч з будівлею житловий масив, доступність (до 5хв.) від зупинки громадського транспорту, розвинена інфраструктура, магазини, аптеки, училище, високий автомобільний і пішохідний потоки. Комунікації потребують відновлення. Характеристики: • кількість поверхів – 2 • Опалення, водопостачання – відсутні; • електроенергія – відключено (необхідне відновлення електромережі та освітлення по всій будівлі) • земельна ділянка – 0,2809 га (договір оренди ЗД) • стан приміщення –задовільний
Адреса місцезнаходження майна:
Україна, Сумська обл., Лебедин, вул. Героїв Майдану, 23
Схожі пропозиції
Сумська обл., м. Глухів, пров. Сергеєва-Ценського, 13. Оренда – будівля площею 164,6 кв.м.
646.88 грн
3.93 грн / м2
Будівля
Сумська обл., м. Глухів, пров. Сергеєва-Ценського, 13. Оренда – будівля площею 164,6 кв.м.
Україна, Сумська обл., м. Глухів, пров. Сергеєва-Ценського, 13
20.09.2023
Сумська обл., Сумський р-н., с. Хотінь, вул. Соборна, буд. 43. Оренда – частина нежитлової будівлі площею 130,60 кв.м. (В)
1 922.43 грн
14.72 грн / м2
Будівля
Сумська обл., Сумський р-н., с. Хотінь, вул. Соборна, буд. 43. Оренда – частина нежитлової будівлі площею 130,60 кв.м. (В)
Україна, Сумська обл., Сумський р-н., с. Хотінь, вул. Соборна, буд. 43
Сумська обл., м. Шостка, вул. Озерна, 39-А. Оренда частини будівлі
1 290.00 грн
10.75 грн / м2
Будівля
Сумська обл., м. Шостка, вул. Озерна, 39-А. Оренда частини будівлі
Україна, Сумська обл., м. Шостка, вул. Озерна, 39-А
15.07.2025
Сумська обл., Шосткинський р-н, с. Тиманівка, вул. Перемоги, 37. Оренда – нежитлова будівля площею 55,30 кв.м. (В)
663.60 грн
12.00 грн / м2
Будівля
Сумська обл., Шосткинський р-н, с. Тиманівка, вул. Перемоги, 37. Оренда – нежитлова будівля площею 55,30 кв.м. (В)
Україна, Сумська обл., Шосткинський р-н, с. Тиманівка, вул. Перемоги, 37
Переглянуті пропозиції
м. Київ, вул. Володимирська, 10 Оренда – Приміщення 1-го поверху, площею 201,1 м2 (В)
60 531.10 грн
301.00 грн / м2
Приміщення
м. Київ, вул. Володимирська, 10 Оренда – Приміщення 1-го поверху, площею 201,1 м2 (В)
Україна, м.Київ, Київ, вул. Володимирська, 10
Харківська обл., м. Харків, вул. Ак. Вальтера, 3. Оренда – приміщення цокольного поверху площею 105,7 кв.м.
3 488.10 грн
33.00 грн / м2
Приміщення
Харківська обл., м. Харків, вул. Ак. Вальтера, 3. Оренда – приміщення цокольного поверху площею 105,7 кв.м.
Україна, Харківська обл., м. Харків, вул. Ак. Вальтера, 3
ДОВГОСТРОКОВА ОРЕНДА! м. Київ, вул. Ісаакяна, 3 , Оренда – приміщення будівлі літ. «А», площею 1570,90 кв.м. (В)
309 734.35 грн
197.17 грн / м2
Приміщення
ДОВГОСТРОКОВА ОРЕНДА! м. Київ, вул. Ісаакяна, 3 , Оренда – приміщення будівлі літ. «А», площею 1570,90 кв.м. (В)
Україна, м.Київ, Київ, вул. Ісаакяна, 3
10.10.2023
Сумська обл., Сумський р-н, смт. Краснопілля, вул. Сумська, 5. Оренда – офісне приміщення 1-го поверху площею 20,10 кв.м. (В)
530.64 грн
26.40 грн / м2
Офіс
Сумська обл., Сумський р-н, смт. Краснопілля, вул. Сумська, 5. Оренда – офісне приміщення 1-го поверху площею 20,10 кв.м. (В)
Україна, Сумська обл., Сумський р-н, смт. Краснопілля, вул. Сумська, 5