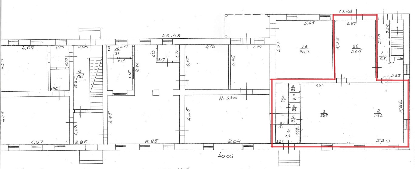
Чернігівська обл., смт. Варва, вул. Шевченка, 39. Оренда – нежитлове приміщення 1го поверху площею 83,3 кв.м. (В)

3 007.13 грн
36.10 грн / м2
Україна, Чернігівська обл., смт. Варва, вул. Шевченка, 39
Перейти до аукціону на сайті
  • Інформація
  • Опис
  • Документи
Дата оголошення пропозиції:
28 липня 2022
Площа:
83.30 м2
Тип об’єкта:
Приміщення
Тип аукціону:
Англійський аукціон
Статус аукціону:
Аукціон не відбувся
Тип угоди:
Оренда
Розмір мінімального кроку:
50.00 ₴
Розмір гарантійного внеску:
1 804.28 ₴
Початок прийому пропозицій:
28.07.2022 13:31:33
Завершення прийому пропозицій:
29.08.2022 20:00:00
Проведення аукціону:
30.08.2022 11:05:00
Лот:
CLE001-UA-20220728-60034
№ лоту (УТК):
UTK230622_07P
Лот виставляється на торги (раз):
2
Стислий опис майна:
Пропонується до оренди приміщення на 1 поверсі, площею 83,3 кв.м. Будівля знаходиться в центральній частині міста, розвинена інфраструктура, високі автомобільний та пішохідний потоки. Характеристики: кількість поверхів – 2 земельна ділянка – 0,2577 га (договір оренди)
Адреса місцезнаходження майна:
Україна, Чернігівська обл., смт. Варва, вул. Шевченка, 39
Схожі пропозиції
06.07.2023
м.Чернігів, вул. Елеваторна, 6а. Оренда – приміщення 1го та 2го поверху площею 382,7 кв.м. (В)
17 680.74 грн
46.20 грн / м2
Приміщення
м.Чернігів, вул. Елеваторна, 6а. Оренда – приміщення 1го та 2го поверху площею 382,7 кв.м. (В)
Україна, Чернігівська обл., Чернігів, Елеваторна вулиця, 6
05.06.2024
Чернігівська обл., м. Городня, вул. 1 Травня, 48;    Оренда – приміщення 2-го поверху площею 143,4 кв.м.(В)
672.55 грн
4.69 грн / м2
Приміщення
Чернігівська обл., м. Городня, вул. 1 Травня, 48; Оренда – приміщення 2-го поверху площею 143,4 кв.м.(В)
Україна, Чернігівська обл., м. Городня, вул. 1-го Травня, 48
24.02.2023
Чернігівська обл., м. Чернігів, проспект Миру, 28. Оренда – приміщення 3-го поверху площею 29,5 кв.м.(В
2 493.93 грн
84.54 грн / м2
Приміщення
Чернігівська обл., м. Чернігів, проспект Миру, 28. Оренда – приміщення 3-го поверху площею 29,5 кв.м.(В
Україна, Чернігівська обл., м. Чернігів, проспект Миру, 28
25.11.2022
Чернігівська обл., м. Бахмач, вул. Соборності, 57, оренда – приміщення 2-го поверху площею 226,60 кв.м. (В)
1 008.37 грн
4.45 грн / м2
Приміщення
Чернігівська обл., м. Бахмач, вул. Соборності, 57, оренда – приміщення 2-го поверху площею 226,60 кв.м. (В)
Україна, Чернігівська обл., м. Бахмач, вулиця Соборності, 57
Переглянуті пропозиції
29.10.2024
Львівська обл., м. Турка, вул. Т.Шевченка, 2. Оренда – приміщення першого поверху площею 37,90 кв. м (В)
1 364.40 грн
36.00 грн / м2
Приміщення
Львівська обл., м. Турка, вул. Т.Шевченка, 2. Оренда – приміщення першого поверху площею 37,90 кв. м (В)
Україна, Львівська обл., м. Турка, вул. Т.Шевченка, 2
27.09.2024
Сумська обл., м. Глухів, пров. Сергеєва-Ценського, буд. 13;   Оренда – тех.будівля площею 164,6 кв.м. (В)
984.31 грн
5.98 грн / м2
Будівля
Сумська обл., м. Глухів, пров. Сергеєва-Ценського, буд. 13; Оренда – тех.будівля площею 164,6 кв.м. (В)
Україна, Сумська обл., Глухів, пров. Сергеєва-Ценського, 13
04.02.2025
Львівська обл., м. Городок, вул. Львівська, 16;  Оренда – приміщення 4-го поверху площею 156,6 кв. м. (В)
1 006.94 грн
6.43 грн / м2
Приміщення
Львівська обл., м. Городок, вул. Львівська, 16; Оренда – приміщення 4-го поверху площею 156,6 кв. м. (В)
Україна, Львівська обл., Городок, Львівська вулиця, 16
17.03.2023
Дніпропетровська обл., м. Синельникове, вул. Богми, 4. Оренда – приміщення гаражу площею 30,7 кв.м. (В)
626.28 грн
20.40 грн / м2
Приміщення
Дніпропетровська обл., м. Синельникове, вул. Богми, 4. Оренда – приміщення гаражу площею 30,7 кв.м. (В)
Україна, Дніпропетровська обл., Синельникове, вулиця Богми, 4