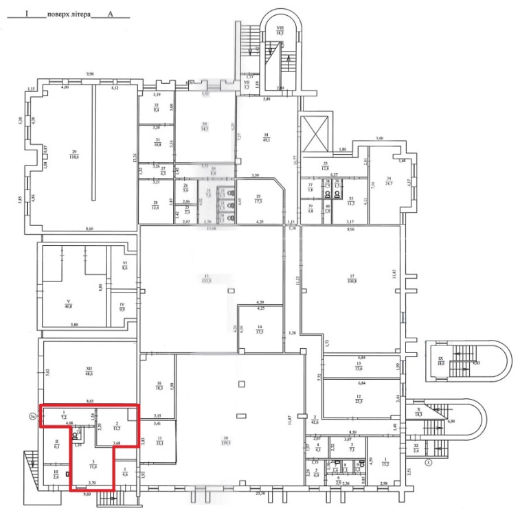
м. Київ, вул. Миколи Голего, 8. Оренда – приміщення 1-го поверху площею 30,90 м2 (В)

10 011.60 грн
324.00 грн / м2
Україна, м.Київ, Київ, вулиця Миколи Голего, 8
Перейти до аукціону на сайті
  • Інформація
  • Опис
  • Документи
Дата оголошення пропозиції:
05 серпня 2022
Площа:
30.90 м2
Тип об’єкта:
Приміщення
Тип аукціону:
Англійський аукціон
Статус аукціону:
Аукціон не відбувся
Тип угоди:
Оренда
Розмір мінімального кроку:
110.00 ₴
Розмір гарантійного внеску:
6 006.96 ₴
Початок прийому пропозицій:
05.08.2022 13:42:26
Завершення прийому пропозицій:
06.09.2022 20:00:00
Проведення аукціону:
07.09.2022 11:20:00
Лот:
CLE001-UA-20220805-89606
№ лоту (УТК):
UTK050822_6T
Лот виставляється на торги (раз):
1
Стислий опис майна:
Пропонуються до оренди приміщення 1-го поверху площею 30,90 м2 . Розташування будівлі: у Солом'янському районі міста Києва, місцевість Караваєві дачі. Поруч розвинена інфраструктура, зупинки маршрутного транспорту, магазини, кафе, аптеки, середній автомобільний і пішохідний потоки. Характеристики • загальна площа будівлі – 5639,80 м2 ; • сан. вузол, каналізація, водопостачання – присутне; • кількість поверхів – 4; • енергетична потужність – 3 кВт; • опалення централізоване (міське); • площа земельної ділянки – 0,3625 га*; *земельна ділянка не є предметом оренди;
Адреса місцезнаходження майна:
Україна, м.Київ, Київ, вулиця Миколи Голего, 8
Схожі пропозиції
30.12.2022
ДОВГОСТРОКОВА ОРЕНДА! м. Київ, вул. Салютна, 5а, літ. «Б». Оренда – приміщення 3-го та 4-го поверхів площею 992,8 кв.м. (В)
ДОВГОСТРОКОВА ОРЕНДА! м. Київ, вул. Антоновича, 40. Оренда – приміщення 5-го поверху, площею 768,70 м2 (В)
253 901.61 грн
330.30 грн / м2
Приміщення
ДОВГОСТРОКОВА ОРЕНДА! м. Київ, вул. Антоновича, 40. Оренда – приміщення 5-го поверху, площею 768,70 м2 (В)
Україна, м.Київ, Київ, вул. Антоновича, 40
м. Київ, вул. Райдужна, 27-А, оренда – приміщення підвалу, площею 274,70 кв.м. (В)
25 217.46 грн
91.80 грн / м2
Приміщення
м. Київ, вул. Райдужна, 27-А, оренда – приміщення підвалу, площею 274,70 кв.м. (В)
Україна, м.Київ, Київ, вул. Райдужна, 27-А
м. Київ, вул. Феодори Пушиної, 27-А, оренда - приміщення 3-го поверху, площею 12,60 м. кв. (В)
2 359.40 грн
187.25 грн / м2
Приміщення
м. Київ, вул. Феодори Пушиної, 27-А, оренда - приміщення 3-го поверху, площею 12,60 м. кв. (В)
Україна, м.Київ, Київ, вул. Феодори Пушиної, 27