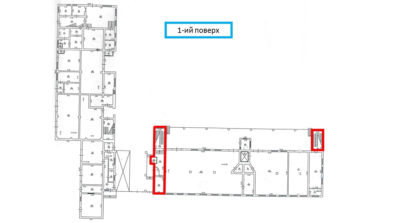
Івано-Франківська обл., м. Івано-Франківськ, вул. Ребета, 2. Оренда – Приміщення 2-го та 3-го поверху адміністративно-складської будівлі, площею 1518,30 кв.м. (В)

70 342.84 грн
46.33 грн / м2
Україна, Івано-Франківська обл., Івано-Франківськ, вулиця Ребета, 2
Перейти до аукціону на сайті
  • Інформація
  • Опис
  • Документи
Дата оголошення пропозиції:
10 серпня 2022
Площа:
1518.30 м2
Тип об’єкта:
Приміщення
Тип аукціону:
Англійський аукціон
Статус аукціону:
Аукціон не відбувся
Тип угоди:
Оренда
Розмір мінімального кроку:
1 000.00 ₴
Розмір гарантійного внеску:
42 205.70 ₴
Початок прийому пропозицій:
10.08.2022 12:24:11
Завершення прийому пропозицій:
08.09.2022 20:00:00
Проведення аукціону:
09.09.2022 12:05:00
Лот:
CLE001-UA-20220810-73578
№ лоту (УТК):
UTK060721_12Т
Лот виставляється на торги (раз):
5
Стислий опис майна:
Пропонуються до оренди приміщення 2-го та 3-го поверху адміністративно-складської будівлі, площею 1518,30 кв.м. Будівля знаходиться на околиці міста в промисловій зоні, розвинена інфраструктура, поруч склади, товарні бази, виробничі цехи. Приміщення можуть використовуватись під склад, виробництво, тощо. • кількість поверхів – 3; • опалення газове; • земельна ділянка – 0,6744 га (договір оренди)
Адреса місцезнаходження майна:
Україна, Івано-Франківська обл., Івано-Франківськ, вулиця Ребета, 2
Схожі пропозиції
22.11.2023
Івано-Франківська обл., Івано-Франківський р-н, м. Рогатин, вул. Галицька, 73.Оренда – приміщення 1-го поверху, площею 146,0 м.кв. (В)
21 556.90 грн
147.65 грн / м2
Приміщення
Івано-Франківська обл., Івано-Франківський р-н, м. Рогатин, вул. Галицька, 73.Оренда – приміщення 1-го поверху, площею 146,0 м.кв. (В)
Україна, Івано-Франківська обл., Івано-Франківський р-н, м. Рогатин, вул. Галицька, 73
м. Івано-Франківськ, вул. В.Симоненка, 1. Оренда – приміщення 1-го поверху площею 54,0 кв.м. (В)
1 617.30 грн
29.95 грн / м2
Приміщення
м. Івано-Франківськ, вул. В.Симоненка, 1. Оренда – приміщення 1-го поверху площею 54,0 кв.м. (В)
Україна, Івано-Франківська обл., Івано-Франківськ, вул. В.Симоненка, 1
м.Івано-Франківськ вул. Ребета, 2. Оренда – cкладські приміщення
21 752.64 грн
46.80 грн / м2
Приміщення
м.Івано-Франківськ вул. Ребета, 2. Оренда – cкладські приміщення
Україна, Івано-Франківська обл., м.Івано-Франківськ, вул. Ребета, 2
08.10.2025
Івано-Франківська обл., Івано-Франківський р-н, м.Тлумач, вул. Шевченка, 20А/1. Оренда – приміщення 1-поверхової будівлі гаражів, площею 121,9 м.кв (В)
3 921.52 грн
32.17 грн / м2
Приміщення
Івано-Франківська обл., Івано-Франківський р-н, м.Тлумач, вул. Шевченка, 20А/1. Оренда – приміщення 1-поверхової будівлі гаражів, площею 121,9 м.кв (В)
Україна, Івано-Франківська обл., Івано-Франківський р-н, м.Тлумач, вул. Шевченка, 20А/1
Переглянуті пропозиції
03.04.2024
Рівненська обл., Рівненський р-н., с. Вітковичі, вул. Ковальська, 1. Оренда – частина приміщення одноповерхової будівлі, площею 10,8 кв.м. (В)
270.00 грн
25.00 грн / м2
Приміщення
Рівненська обл., Рівненський р-н., с. Вітковичі, вул. Ковальська, 1. Оренда – частина приміщення одноповерхової будівлі, площею 10,8 кв.м. (В)
Україна, Рівненська обл., Рівненський р-н., с. Вітковичі, вул. Ковальська, 1
05.06.2024
Полтавська обл., Кременчуцький р-н., м. Горішні Плавні, вул. Миру, 18. Оренда – Приміщення 2-го поверху, площею 19,90 кв.м. (В)
503.47 грн
25.30 грн / м2
Приміщення
Полтавська обл., Кременчуцький р-н., м. Горішні Плавні, вул. Миру, 18. Оренда – Приміщення 2-го поверху, площею 19,90 кв.м. (В)
Україна, Полтавська обл., Кременчуцький р-н., м. Горішні Плавні, вул. Миру, 18
12.11.2024
м.Харків, пр-т Олександрівський,83. Оренда – приміщення третього поверху, площею 115,9 кв.м (П)
5 493.66 грн
47.40 грн / м2
Приміщення
м.Харків, пр-т Олександрівський,83. Оренда – приміщення третього поверху, площею 115,9 кв.м (П)
Україна, Харківська обл., м. Харків, пр-т Олександрівський, 83
27.09.2024
Харківська обл., м. Харків, вул. Шарикова, 34.Оренда – приміщення 2-го поверху загальною площею 117,00 кв.м. (В)
14 812.20 грн
126.60 грн / м2
Приміщення
Харківська обл., м. Харків, вул. Шарикова, 34.Оренда – приміщення 2-го поверху загальною площею 117,00 кв.м. (В)
Україна, Харківська обл., м. Харків, вул. Шарикова, 34