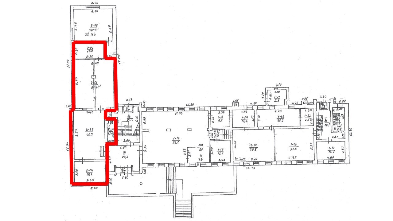
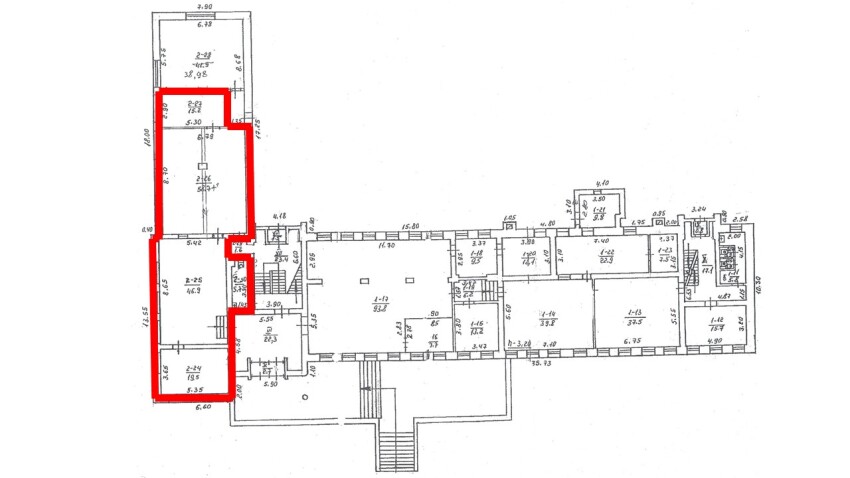
Івано-Франківська обл., Івано-Франківський р-н, м. Рогатин, вул. Галицька, 73.Оренда – приміщення 1-го поверху, площею 146,0 м.кв. (В)

21 556.90 грн
147.65 грн / м2
Україна, Івано-Франківська обл., Івано-Франківський р-н, м. Рогатин, вул. Галицька, 73
Перейти до аукціону на сайті
  • Інформація
  • Опис
  • Документи
Дата оголошення пропозиції:
20 жовтня 2023
Площа:
146.00 м2
Тип об’єкта:
Приміщення
Тип аукціону:
Англійський аукціон
Статус аукціону:
Аукціон не відбувся
Тип угоди:
Оренда
Розмір мінімального кроку:
300.00 ₴
Розмір гарантійного внеску:
12 934.14 ₴
Початок прийому пропозицій:
20.10.2023 17:05:03
Завершення прийому пропозицій:
21.11.2023 20:00:00
Проведення аукціону:
22.11.2023 11:55:00
Лот:
CLE001-UA-20231020-57643
№ лоту (УТК):
UTK201023_40P
Лот виставляється на торги (раз):
1
Стислий опис майна:
Пропонуються до оренди приміщення 1-го поверху, площею 146,0 м.кв. Будівля знаходяться в центральній частині міста. Високі пішохідний та транспортний потоки. Характеристики кількість поверхів – 4 опалення газове земельна ділянка – 0,1146 га (договір оренди)
Адреса місцезнаходження майна:
Україна, Івано-Франківська обл., Івано-Франківський р-н, м. Рогатин, вул. Галицька, 73
Схожі пропозиції
20.10.2023
Івано-Франківська обл., Коломийський р-н, с. Потічок, вул. Незалежності, 46. Оренда – нежитлові приміщення І-го поверху площею 27,7 м.кв. (В)
277.00 грн
10.00 грн / м2
Приміщення
Івано-Франківська обл., Коломийський р-н, с. Потічок, вул. Незалежності, 46. Оренда – нежитлові приміщення І-го поверху площею 27,7 м.кв. (В)
Україна, Івано-Франківська обл., Потічок, вул. Незалежності, 46
27.09.2022
Івано-Франківська обл., м. Івано-Франківськ, вул. В.Симоненка, 1. Оренда – приміщення цокольного поверху, площею 60,2 м.кв. (В)
5 260.28 грн
87.38 грн / м2
Приміщення
Івано-Франківська обл., м. Івано-Франківськ, вул. В.Симоненка, 1. Оренда – приміщення цокольного поверху, площею 60,2 м.кв. (В)
Україна, Івано-Франківська обл., м. Івано-Франківськ, вул. В.Симоненка, 1
м. Івано-Франківськ вул. Ребета, 2. Оренда Нежитлові приміщення площею 1247,5 кв.м.(В)
12 250.45 грн
9.82 грн / м2
Приміщення
м. Івано-Франківськ вул. Ребета, 2. Оренда Нежитлові приміщення площею 1247,5 кв.м.(В)
Україна, Івано-Франківська обл., м. Івано-Франківськ, вул. Ребета, 2
20.10.2023
Івано-Франківська обл., Калуський район, смт. Рожнятів, площа Єдності, 9, оренда – Приміщення 3-го поверху площею 109,6 м.кв. (В)
1 367.81 грн
12.48 грн / м2
Приміщення
Івано-Франківська обл., Калуський район, смт. Рожнятів, площа Єдності, 9, оренда – Приміщення 3-го поверху площею 109,6 м.кв. (В)
Україна, Івано-Франківська обл., Рожнятів, площа Єдності, 9
Переглянуті пропозиції
м. Київ, вул. Оболонська, 29-А, оренда – приміщення 1-го поверху площею 113,30 м2 (В)
25 209.25 грн
222.50 грн / м2
Приміщення
м. Київ, вул. Оболонська, 29-А, оренда – приміщення 1-го поверху площею 113,30 м2 (В)
Україна, м.Київ, Київ, вул. Оболонська, 29-А