м. Київ, вул. Оболонська, 29-А, оренда – приміщення 1-го поверху площею 113,30 м2 (В)

25 209.25 грн
222.50 грн / м2
Україна, м.Київ, Київ, вул. Оболонська, 29-А
Перейти до аукціону на сайті
  • Інформація
  • Опис
  • Документи
Дата оголошення пропозиції:
10 вересня 2021
Площа:
113.30 м2
Тип об’єкта:
Приміщення
Тип аукціону:
Англійський аукціон
Статус аукціону:
Аукціон не відбувся
Тип угоди:
Оренда
Розмір мінімального кроку:
550.00 ₴
Розмір гарантійного внеску:
15 125.55 ₴
Початок прийому пропозицій:
10.09.2021 10:56:43
Завершення прийому пропозицій:
11.10.2021 20:00:00
Лот:
UA-PS-2021-09-10-000019-2
№ лоту (УТК):
UTK070721_02Т
Лот виставляється на торги (раз):
3
Стислий опис майна:
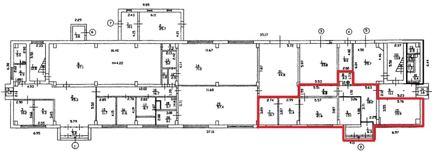
Пропонуються до оренди приміщення 1-го поверху, площею 113,30 м2. Будівля розташована в Подільському районі міста Києва, місцевість Поділ (Плоське). Поруч розвинена інфраструктура, зупинки маршрутного транспорту, супермаркети, бізнес-центри, фінансові заклади, 5 хв. від ст. м. «Тараса Шевченка». Вхід з двору. Доступ 24/7. Характеристики: • загальна площа будівлі – 2791,20 м2 ; • сан. вузол, каналізація, водопостачання – присутне; • кількість поверхів – 4; • опалення централізоване (міське); • площа земельної ділянки – 0,2361 га;
Адреса місцезнаходження майна:
Україна, м.Київ, Київ, вул. Оболонська, 29-А
Схожі пропозиції
31.05.2023
ДОВГОСТРОКОВА ОРЕНДА! м. Київ, вул. Салютна, 5а, літ. «Б». Оренда – приміщення 3-го та 4-го поверхів площею 992,8 кв.м. (В)
27.11.2025
м. Київ, вул. Володимирська, 10, літ. «А-4» (Шевченківський р-н). Оренда – приміщення у підвалі, площею – 49,30 кв.м (В)
14 061.35 грн
285.22 грн / м2
Приміщення
м. Київ, вул. Володимирська, 10, літ. «А-4» (Шевченківський р-н). Оренда – приміщення у підвалі, площею – 49,30 кв.м (В)
Україна, м.Київ, Київ, вул. Володимирська, 10, літ. «А-4»
28.05.2025
м. Київ, вул. Макіївська, 3 (Оболонський р-н) (В). Оренда – приміщення 2-го поверху, площею 724,10 кв. м.
68 724.33 грн
94.91 грн / м2
Приміщення
м. Київ, вул. Макіївська, 3 (Оболонський р-н) (В). Оренда – приміщення 2-го поверху, площею 724,10 кв. м.
Україна, м.Київ, Київ, вулиця Макіївська, 3
м. Київ, вул. Джона Маккейна, №40. Оренда – приміщення підвалу, площею 24,80 м2 (В)
7 195.47 грн
290.14 грн / м2
Приміщення
м. Київ, вул. Джона Маккейна, №40. Оренда – приміщення підвалу, площею 24,80 м2 (В)
Україна, м.Київ, Київ, вул. Джона Маккейна, №40