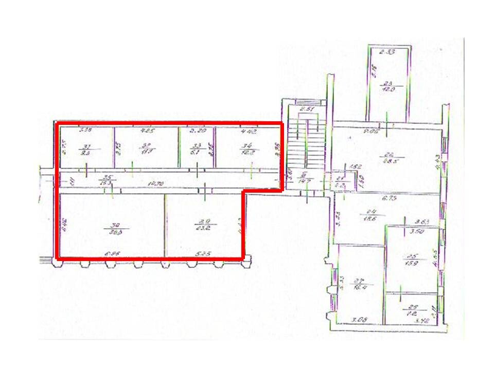
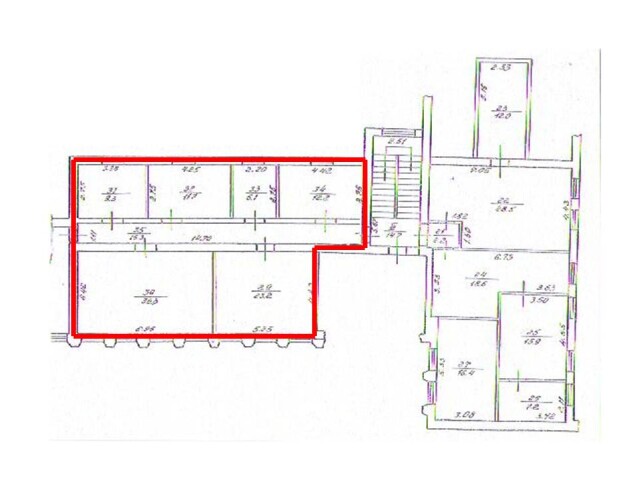
Івано-Франківська обл., Калуський район, смт.Рожнятів, площа Єдності, 9, оренда – Приміщення 3-го поверху площею 109,6 м.кв. (В)

500.87 грн
4.57 грн / м2
Україна, Івано-Франківська обл., Рожнятів, площа Єдності, 9
Перейти до аукціону на сайті
  • Інформація
  • Опис
  • Документи
Дата оголошення пропозиції:
12 серпня 2022
Площа:
109.60 м2
Тип об’єкта:
Приміщення
Тип аукціону:
Англійський аукціон
Статус аукціону:
Аукціон не відбувся
Тип угоди:
Оренда
Розмір мінімального кроку:
40.00 ₴
Розмір гарантійного внеску:
300.52 ₴
Початок прийому пропозицій:
12.08.2022 11:59:37
Завершення прийому пропозицій:
13.09.2022 20:00:00
Проведення аукціону:
14.09.2022 12:30:00
Лот:
CLE001-UA-20220812-27454
№ лоту (УТК):
UTK070721_10Т
Лот виставляється на торги (раз):
10
Стислий опис майна:
Пропонуються до оренди приміщення 3-го поверху. Будівля знаходиться в центральній частині населеного пункту. Високі пішохідний та транспортний потоки. Характеристики: • кількість поверхів – 3 • опалення газове • земельна ділянка – 0,1126 га (договір оренди)
Адреса місцезнаходження майна:
Україна, Івано-Франківська обл., Рожнятів, площа Єдності, 9
Схожі пропозиції
08.10.2025
Івано-Франківська обл., Івано-Франківський р-н, м.Тлумач, вул. Шевченка, 20А/1. Оренда – приміщення 1-поверхової будівлі гаражів, площею 121,9 м.кв (В)
3 921.52 грн
32.17 грн / м2
Приміщення
Івано-Франківська обл., Івано-Франківський р-н, м.Тлумач, вул. Шевченка, 20А/1. Оренда – приміщення 1-поверхової будівлі гаражів, площею 121,9 м.кв (В)
Україна, Івано-Франківська обл., Івано-Франківський р-н, м.Тлумач, вул. Шевченка, 20А/1
25.05.2023
Івано-Франківська обл., Калуський район, смт. Рожнятів, площа Єдності, 9, оренда – Приміщення 3-го поверху площею 100,8 м.кв. (В)
1 257.98 грн
12.48 грн / м2
Приміщення
Івано-Франківська обл., Калуський район, смт. Рожнятів, площа Єдності, 9, оренда – Приміщення 3-го поверху площею 100,8 м.кв. (В)
Україна, Івано-Франківська обл., смт. Рожнятів, площа Єдності, 9
30.08.2022
Івано-Франківська обл., м. Івано-Франківськ, вул. В.Симоненка, 1. Оренда – приміщення цокольного поверху, площею 250,7 м.кв. (В)
12 885.98 грн
51.40 грн / м2
Приміщення
Івано-Франківська обл., м. Івано-Франківськ, вул. В.Симоненка, 1. Оренда – приміщення цокольного поверху, площею 250,7 м.кв. (В)
Україна, Івано-Франківська обл., м. Івано-Франківськ, вул. В.Симоненка, 1
16.04.2025
Івано-Франківська обл., Коломийський р-н, м. Коломия, вул. Чорновола, 45. Оренда – приміщення 4-го поверху, площею 14,8 м.кв (В)
550.56 грн
37.20 грн / м2
Приміщення
Івано-Франківська обл., Коломийський р-н, м. Коломия, вул. Чорновола, 45. Оренда – приміщення 4-го поверху, площею 14,8 м.кв (В)
Україна, Івано-Франківська обл., Коломийський р-н, м. Коломия, вул. Чорновола, 45
Переглянуті пропозиції
04.06.2024
Сумська область, Конотопський р-н, м. Буринь, вул. Першотравнева, буд. 5;  Оренда – приміщення 2-го поверху площею 136,90 кв. м. (В)
3 033.70 грн
22.16 грн / м2
Приміщення
Сумська область, Конотопський р-н, м. Буринь, вул. Першотравнева, буд. 5; Оренда – приміщення 2-го поверху площею 136,90 кв. м. (В)
Україна, Сумська обл., Буринь, ,вул. Першотравнева, буд. 5
м. Чернігів, проспект Миру, 28 Оренда приміщення 3го поверху 38,3 кв.м.
5 362.00 грн
140.00 грн / м2
Приміщення
м. Чернігів, проспект Миру, 28 Оренда приміщення 3го поверху 38,3 кв.м.
Україна, Чернігівська обл., м. Чернігів, проспект Миру, 28
09.01.2024
Полтавська обл., Кременчуцький р-н, м. Горішні Плавні, вулиця Миру, 18. Оренда – приміщення 3-го поверху площею 15,90 кв.м. (В)
1 067.37 грн
67.13 грн / м2
Приміщення
Полтавська обл., Кременчуцький р-н, м. Горішні Плавні, вулиця Миру, 18. Оренда – приміщення 3-го поверху площею 15,90 кв.м. (В)
Україна, Полтавська обл., Кременчуцький р-н, м. Горішні Плавні, вулиця Миру, 18
05.06.2024
Чернігівська обл., м. Городня, вул. Чернігівська (Чорновуса), 7;   Оренда – гаражно-складське приміщення загальною площею 223,1 кв.м. (В)
1 325.21 грн
5.94 грн / м2
Приміщення
Чернігівська обл., м. Городня, вул. Чернігівська (Чорновуса), 7; Оренда – гаражно-складське приміщення загальною площею 223,1 кв.м. (В)
Україна, Чернігівська обл., Городня, вулиця Чернігівська, 7