Івано-Франківська обл., Калуський район, смт. Рожнятів, площа Єдності, 9, оренда – Приміщення 3-го поверху площею 100,8 м.кв. (В)

1 257.98 грн
12.48 грн / м2
Україна, Івано-Франківська обл., смт. Рожнятів, площа Єдності, 9
Перейти до аукціону на сайті
  • Інформація
  • Опис
  • Документи
Дата оголошення пропозиції:
21 квітня 2023
Площа:
100.80 м2
Тип об’єкта:
Приміщення
Тип аукціону:
Англійський аукціон
Статус аукціону:
Аукціон не відбувся
Тип угоди:
Оренда
Розмір мінімального кроку:
100.00 ₴
Розмір гарантійного внеску:
754.79 ₴
Початок прийому пропозицій:
21.04.2023 13:03:08
Завершення прийому пропозицій:
24.05.2023 20:00:00
Проведення аукціону:
25.05.2023 12:15:00
Лот:
CLE001-UA-20230421-77060
№ лоту (УТК):
UTK080721_11Т
Лот виставляється на торги (раз):
10
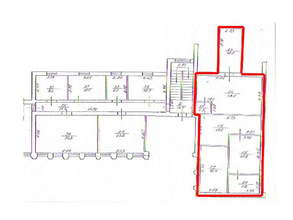
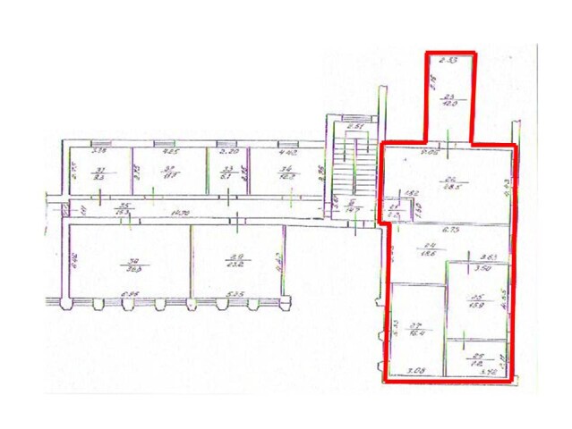
Стислий опис майна:
Пропонуються до оренди приміщення 3-го поверху площею 100,8 м.кв.. Будівля знаходиться в центральній частині населеного пункту. Високі пішохідний та транспортний потоки. Характеристики кількість поверхів – 3 опалення газове земельна ділянка – 0,1126 га (договір оренди)
Адреса місцезнаходження майна:
Україна, Івано-Франківська обл., смт. Рожнятів, площа Єдності, 9
Схожі пропозиції
Івано-Франківська обл., Калуський р-н, м. Долина, вул. Міцкевича, 69. Оренда – приміщення складу, площею 34,7 кв.м. (В)
791.16 грн
22.80 грн / м2
Приміщення
Івано-Франківська обл., Калуський р-н, м. Долина, вул. Міцкевича, 69. Оренда – приміщення складу, площею 34,7 кв.м. (В)
Україна, Івано-Франківська обл., Долина, вул. Міцкевича, 69
26.07.2023
Івано-Франківська обл., Коломийський р-н, с. Потічок, вул. Незалежності, 46. Оренда – нежитлові приміщення І-го поверху площею 27,7 м.кв. (В)
500.26 грн
18.06 грн / м2
Приміщення
Івано-Франківська обл., Коломийський р-н, с. Потічок, вул. Незалежності, 46. Оренда – нежитлові приміщення І-го поверху площею 27,7 м.кв. (В)
Україна, Івано-Франківська обл., Потічок, вул. Незалежності, 46
23.09.2025
 Івано-Франківська обл., Івано-Франківський р-н, м.Івано-Франківськ, вул. Ак.Сахарова, 32. Оренда – приміщення 1-го поверху, площею 58,7 м.кв. (В)
11 168.85 грн
190.27 грн / м2
Приміщення
Івано-Франківська обл., Івано-Франківський р-н, м.Івано-Франківськ, вул. Ак.Сахарова, 32. Оренда – приміщення 1-го поверху, площею 58,7 м.кв. (В)
Україна, Івано-Франківська обл., Івано-Франківськ, вулиця Академіка Сахарова, 32
31.08.2023
Івано-Франківська обл., м. Івано-Франківськ, вул. Ребета, 2                 Оренда – приміщення складу площею 70,2 кв.м. (В)
5 986.66 грн
85.28 грн / м2
Приміщення
Івано-Франківська обл., м. Івано-Франківськ, вул. Ребета, 2 Оренда – приміщення складу площею 70,2 кв.м. (В)
Україна, Івано-Франківська обл., Івано-Франківськ, вулиця Ребета, 2