ДОВГОСТРОКОВА ОРЕНДА! м. Київ, вул. Ісаакяна, 3. Оренда – Приміщення 3-го поверху площею 501,50 кв.м. (В)

75 957.19 грн
151.46 грн / м2
Україна, м.Київ, Київ, вулиця Ісаакяна, 3
Перейти до аукціону на сайті
  • Інформація
  • Опис
  • Документи
Дата оголошення пропозиції:
20 вересня 2022
Площа:
501.50 м2
Тип об’єкта:
Приміщення
Тип аукціону:
Англійський аукціон
Статус аукціону:
Аукціон не відбувся
Тип угоди:
Оренда
Розмір мінімального кроку:
800.00 ₴
Розмір гарантійного внеску:
45 574.31 ₴
Початок прийому пропозицій:
20.09.2022 15:54:42
Завершення прийому пропозицій:
20.10.2022 20:00:00
Проведення аукціону:
21.10.2022 11:05:00
Лот:
CLE001-UA-20220920-81915
№ лоту (УТК):
UTK040422_04T
Лот виставляється на торги (раз):
6
Стислий опис майна:
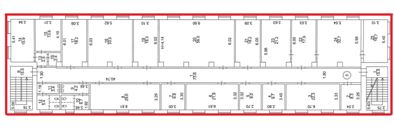
Пропонується до оренди офісні приміщення третього поверху, площею 501,50 кв.м. Розташування будівлі у Шевченківському районі міста Києва, місцевість Шулявка. Поруч розвинена інфраструктура, зупинки швидкісного трамваю, маршрутного та громадського транспорту, магазини, кафе, аптеки. Вхід з двору, через прохідну. Доступ вільний 24/7. Характеристики Загальна площа будівлі – 2069,60 м2; Площа запропонована до оренди – 501,50 м2; Опалення – міське (централізоване) Кількість поверхів – 3; Загальна площа земельної ділянки – 0,2892 га;
Адреса місцезнаходження майна:
Україна, м.Київ, Київ, вулиця Ісаакяна, 3
Схожі пропозиції
м. Київ, пр-т. Оболонський, 32-Б. частина приміщень 2-го поверху, площею 690,20 кв. м. (В)
63 146.40 грн
91.49 грн / м2
Приміщення
м. Київ, пр-т. Оболонський, 32-Б. частина приміщень 2-го поверху, площею 690,20 кв. м. (В)
Україна, м.Київ, Київ, пр-т. Оболонський, 32-Б
22.08.2023
м. Київ, вул. Макіївська, 3     Оренда – приміщення 1-го поверху площею 86,10 кв.м. (П)
23 540.60 грн
273.41 грн / м2
Приміщення
м. Київ, вул. Макіївська, 3 Оренда – приміщення 1-го поверху площею 86,10 кв.м. (П)
Україна, м.Київ, Київ, вулиця Макіївська, 3
30.07.2025
м. Київ, вул. Джона Маккейна, 40, літ. «А» (Печерський р-н). Оренда – група приміщень у підвалі, площею 49,40 кв.м (В)
10 021.78 грн
202.87 грн / м2
Приміщення
м. Київ, вул. Джона Маккейна, 40, літ. «А» (Печерський р-н). Оренда – група приміщень у підвалі, площею 49,40 кв.м (В)
Україна, м.Київ, Київ, 01042, м. Київ, вул. Джона Маккейна, 40, літ. «А» (Печерський р-н)
29.03.2024
м. Київ, вул. Джона Маккейна, №40;   Оренда – приміщення підвалу, площею 24,80 м2 (В)
5 882.31 грн
237.19 грн / м2
Приміщення
м. Київ, вул. Джона Маккейна, №40; Оренда – приміщення підвалу, площею 24,80 м2 (В)
Україна, м.Київ, Київ, вулиця Джона Маккейна, 40