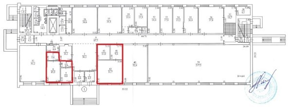
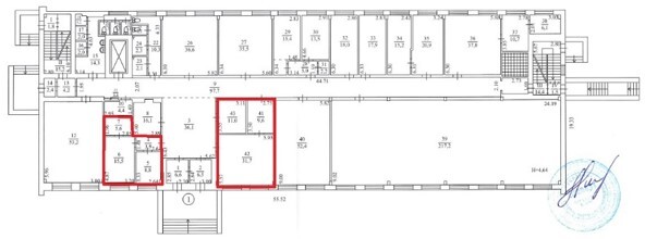
м. Київ, вул. Макіївська, 3 Оренда – приміщення 1-го поверху площею 86,10 кв.м. (П)

23 540.60 грн
273.41 грн / м2
Україна, м.Київ, Київ, вулиця Макіївська, 3
Перейти до аукціону на сайті
  • Інформація
  • Опис
  • Документи
Дата оголошення пропозиції:
21 липня 2023
Площа:
86.10 м2
Тип об’єкта:
Приміщення
Тип аукціону:
Англійський аукціон
Статус аукціону:
Аукціон не відбувся
Тип угоди:
Оренда
Розмір мінімального кроку:
500.00 ₴
Розмір гарантійного внеску:
14 124.36 ₴
Початок прийому пропозицій:
21.07.2023 11:40:42
Завершення прийому пропозицій:
21.08.2023 20:00:00
Проведення аукціону:
22.08.2023 12:25:00
Лот:
CLE001-UA-20230721-78608
№ лоту (УТК):
UTK210723_02T
Лот виставляється на торги (раз):
1
Стислий опис майна:
Пропонуються до оренди приміщення 1-го поверху, площею 86,10 кв. м. Будівля розташована в Оболонському районі міста Києва, місцевість Пріорка. Поруч розвинена інфраструктура, зупинки маршрутного транспорту, супермаркети, кафе. Характеристики • загальна площа об'єкта – 4 688,80 кв.м.; • кількість поверхів – 4; • водозабезпечення, сан. вузол, каналізація – присутні; • електроживлення (дозволена потужність) – 15 кВт; • опалення централізоване (міське); • земельна ділянка – 0,6923 га.
Адреса місцезнаходження майна:
Україна, м.Київ, Київ, вулиця Макіївська, 3
Схожі пропозиції
м. Київ, вул. Джона Маккейна, №40. Оренда – приміщення підвалу, площею 24,80 м2 (В)
7 195.47 грн
290.14 грн / м2
Приміщення
м. Київ, вул. Джона Маккейна, №40. Оренда – приміщення підвалу, площею 24,80 м2 (В)
Україна, м.Київ, Київ, вул. Джона Маккейна, №40
07.11.2024
ДОВГОСТРОКОВА ОРЕНДА! м. Київ, вул. Салютна, 5а, літ. «Б»;  Оренда – приміщення 3-го та 4-го поверхів площею 992,8 кв.м. (В)
122 720.01 грн
123.61 грн / м2
Приміщення
ДОВГОСТРОКОВА ОРЕНДА! м. Київ, вул. Салютна, 5а, літ. «Б»; Оренда – приміщення 3-го та 4-го поверхів площею 992,8 кв.м. (В)
Україна, м.Київ, Київ, вулиця Салютна, 5а, літ.Б
15.08.2023
ДОВГОСТРОКОВА ОРЕНДА! м. Київ, вул. Антоновича, 40, оренда – приміщення 2-го поверху, площею 757,9 кв.м. (В)
233 478.67 грн
308.06 грн / м2
Приміщення
ДОВГОСТРОКОВА ОРЕНДА! м. Київ, вул. Антоновича, 40, оренда – приміщення 2-го поверху, площею 757,9 кв.м. (В)
Україна, м.Київ, Київ, вул. Антоновича, 40
Переглянуті пропозиції
м. Київ, вул. Макіївська, 3.Оренда – приміщення 2-го поверху, площею 724,10 м2 (В)
76 682.19 грн
105.90 грн / м2
Приміщення
м. Київ, вул. Макіївська, 3.Оренда – приміщення 2-го поверху, площею 724,10 м2 (В)
Україна, м.Київ, Київ, вул. Макіївська, 3
09.08.2022
м. Київ, вул. Джона Маккейна, №40 , Оренда – приміщення підвалу, площею 44,26 м2 , (В)
15 593.68 грн
352.80 грн / м2
Приміщення
м. Київ, вул. Джона Маккейна, №40 , Оренда – приміщення підвалу, площею 44,26 м2 , (В)
Україна, м.Київ, Київ, вул. Джона Маккейна, №40
12.01.2023
Довгострокова оренда. м. Київ, вул. Горького (Антоновича), 40. Оренда – приміщення 1-го поверху, площею 538,5 кв. м. (В)
м. Київ, вул. Маршала Малиновського №19-А. Оренда – приміщення 1-го поверху площею 120,30 кв.м. (В)
29 545.68 грн
245.60 грн / м2
Приміщення
м. Київ, вул. Маршала Малиновського №19-А. Оренда – приміщення 1-го поверху площею 120,30 кв.м. (В)
Україна, м.Київ, Київ, вул. Маршала Малиновського №19-А