Рівненська обл., м. Рівне, вул. Соборна, 271. Оренда – приміщення 1 поверху площею 92,1 кв.м. (В)

11 039.11 грн
119.86 грн / м2
Україна, Рівненська обл., м. Рівне, вул. Соборна, 271
Перейти до аукціону на сайті
  • Інформація
  • Опис
  • Документи
Дата оголошення пропозиції:
26 вересня 2022
Площа:
92.10 м2
Тип об’єкта:
Приміщення
Тип аукціону:
Англійський аукціон
Статус аукціону:
Аукціон не відбувся
Тип угоди:
Оренда
Розмір мінімального кроку:
500.00 ₴
Розмір гарантійного внеску:
6 623.46 ₴
Початок прийому пропозицій:
26.09.2022 11:10:43
Завершення прийому пропозицій:
26.10.2022 20:00:00
Проведення аукціону:
27.10.2022 11:05:00
Лот:
CLE001-UA-20220926-50664
№ лоту (УТК):
UTK230822_15P
Лот виставляється на торги (раз):
2
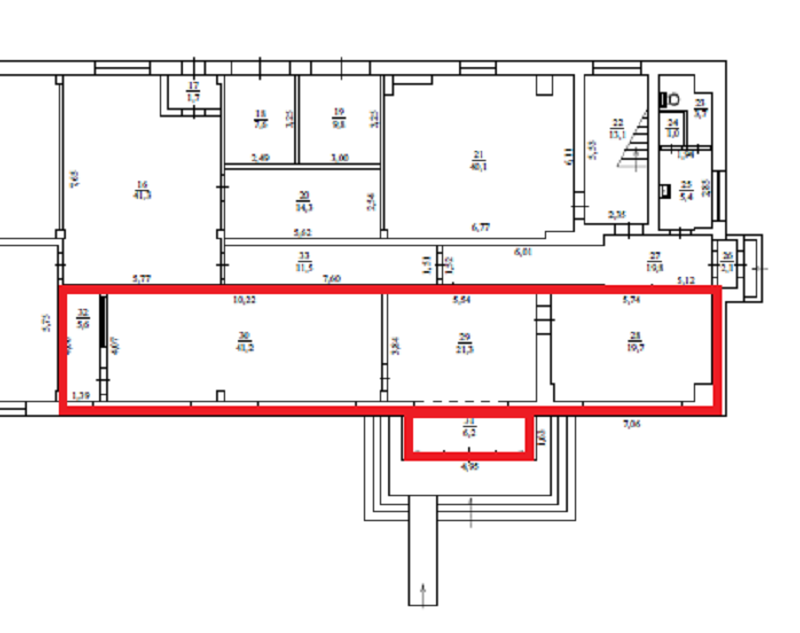
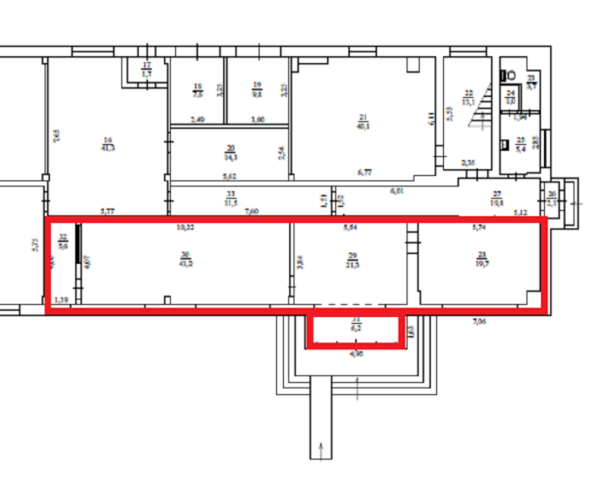
Стислий опис майна:
Пропонується до оренди приміщення 1 поверху площею 92,1 кв.м. Будівля знаходиться в північно-західній частині міста, розвинена інфраструктура, поряд відділення Нової пошти, магазини, парк та стадіон. Досить значні автомобільні та пішохідні потоки. Характеристики: Кількість поверхів – 4; Загальна площа – 2647,0 кв.м.; Площа, запропонована до оренди – 92,1 кв.м.; Опалення - централізоване; Земельна ділянка - площа 0,482 га.
Адреса місцезнаходження майна:
Україна, Рівненська обл., м. Рівне, вул. Соборна, 271
Схожі пропозиції
22.07.2025
Довгострокова оренда! Рівненська обл., м. Рівне вул. Міцкевича, 2. Оренда – приміщення 1-го поверху загальною площею 150,30 м. кв. (В)
16 031.00 грн
106.66 грн / м2
Приміщення
Довгострокова оренда! Рівненська обл., м. Рівне вул. Міцкевича, 2. Оренда – приміщення 1-го поверху загальною площею 150,30 м. кв. (В)
Україна, Рівненська обл., Рівне, 33028 Рівненська обл., м. Рівне, вул. Міцкевича.2
26.10.2022
Рівненська обл., Рівненський р-н, с. Здовбиця, вул. Шосова, 107. Оренда – нежитлові приміщення площею 80,3 м. кв. (В)
1 388.39 грн
17.29 грн / м2
Приміщення
Рівненська обл., Рівненський р-н, с. Здовбиця, вул. Шосова, 107. Оренда – нежитлові приміщення площею 80,3 м. кв. (В)
Україна, Рівненська обл., Рівненський р-н, с. Здовбиця, вул. Шосова, 107
28.02.2025
Рівненська обл., Сарненський р-н, смт. Степань, вул. Київська, 18. Оренда – приміщення 2-го поверху та гараж, загальною площею 186,80 кв.м. (В)
2 241.60 грн
12.00 грн / м2
Приміщення
Рівненська обл., Сарненський р-н, смт. Степань, вул. Київська, 18. Оренда – приміщення 2-го поверху та гараж, загальною площею 186,80 кв.м. (В)
Україна, Рівненська обл., Сарненський р-н, смт. Степань, вул. Київська, 18
07.11.2024
Рівненська обл., Дубенський р-н., смт. Демидівка, вул. Миру, 28. Оренда – складські приміщення 1 поверху площею 128 м. кв. (В)
2 264.32 грн
17.69 грн / м2
Приміщення
Рівненська обл., Дубенський р-н., смт. Демидівка, вул. Миру, 28. Оренда – складські приміщення 1 поверху площею 128 м. кв. (В)
Україна, Рівненська обл., Дубенський р-н., смт. Демидівка, вул. Миру, 28
Переглянуті пропозиції
21.01.2025
Чернігівська обл., м. Чернігів, пр. Левка Лук'яненка ( вул. Рокоссовського), 33;   Оренда – виробничі приміщення 3-го поверху площею 660,9 кв.м. (В)
31 326.66 грн
47.40 грн / м2
Приміщення
Чернігівська обл., м. Чернігів, пр. Левка Лук'яненка ( вул. Рокоссовського), 33; Оренда – виробничі приміщення 3-го поверху площею 660,9 кв.м. (В)
Україна, Чернігівська обл., Чернігів, проспект Левка Лук'яненка, 33