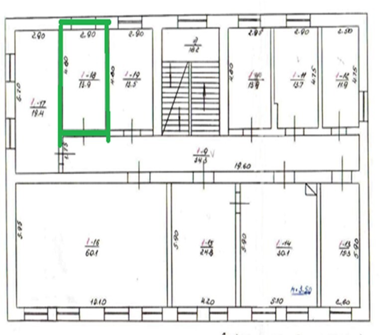
Львівська обл., м. Броди, пл. Ринок, 15. Оренда – приміщення 2-го поверху площею 13,90 кв.м. (В)

500.12 грн
35.98 грн / м2
Україна, Львівська обл., м. Броди, пл. Ринок, 15
Перейти до аукціону на сайті
  • Інформація
  • Опис
  • Документи
Дата оголошення пропозиції:
31 серпня 2022
Площа:
13.90 м2
Тип об’єкта:
Приміщення
Тип аукціону:
Англійський аукціон
Статус аукціону:
Аукціон не відбувся
Тип угоди:
Оренда
Розмір мінімального кроку:
50.00 ₴
Розмір гарантійного внеску:
300.07 ₴
Початок прийому пропозицій:
31.08.2022 15:30:29
Завершення прийому пропозицій:
29.09.2022 20:00:00
Проведення аукціону:
30.09.2022 12:30:00
Лот:
CLE001-UA-20220831-26113
№ лоту (УТК):
UTK230622_09P
Лот виставляється на торги (раз):
2
Стислий опис майна:
Пропонується до оренди приміщення 2-го поверху площею 13,9 кв.м., яке знаходиться в центральній частині міста, в районі з відмінною транспортною розв’язкою. Стан приміщення задовільний. Характеристики: кількість поверхів – 3; теплопостачання; електропостачання; водопостачання та водовідведення; охорона; земельна ділянка – 0,0903 га (договір оренди)
Адреса місцезнаходження майна:
Україна, Львівська обл., м. Броди, пл. Ринок, 15
Схожі пропозиції
21.06.2024
Львівська обл. м. Добромиль, вул. Галицька, 24. Оренда – приміщення складу площею 24,3 кв.м. (В)
291.60 грн
12.00 грн / м2
Приміщення
Львівська обл. м. Добромиль, вул. Галицька, 24. Оренда – приміщення складу площею 24,3 кв.м. (В)
Україна, Львівська обл., м. Добромиль, вул. Галицька, 24
Львівська обл., смт. Верхнє Синьовидне, вул. Січових Стрільців, 106. Оренда – приміщення гаражів площею 318,20 кв.м. (В)
3 474.74 грн
10.92 грн / м2
Приміщення
Львівська обл., смт. Верхнє Синьовидне, вул. Січових Стрільців, 106. Оренда – приміщення гаражів площею 318,20 кв.м. (В)
Україна, Львівська обл., смт. Верхнє Синьовидне, вул. Січових Стрільців, 106
16.01.2024
Львівська обл., м. Стебник, майдан Шевченка, 1. Оренда – приміщення 1-го та 2-го поверху площею 361,60 кв.м. (В)
5 207.04 грн
14.40 грн / м2
Приміщення
Львівська обл., м. Стебник, майдан Шевченка, 1. Оренда – приміщення 1-го та 2-го поверху площею 361,60 кв.м. (В)
Україна, Львівська обл., м. Стебник, майдан Шевченка, 1
07.09.2022
Львівська обл., м. Новояворівськ, вул. Шевченка,7. Оренда – приміщення 2-го поверху площею 148,2 кв.м. (В)
2 429.00 грн
16.39 грн / м2
Приміщення
Львівська обл., м. Новояворівськ, вул. Шевченка,7. Оренда – приміщення 2-го поверху площею 148,2 кв.м. (В)
Україна, Львівська обл., м. Новояворівськ, вул. Шевченка,7
Переглянуті пропозиції
15.10.2025
м. Харків, вул. Амосова,13-в. Оренда - приміщення 2-го поверху площею 36,4 кв.м (В)
1 092.00 грн
29.92 грн / м2
Приміщення
м. Харків, вул. Амосова,13-в. Оренда - приміщення 2-го поверху площею 36,4 кв.м (В)
Україна, Харківська обл., м. Харків, вул. Амосова,13-в