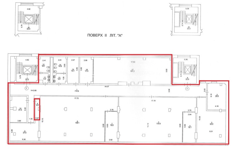
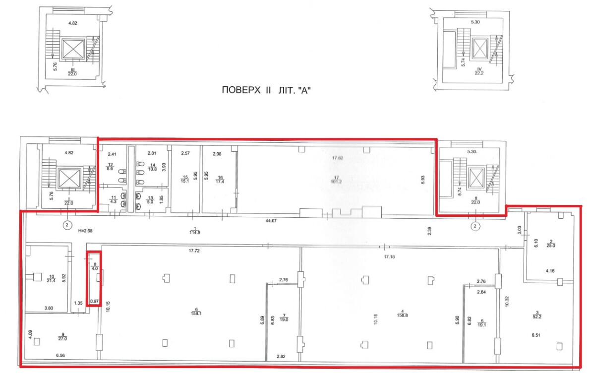
ДОВГОСТРОКОВА ОРЕНДА! м. Київ, вул. Антоновича, 40, оренда – приміщення 2-го поверху, площею 757,90 кв.м. (В)

161 872.28 грн
213.58 грн / м2
Україна, м.Київ, Київ, вул. Антоновича, 40
Перейти до аукціону на сайті
  • Інформація
  • Опис
  • Документи
Дата оголошення пропозиції:
31 серпня 2022
Площа:
757.90 м2
Тип об’єкта:
Приміщення
Тип аукціону:
Англійський аукціон
Статус аукціону:
Аукціон не відбувся
Тип угоди:
Оренда
Розмір мінімального кроку:
2 000.00 ₴
Розмір гарантійного внеску:
97 123.37 ₴
Початок прийому пропозицій:
31.08.2022 16:13:32
Завершення прийому пропозицій:
29.09.2022 20:00:00
Проведення аукціону:
30.09.2022 11:15:00
Лот:
CLE001-UA-20220831-53979
№ лоту (УТК):
UTK120721_01T
Лот виставляється на торги (раз):
8
Стислий опис майна:
Пропонуються до оренди приміщення 2-го, площею 757,90 кв.м. Стан приміщень задовільний. Кондиціонування присутнє в приміщенні. Будівля знаходиться у центрі міста на перехресті вулиць Жилянська та Антоновича. Поруч з БЦ розташована зупинка міського автотранспорту, в 5-ти хвилинах ходьби знаходиться станція метро «Олімпійська», парк Тараса Шевченка. Зарядна станція Utrecharge. Вхід з вул. Антоновича. Характеристики: • кількість поверхів – 9; • загальна площа будівлі – 7649,30 м2; • опалення централізоване (міське); • земельна ділянка – 0,2099 га; • сан. вузол, водопостачання, каналізація - присутні;
Адреса місцезнаходження майна:
Україна, м.Київ, Київ, вул. Антоновича, 40
Схожі пропозиції
19.01.2023
м. Київ, вул. Будівельників, 8-Б, оренда – приміщення підвалу, площею 452,6 кв.м. (В)
20 910.12 грн
46.20 грн / м2
Приміщення
м. Київ, вул. Будівельників, 8-Б, оренда – приміщення підвалу, площею 452,6 кв.м. (В)
Україна, м.Київ, Київ, вулиця Будівельників, 8Б
м. Київ, вул. Ісаакяна, 3. Оренда – Приміщення 1-го поверху площею 57,90 кв.м. (В)
15 346.40 грн
265.05 грн / м2
Приміщення
м. Київ, вул. Ісаакяна, 3. Оренда – Приміщення 1-го поверху площею 57,90 кв.м. (В)
Україна, м.Київ, Київ, вул. Ісаакяна, 3
м. Київ, вул. Антоновича, 40, оренда – приміщення підвалу площею 77,00 кв.м. (В)
17 827.81 грн
231.53 грн / м2
Приміщення
м. Київ, вул. Антоновича, 40, оренда – приміщення підвалу площею 77,00 кв.м. (В)
Україна, м.Київ, Київ, вул. Антоновича, 40
м. Київ, вул. Райдужна, 27-А, оренда – приміщення підвалу, площею 274,70 кв.м. (В)
14 833.80 грн
54.00 грн / м2
Приміщення
м. Київ, вул. Райдужна, 27-А, оренда – приміщення підвалу, площею 274,70 кв.м. (В)
Україна, м.Київ, Київ, вул. Райдужна, 27-А
Переглянуті пропозиції
Львівська обл., м. Стрий, вул. Бачинської, 4Б. Оренда – приміщення площею 80,70 кв.м. (В)
2 837.41 грн
35.16 грн / м2
Приміщення
Львівська обл., м. Стрий, вул. Бачинської, 4Б. Оренда – приміщення площею 80,70 кв.м. (В)
Україна, Львівська обл., м. Стрий, вул. Бачинської, 4Б