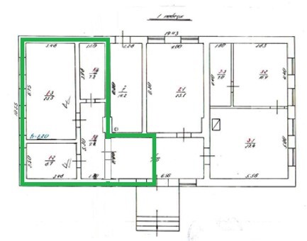
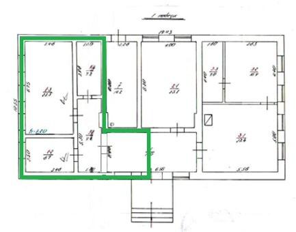
Львівська обл., с. Сілець, вул. Підберезина, 25. Оренда – частини будівлі загальною площею 48,80 кв. м (В)

515.33 грн
10.56 грн / м2
Україна, Львівська обл., с. Сілець, вул. Підберезина, 25
Перейти до аукціону на сайті
  • Інформація
  • Опис
  • Документи
Дата оголошення пропозиції:
03 жовтня 2022
Площа:
48.80 м2
Тип об’єкта:
Будівля
Тип аукціону:
Англійський аукціон
Статус аукціону:
Аукціон не відбувся
Тип угоди:
Оренда
Розмір мінімального кроку:
40.00 ₴
Розмір гарантійного внеску:
309.20 ₴
Початок прийому пропозицій:
03.10.2022 15:50:31
Завершення прийому пропозицій:
01.11.2022 20:00:00
Проведення аукціону:
02.11.2022 11:35:00
Лот:
CLE001-UA-20221003-14840
№ лоту (УТК):
UTK140322_15P
Лот виставляється на торги (раз):
5
Стислий опис майна:
Пропонуються до оренди частини будівлі загальною площею 48,80 кв. м. Будівля розташована на околиці села. Світло потребує відновлення. Характеристики: Стан задовільний Кількість поверхів - 1 Вільне до споживання електропостачання – 2 кВт
Адреса місцезнаходження майна:
Україна, Львівська обл., с. Сілець, вул. Підберезина, 25
Схожі пропозиції
 Львівська обл., с. П’ятничани, вул. Львівська, 1. Оренда – будівля складу площею 75 кв.м. (В)
1 732.50 грн
23.10 грн / м2
Будівля
Львівська обл., с. П’ятничани, вул. Львівська, 1. Оренда – будівля складу площею 75 кв.м. (В)
Україна, Львівська обл., с. П’ятничани , вул. Львівська, 1
м. Трускавець, вул. Героїв УПА 11. Оренда будівлі
17 022.60 грн
17.64 грн / м2
Будівля
м. Трускавець, вул. Героїв УПА 11. Оренда будівлі
Україна, Львівська обл., м. Трускавець, вул. Героїв УПА, буд. 11
24.04.2025
Львівська обл. смт. Верхнє Синьовидне, вул. Січових Стрільців, 106. Оренда – частини будівлі площею 294,10 кв.м. (В)
4 185.04 грн
14.23 грн / м2
Будівля
Львівська обл. смт. Верхнє Синьовидне, вул. Січових Стрільців, 106. Оренда – частини будівлі площею 294,10 кв.м. (В)
Україна, Львівська обл., смт. Верхнє Синьовидне, вул. Січових Стрільців, 106
29.08.2025
Львівська обл., смт. Підбуж, вул. Зелена, 17. Оренда – нежитлова будівля загальною площею 88,30 кв. м. (В)
2 528.03 грн
28.63 грн / м2
Будівля
Львівська обл., смт. Підбуж, вул. Зелена, 17. Оренда – нежитлова будівля загальною площею 88,30 кв. м. (В)
Україна, Львівська обл., смт. Підбуж, вул. Зелена, 17
Переглянуті пропозиції
м. Київ, вул. Олени Теліги, 39-г, літ. «А», оренда – частина приміщень виробничої будівлі, площею 1116,90 м2 (В)
160 163.46 грн
143.40 грн / м2
Приміщення
м. Київ, вул. Олени Теліги, 39-г, літ. «А», оренда – частина приміщень виробничої будівлі, площею 1116,90 м2 (В)
Україна, м.Київ, Київ, вул. Олени Теліги, 39-Г
31.01.2023
м. Київ, вул. Ореста Васкула (Феодори Пушиної), 27. Оренда – приміщення 3-го поверху, площею 7,5 кв.м (В)
2 223.60 грн
296.48 грн / м2
Приміщення
м. Київ, вул. Ореста Васкула (Феодори Пушиної), 27. Оренда – приміщення 3-го поверху, площею 7,5 кв.м (В)
Україна, м.Київ, м. Київ, вул. Ореста Васкула (Феодори Пушиної), 27
29.09.2022
Полтавська обл., Кременчуцький р-н., смт. Семенівка, вул. Воїнів Інтернаціоналістів, 12/9. Оренда – приміщення 3-го поверху площею 93,0 кв.м. (В)
993.24 грн
10.68 грн / м2
Приміщення
Полтавська обл., Кременчуцький р-н., смт. Семенівка, вул. Воїнів Інтернаціоналістів, 12/9. Оренда – приміщення 3-го поверху площею 93,0 кв.м. (В)
Україна, Полтавська обл., Кременчуцький р-н., смт. Семенівка, вул. Воїнів Інтернаціоналістів, 12/9