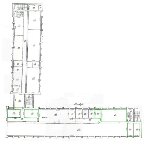
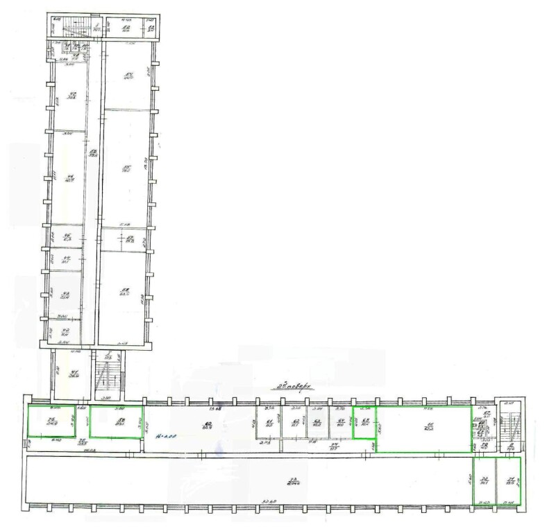
Львівська обл., смт. Івано-Франкове, вул. Львівська, 32. Оренда – приміщення 3-го поверху площею 119,50 кв. м. (В)

1 376.64 грн
11.52 грн / м2
Україна, Львівська обл., смт. Івано-Франкове, вул. Львівська, 32
Перейти до аукціону на сайті
  • Інформація
  • Опис
  • Документи
Дата оголошення пропозиції:
12 жовтня 2022
Площа:
119.50 м2
Тип об’єкта:
Приміщення
Тип аукціону:
Англійський аукціон
Статус аукціону:
Аукціон не відбувся
Тип угоди:
Оренда
Розмір мінімального кроку:
50.00 ₴
Розмір гарантійного внеску:
825.98 ₴
Початок прийому пропозицій:
12.10.2022 11:11:03
Завершення прийому пропозицій:
09.11.2022 20:00:00
Проведення аукціону:
10.11.2022 12:55:00
Лот:
CLE001-UA-20221012-72076
№ лоту (УТК):
UTK160721_11Р
Лот виставляється на торги (раз):
10
Стислий опис майна:
Пропонуються до оренди приміщення 3-го поверху площею 119,50 кв.м. Будівля розташована при дорозі в центральній частині селища, неподалік від селищної ради. Можливий окремий вхід. Характеристики: кількість поверхів – 3 газове опалення, але в даних приміщеннях необхідно провести відповідні заходи для покращення газопостачання; водопостачання частково потребує відновлення; вільне до використання електропостачання – 2,5 кВт земельна ділянка – 0,15 га
Адреса місцезнаходження майна:
Україна, Львівська обл., смт. Івано-Франкове, вул. Львівська, 32
Схожі пропозиції
29.10.2024
Львівська обл., м. Турка, вул. Т.Шевченка, 2. Оренда – приміщення першого поверху площею 37,90 кв. м (В)
1 364.40 грн
36.00 грн / м2
Приміщення
Львівська обл., м. Турка, вул. Т.Шевченка, 2. Оренда – приміщення першого поверху площею 37,90 кв. м (В)
Україна, Львівська обл., м. Турка, вул. Т.Шевченка, 2
Львівська обл., м. Новояворівськ, вул. Шевченка,7. Оренда – нежитлові приміщення 3-го поверху
3 956.40 грн
12.60 грн / м2
Приміщення
Львівська обл., м. Новояворівськ, вул. Шевченка,7. Оренда – нежитлові приміщення 3-го поверху
Україна, Львівська обл., м. Новояворівськ, вул. Шевченка,7
09.11.2022
Львівська обл., с. Зубів Міст, вул. Широка, 23. Оренда – приміщення 2-го поверху площею 17,30 кв. м (В)
500.14 грн
28.91 грн / м2
Приміщення
Львівська обл., с. Зубів Міст, вул. Широка, 23. Оренда – приміщення 2-го поверху площею 17,30 кв. м (В)
Україна, Львівська обл., Зубів Міст, вул. Широка, 23
27.04.2023
Львівська обл., м. Судова Вишня, пл. Ів. Франка, 13. Оренда – приміщення 2-го поверху площею 47,40 кв.м. (В)
1 465.61 грн
30.92 грн / м2
Приміщення
Львівська обл., м. Судова Вишня, пл. Ів. Франка, 13. Оренда – приміщення 2-го поверху площею 47,40 кв.м. (В)
Україна, Львівська обл., м. Судова Вишня, пл. Ів. Франка, 13
Переглянуті пропозиції
27.09.2024
Полтавська обл., Полтавський р-н, м. Решетілівка, вул. Старокиївська, 2. Оренда – Приміщення 2-го поверху, площею 14,60 кв.м. (В)
500.05 грн
34.25 грн / м2
Приміщення
Полтавська обл., Полтавський р-н, м. Решетілівка, вул. Старокиївська, 2. Оренда – Приміщення 2-го поверху, площею 14,60 кв.м. (В)
Україна, Полтавська обл., Полтавський р-н, м. Решетілівка, вул. Старокиївська, 2
27.09.2024
м.Харків, вул. Амосова,13 в. Оренда – приміщення 2-го поверху площею 136,3 кв.м (В)
7 345.21 грн
53.89 грн / м2
Приміщення
м.Харків, вул. Амосова,13 в. Оренда – приміщення 2-го поверху площею 136,3 кв.м (В)
Україна, Харківська обл., м. Харків, вул. Амосова,13 в
04.11.2025
Закарпатськаобл., м. Мукачево, вул. І. Зріні, 115. Оренда –групаприміщень на 3 поверсі площею 181,0 кв.м. (В)
9 904.32 грн
54.72 грн / м2
Приміщення
Закарпатськаобл., м. Мукачево, вул. І. Зріні, 115. Оренда –групаприміщень на 3 поверсі площею 181,0 кв.м. (В)
Україна, Закарпатська обл., Мукачево, вулиця Ілони Зріні, 115