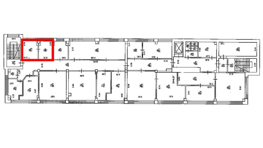
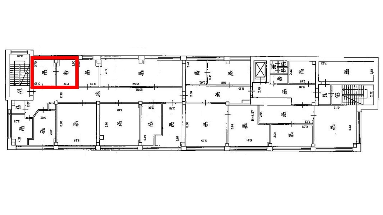
Івано-Франківська обл., Коломийський р-н, м. Коломия, вул. Чорновола, 45. Оренда – приміщення 4-го поверху площею 20,9 кв.м. (В)

544.24 грн
26.04 грн / м2
Україна, Івано-Франківська обл., Коломия, вул. Чорновола, 45
Перейти до аукціону на сайті
  • Інформація
  • Опис
  • Документи
Дата оголошення пропозиції:
17 жовтня 2022
Площа:
20.90 м2
Тип об’єкта:
Приміщення
Тип аукціону:
Англійський аукціон
Статус аукціону:
Аукціон не відбувся
Тип угоди:
Оренда
Розмір мінімального кроку:
50.00 ₴
Розмір гарантійного внеску:
326.54 ₴
Початок прийому пропозицій:
17.10.2022 19:54:33
Завершення прийому пропозицій:
15.11.2022 20:00:00
Проведення аукціону:
16.11.2022 12:55:00
Лот:
CLE001-UA-20221017-65696
№ лоту (УТК):
UTK050822_5T
Лот виставляється на торги (раз):
3
Стислий опис майна:
Пропонуються до оренди приміщення 4-го поверху, площею 20,9 кв.м. Будівля знаходиться в центральній частині міста, розвинена інфраструктура, високий пішохідний потік. Характеристики: • кількість поверхів – 5 • опалення газове; • земельна ділянка – 0,1486 га (договір оренди)
Адреса місцезнаходження майна:
Україна, Івано-Франківська обл., Коломия, вул. Чорновола, 45
Схожі пропозиції
16.01.2024
Івано-Франківська обл., м. Івано-Франківськ, вул. В.Симоненка, 1. Оренда – приміщення цокольного поверху, площею 250,7 м.кв. (В)
15 804.13 грн
63.04 грн / м2
Приміщення
Івано-Франківська обл., м. Івано-Франківськ, вул. В.Симоненка, 1. Оренда – приміщення цокольного поверху, площею 250,7 м.кв. (В)
Україна, Івано-Франківська обл., м. Івано-Франківськ, вул. В.Симоненка, 1
13.03.2025
Івано-Франківська обл. м.Івано-Франківськ, вул. В.Симоненка, 1;  Оренда – приміщення 1-го поверху, площею 37,5 кв.м. (В)
3 121.88 грн
83.25 грн / м2
Приміщення
Івано-Франківська обл. м.Івано-Франківськ, вул. В.Симоненка, 1; Оренда – приміщення 1-го поверху, площею 37,5 кв.м. (В)
Україна, Івано-Франківська обл., Івано-Франківськ, вулиця Василя Симоненка, 1
10.04.2024
Івано-Франківська обл., Івано-Франківський р-н, м. Рогатин, вул. Галицька, 73.Оренда – приміщення 1-го поверху, площею 146,0 м.кв. (В)
5 749.48 грн
39.38 грн / м2
Приміщення
Івано-Франківська обл., Івано-Франківський р-н, м. Рогатин, вул. Галицька, 73.Оренда – приміщення 1-го поверху, площею 146,0 м.кв. (В)
Україна, Івано-Франківська обл., Івано-Франківський р-н, м. Рогатин, вул. Галицька, 73
Івано-Франківська обл., Івано-Франківський р-н, м. Рогатин, вул. Галицька, 73. Оренда – Приміщення 1-го поверху площею 42,9 кв.м. (В)
4 670.52 грн
108.87 грн / м2
Приміщення
Івано-Франківська обл., Івано-Франківський р-н, м. Рогатин, вул. Галицька, 73. Оренда – Приміщення 1-го поверху площею 42,9 кв.м. (В)
Україна, Івано-Франківська обл., Івано-Франківський р-н, м. Рогатин, вул. Галицька, 73
Переглянуті пропозиції
29.03.2024
м. Київ, вул. Героїв Севастополя, 39/8, літ.«В»;   Оренда – приміщення 1-го поверху блоку зовнішніх споруд, площею 80,60 кв.м. (В)
15 771.00 грн
195.67 грн / м2
Приміщення
м. Київ, вул. Героїв Севастополя, 39/8, літ.«В»; Оренда – приміщення 1-го поверху блоку зовнішніх споруд, площею 80,60 кв.м. (В)
Україна, м.Київ, Київ, вул. Героїв Севастополя, 39/8(В)
03.12.2024
м.Харків, вул. Амосова,13-В;  Оренда – приміщення цокольного та 2- го поверху площею 301,5 кв.м. (П)
23 212.49 грн
76.99 грн / м2
Приміщення
м.Харків, вул. Амосова,13-В; Оренда – приміщення цокольного та 2- го поверху площею 301,5 кв.м. (П)
Україна, Харківська обл., Харків, вулиця Амосова, 13-В
Сумська обл., м. Лебедин, вул. Шевська, буд. 46. Оренда – нежитлова будівля площею 236,9 кв.м (В)
2 444.81 грн
10.32 грн / м2
Будівля
Сумська обл., м. Лебедин, вул. Шевська, буд. 46. Оренда – нежитлова будівля площею 236,9 кв.м (В)
Україна, Сумська обл., м. Лебедин, вул. Шевська, буд. 46
05.05.2023
Полтавська обл., м. Решетилівка, вулиця Старокиївська, 2. Оренда – приміщення 1-го поверху площею 28,10 кв.м. (В)
628.32 грн
22.36 грн / м2
Приміщення
Полтавська обл., м. Решетилівка, вулиця Старокиївська, 2. Оренда – приміщення 1-го поверху площею 28,10 кв.м. (В)
Україна, Полтавська обл., м. Решетилівка, вулиця Старокиївська, 2