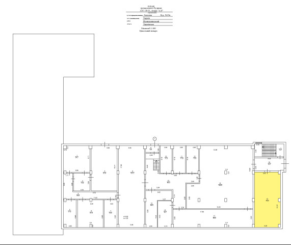
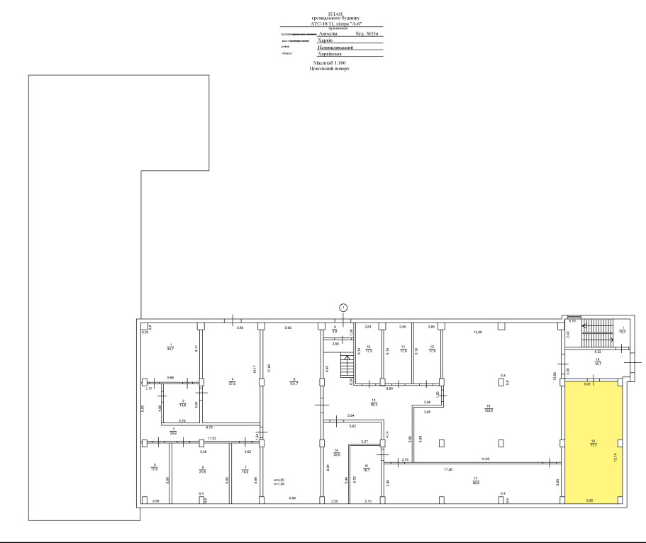
м.Харків, вул. Амосова,13-В; Оренда – приміщення цокольного та 2- го поверху площею 301,5 кв.м. (П)

23 212.49 грн
76.99 грн / м2
Україна, Харківська обл., Харків, вулиця Амосова, 13-В
Перейти до аукціону на сайті
  • Інформація
  • Опис
  • Документи
Дата оголошення пропозиції:
01 листопада 2024
Площа:
301.50 м2
Тип об’єкта:
Приміщення
Тип аукціону:
Англійський аукціон
Статус аукціону:
Аукціон не відбувся
Тип угоди:
Оренда
Розмір мінімального кроку:
300.00 ₴
Розмір гарантійного внеску:
13 927.49 ₴
Початок прийому пропозицій:
01.11.2024 13:47:32
Завершення прийому пропозицій:
02.12.2024 20:00:00
Проведення аукціону:
03.12.2024 12:35:00
Лот:
CLE001-UA-20241101-82272
№ лоту (УТК):
UTK011124_01T
Лот виставляється на торги (раз):
1
Стислий опис майна:
Пропонується до оренди приміщення цокольного та 2-го поверху площею 301,5 кв.м. Будівля в спальному районі міста Харкова. 10 хв до зупинки транспорту. Характеристики: Кількість поверхів – 5; Загальна площа – 4838,00 кв.м_ Площа запропонована до оренди – 301,5 кв.м. Дозволена потужність – 6 кВт Теплопостачання-централізоване Земельна ділянка – 0,4825 га
Адреса місцезнаходження майна:
Україна, Харківська обл., Харків, вулиця Амосова, 13-В
Схожі пропозиції
14.02.2024
м. Харків, вул. Конторська,14.Оренда – приміщення 2-го поверху площею 36,2 кв.м (В)
2 508.66 грн
69.30 грн / м2
Приміщення
м. Харків, вул. Конторська,14.Оренда – приміщення 2-го поверху площею 36,2 кв.м (В)
Україна, Харківська обл., м. Харків, вул. Конторська,14
15.10.2025
м. Харків, вул. Старошишківська, 5а. Оренда – приміщення 3-го поверху площею 160,4 кв.м. (В)
4 812.00 грн
30.00 грн / м2
Приміщення
м. Харків, вул. Старошишківська, 5а. Оренда – приміщення 3-го поверху площею 160,4 кв.м. (В)
Україна, Харківська обл., м. Харків, вул. Старошишківська, 5а
03.06.2025
м. Харків, вул. Амосова,13-в. Оренда - приміщення 2-го поверху площею 36,4 кв.м (В)
1 579.40 грн
43.27 грн / м2
Приміщення
м. Харків, вул. Амосова,13-в. Оренда - приміщення 2-го поверху площею 36,4 кв.м (В)
Україна, Харківська обл., м. Харків, вул. Амосова,13-в
Харківська обл., Харківський р-н, м. Мерефа, вул. Дніпровська, 226. Оренда – приміщення 2-го поверху будівлі «Дизельна», площею 85,80 кв.м. (В)
1 400.26 грн
16.32 грн / м2
Приміщення
Харківська обл., Харківський р-н, м. Мерефа, вул. Дніпровська, 226. Оренда – приміщення 2-го поверху будівлі «Дизельна», площею 85,80 кв.м. (В)
Україна, Харківська обл., Харківський р-н, м. Мерефа, вул. Дніпровська, 226
Переглянуті пропозиції
Сумська обл., м. Лебедин, вул. Шевська, буд. 46. Оренда – нежитлова будівля площею 236,9 кв.м (В)
2 444.81 грн
10.32 грн / м2
Будівля
Сумська обл., м. Лебедин, вул. Шевська, буд. 46. Оренда – нежитлова будівля площею 236,9 кв.м (В)
Україна, Сумська обл., м. Лебедин, вул. Шевська, буд. 46
05.05.2023
Полтавська обл., м. Решетилівка, вулиця Старокиївська, 2. Оренда – приміщення 1-го поверху площею 28,10 кв.м. (В)
628.32 грн
22.36 грн / м2
Приміщення
Полтавська обл., м. Решетилівка, вулиця Старокиївська, 2. Оренда – приміщення 1-го поверху площею 28,10 кв.м. (В)
Україна, Полтавська обл., м. Решетилівка, вулиця Старокиївська, 2
12.04.2023
Рівненська обл., м. Рівне, вул. Боярка, 54 а, б. Оренда – комплекс будівель площею 620,1 м. кв. (В)
28 648.62 грн
46.20 грн / м2
Будівля
Рівненська обл., м. Рівне, вул. Боярка, 54 а, б. Оренда – комплекс будівель площею 620,1 м. кв. (В)
Україна, Рівненська обл., м. Рівне, вул. Боярка, 54 а, б
03.12.2024
Львівська обл., м. Дрогобич, вул. Д.Галицького, 21. Оренда – приміщення 2-го поверху площею 83,40 кв. м. (В)
2 451.96 грн
29.40 грн / м2
Приміщення
Львівська обл., м. Дрогобич, вул. Д.Галицького, 21. Оренда – приміщення 2-го поверху площею 83,40 кв. м. (В)
Україна, Львівська обл., м. Дрогобич, вул. Д.Галицького, 21