Рівненська обл., Вараський р-н. смт. Володимирець вул. Поштова, 23. Оренда – приміщення 1-го поверху площею 52,8 кв.м. (В)

1 172.16 грн
22.20 грн / м2
Україна, Рівненська обл., Вараський р-н. смт. Володимирець, смт. Володимирець вул. Поштова, 23
Перейти до аукціону на сайті
  • Інформація
  • Опис
  • Документи
Дата оголошення пропозиції:
19 жовтня 2022
Площа:
52.80 м2
Тип об’єкта:
Приміщення
Тип аукціону:
Англійський аукціон
Статус аукціону:
Аукціон не відбувся
Тип угоди:
Оренда
Розмір мінімального кроку:
50.00 ₴
Розмір гарантійного внеску:
703.30 ₴
Початок прийому пропозицій:
19.10.2022 13:49:49
Завершення прийому пропозицій:
17.11.2022 20:00:00
Проведення аукціону:
18.11.2022 12:15:00
Лот:
CLE001-UA-20221019-03257
№ лоту (УТК):
UTK020721_11P
Лот виставляється на торги (раз):
10
Стислий опис майна:
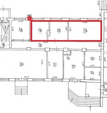
Пропонується до оренди приміщення 1-го поверху, площею 52,8 м.кв. Будівля знаходиться в центральній частині смт. , розвинена інфраструктура, поряд відділення Укрпошти, магазини та адміністративні приміщення. Територія огороджена та частково впорядкована. Характеристики: Кількість поверхів – 2; Загальна площа – 1183,4 м.кв.; Площа, запропонована до оренди – 52,8 м.кв.; Земельна ділянка - площа 0,2703 га.
Адреса місцезнаходження майна:
Україна, Рівненська обл., Вараський р-н. смт. Володимирець, смт. Володимирець вул. Поштова, 23
Схожі пропозиції
17.03.2023
Рівненська обл., Вараський р-н, с. Біле, вул. Радянська, 30. Оренда – нежитлове приміщення площею 10,1 кв.м. (В)
501.26 грн
49.63 грн / м2
Приміщення
Рівненська обл., Вараський р-н, с. Біле, вул. Радянська, 30. Оренда – нежитлове приміщення площею 10,1 кв.м. (В)
Україна, Рівненська обл., Біле, вул. Радянська, 30
23.07.2025
Довгострокова Рівненська обл., м. Рівне вул. Соборна,56 Оренда – приміщення цокольного поверху  площею 242,40 кв.м (В).
28 785.00 грн
118.75 грн / м2
Приміщення
Довгострокова Рівненська обл., м. Рівне вул. Соборна,56 Оренда – приміщення цокольного поверху площею 242,40 кв.м (В).
Україна, Рівненська обл., Рівне, вулиця Соборна, 56
24.05.2023
Рівненська обл., м. Рівне, вул. В.Чорновола, 1. Оренда – приміщення 1-го та 2-го поверху площею 147,8 кв.м. (В)
20 558.98 грн
139.10 грн / м2
Приміщення
Рівненська обл., м. Рівне, вул. В.Чорновола, 1. Оренда – приміщення 1-го та 2-го поверху площею 147,8 кв.м. (В)
Україна, Рівненська обл., м. Рівне, вул. В.Чорновола, 1
Рівненська обл. Дубенський р-н, с. Малеве, вул. Лесі Українки, 55. Оренда – приміщення площею 18,2 м.кв. (В)
500.14 грн
27.48 грн / м2
Приміщення
Рівненська обл. Дубенський р-н, с. Малеве, вул. Лесі Українки, 55. Оренда – приміщення площею 18,2 м.кв. (В)
Україна, Рівненська обл., Малеве, вул. Лесі Українки, 55
Переглянуті пропозиції
17.11.2023
Полтавська обл., Кременчуцький р-н., смт. Семенівка, вул. Воїнів Інтернаціоналістів, 12/9. Оренда – Приміщення 3-го поверху площею 105,6 кв.м. (В)
570.24 грн
5.40 грн / м2
Приміщення
Полтавська обл., Кременчуцький р-н., смт. Семенівка, вул. Воїнів Інтернаціоналістів, 12/9. Оренда – Приміщення 3-го поверху площею 105,6 кв.м. (В)
Україна, Полтавська обл., Кременчуцький р-н., смт. Семенівка, вул. Воїнів Інтернаціоналістів, 12/9
15.10.2025
м. Харків, вул.Сумгаїтська, 9а. Оренда – приміщення 1-го поверху, площею 67,1 кв.м  (В)
2 013.00 грн
30.00 грн / м2
Приміщення
м. Харків, вул.Сумгаїтська, 9а. Оренда – приміщення 1-го поверху, площею 67,1 кв.м (В)
Україна, Харківська обл., м. Харків, вул. Сумгаїтська, 9а
Івано-Франківська обл., Калуський район, смт.Рожнятів, площа Єдності, 9, оренда – Приміщення 3-го поверху площею 109,6 м.кв. (В)
500.87 грн
4.57 грн / м2
Приміщення
Івано-Франківська обл., Калуський район, смт.Рожнятів, площа Єдності, 9, оренда – Приміщення 3-го поверху площею 109,6 м.кв. (В)
Україна, Івано-Франківська обл., Рожнятів, площа Єдності, 9