Івано-Франківська обл., Калуський район, смт.Рожнятів, площа Єдності, 9, оренда – Приміщення 3-го поверху площею 109,6 м.кв. (В)

500.87 грн
4.57 грн / м2
Україна, Івано-Франківська обл., Рожнятів, площа Єдності, 9
Перейти до аукціону на сайті
  • Інформація
  • Опис
  • Документи
Дата оголошення пропозиції:
23 лютого 2022
Площа:
109.60 м2
Тип об’єкта:
Приміщення
Тип аукціону:
Англійський аукціон
Статус аукціону:
Аукціон не відбувся
Тип угоди:
Оренда
Розмір мінімального кроку:
40.00 ₴
Розмір гарантійного внеску:
300.52 ₴
Початок прийому пропозицій:
23.02.2022 11:14:27
Завершення прийому пропозицій:
28.03.2022 20:00:00
Лот:
UA-PS-2022-02-23-000013-2
№ лоту (УТК):
UTK070721_10Т
Лот виставляється на торги (раз):
8
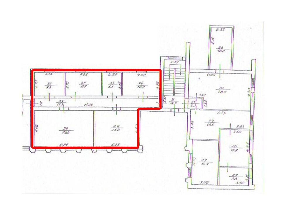
Стислий опис майна:
Пропонуються до оренди приміщення 3-го поверху. Будівля знаходиться в центральній частині населеного пункту. Високі пішохідний та транспортний потоки. Характеристики: • кількість поверхів – 3 • опалення газове • земельна ділянка – 0,1126 га (договір оренди)
Адреса місцезнаходження майна:
Україна, Івано-Франківська обл., Рожнятів, площа Єдності, 9
Схожі пропозиції
26.12.2023
Івано-Франківська обл., Івано-Франківський р-н, м. Рогатин, вул. Галицька, 73.Оренда – приміщення 1-го поверху, площею 146,0 м.кв. (В)
14 372.24 грн
98.44 грн / м2
Приміщення
Івано-Франківська обл., Івано-Франківський р-н, м. Рогатин, вул. Галицька, 73.Оренда – приміщення 1-го поверху, площею 146,0 м.кв. (В)
Україна, Івано-Франківська обл., Івано-Франківський р-н, м. Рогатин, вул. Галицька, 73
24.04.2025
Івано-Франківська обл., Коломийський р-н, с. Потічок,  вул. Незалежності, 46;   Оренда – нежитлові приміщення І-го поверху площею 27,7 кв.м. (В)
512.45 грн
18.50 грн / м2
Приміщення
Івано-Франківська обл., Коломийський р-н, с. Потічок, вул. Незалежності, 46; Оренда – нежитлові приміщення І-го поверху площею 27,7 кв.м. (В)
Україна, Івано-Франківська обл., Потічок, вул. Незалежності, 46
22.11.2023
Івано-Франківська обл., Коломийський р-н, м. Коломия, вул. Чорновола, 45.Оренда – приміщення 1-го поверху, площею 172,5 м.кв (В)
9 625.50 грн
55.80 грн / м2
Приміщення
Івано-Франківська обл., Коломийський р-н, м. Коломия, вул. Чорновола, 45.Оренда – приміщення 1-го поверху, площею 172,5 м.кв (В)
Україна, Івано-Франківська обл., Коломийський р-н, м. Коломия, вул. Чорновола, 45
13.02.2025
Івано-Франківська обл., м. Івано-Франківськ, вул. Ю.Целевича, 18а. Оренда – приміщення 3-го поверху, площею 54,8 м.кв (П)
4 620.19 грн
84.31 грн / м2
Приміщення
Івано-Франківська обл., м. Івано-Франківськ, вул. Ю.Целевича, 18а. Оренда – приміщення 3-го поверху, площею 54,8 м.кв (П)
Україна, Івано-Франківська обл., м. Івано-Франківськ, вул. Ю.Целевича, 18а