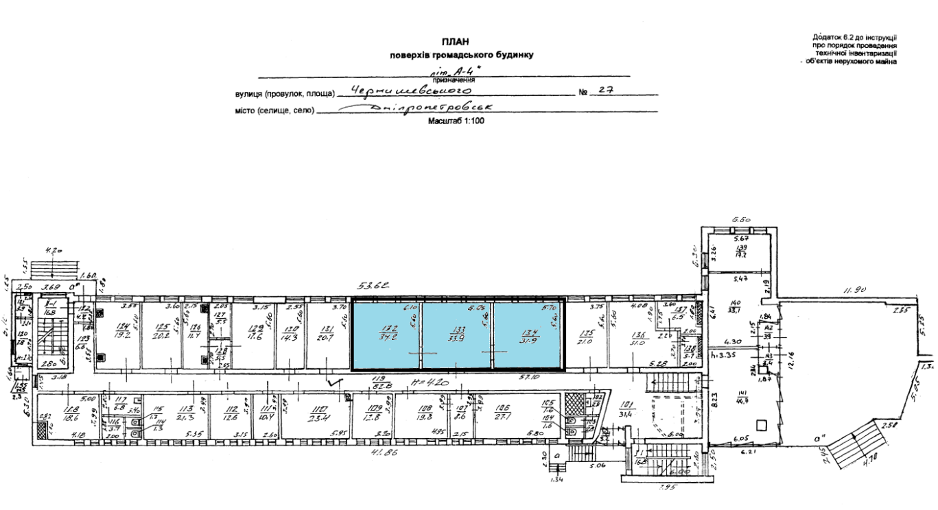
Дніпропетровська обл., м. Дніпро, вул. Чернишевського, 27. Оренда – приміщення 1-го поверху площею 100,00 кв.м. (В)

14 562.00 грн
169.72 грн / м2
Україна, Харківська обл., Харківський р-н, м. Мерефа, вул. Дніпровська, 226
Перейти до аукціону на сайті
  • Інформація
  • Опис
  • Документи
Дата оголошення пропозиції:
01 листопада 2022
Площа:
85.80 м2
Тип об’єкта:
Приміщення
Тип аукціону:
Англійський аукціон
Статус аукціону:
Аукціон не відбувся
Тип угоди:
Оренда
Розмір мінімального кроку:
500.00 ₴
Розмір гарантійного внеску:
8 737.20 ₴
Початок прийому пропозицій:
01.11.2022 15:31:31
Завершення прийому пропозицій:
01.12.2022 20:00:00
Проведення аукціону:
02.12.2022 12:50:00
Лот:
CLE001-UA-20221101-49369
№ лоту (УТК):
UTK011122_08P
Лот виставляється на торги (раз):
1
Стислий опис майна:
Пропонується до оренди приміщення 1-го поверху площею 100,00 кв.м. Розташування - будівля знаходиться в Соборному районі міста. Поруч знаходяться відділення банку, супермаркети, учбові заклади, зупинка громадського транспорту, високий автомобільний і пішохідний потоки. Стан приміщення задовільний, підходить для офісу, студії, Ідеальне місце під розвиток будь-якого бізнесу. Можливість передачі приміщень в суборенду. Характеристики: Кількість поверхів – 4 Загальна площа – 4 202,20 кв.м. Площа запропонована до оренди – 100,00 кв.м. Електропостачання, водопостачання, теплопостачання, вивіз сміття, охорона та обслуговування пожежної сигналізації; Земельна ділянка – 0, 358 га (договір оренди)
Адреса місцезнаходження майна:
Україна, Харківська обл., Харківський р-н, м. Мерефа, вул. Дніпровська, 226
Схожі пропозиції
Харківська обл., м. Харків, пр-т. Г. Сталінграду, 169. Оренда – приміщення 2-го поверху, площею 36,30 кв.м. (В)
1 415.70 грн
39.00 грн / м2
Приміщення
Харківська обл., м. Харків, пр-т. Г. Сталінграду, 169. Оренда – приміщення 2-го поверху, площею 36,30 кв.м. (В)
Україна, Харківська обл., м. Харків, пр-т. Г. Сталінграду, 169
Харківська обл., м. Харків, вул. Коцарська, 45. Оренда – приміщення 1-го, 2-го, 3-го та 4-го поверхів площею 617,2 кв.м.
24 688.00 грн
40.00 грн / м2
Приміщення
Харківська обл., м. Харків, вул. Коцарська, 45. Оренда – приміщення 1-го, 2-го, 3-го та 4-го поверхів площею 617,2 кв.м.
Україна, Харківська обл., м. Харків, вул. Коцарська, 45
21.08.2024
ДОВГОСТРОКОВА ОРЕНДА! Харків, пр-т. Г. Сталінграду, 169. Оренда – приміщення 4-го поверху площею 684,90 кв.м. (В)
37 395.54 грн
54.60 грн / м2
Приміщення
ДОВГОСТРОКОВА ОРЕНДА! Харків, пр-т. Г. Сталінграду, 169. Оренда – приміщення 4-го поверху площею 684,90 кв.м. (В)
Україна, Харківська обл., м. Харків, пр-т. Г. Сталінграду, 169
04.03.2025
Харківська обл., м. Лозова, вул. Михайла Грушевського, 7. Оренда – приміщення на 1-му поверсі площею 265,3 кв.м. (В)
3 183.60 грн
12.00 грн / м2
Приміщення
Харківська обл., м. Лозова, вул. Михайла Грушевського, 7. Оренда – приміщення на 1-му поверсі площею 265,3 кв.м. (В)
Україна, Харківська обл., м. Лозова, вул. Михайла Грушевського, 7
Переглянуті пропозиції
22.04.2025
м. Чернігів, вул. Кільцева,11. Оренда – частина комплексу виробничих будівель площею 1339,7 кв.м (В)
40 191.00 грн
30.00 грн / м2
Будівля
м. Чернігів, вул. Кільцева,11. Оренда – частина комплексу виробничих будівель площею 1339,7 кв.м (В)
Україна, Чернігівська обл., м. Чернігів, вул. Кільцева,11
21.08.2024
Сумська обл., м. Суми, вул. Іллінська, буд. 2. Оренда – офісні приміщення 3-го поверху площею 411,00 кв. м. (В)
24 138.03 грн
58.73 грн / м2
Офіс
Сумська обл., м. Суми, вул. Іллінська, буд. 2. Оренда – офісні приміщення 3-го поверху площею 411,00 кв. м. (В)
Україна, Сумська обл., м. Суми, вул. Іллінська, буд. 2
30.01.2024
ДОВГОСТРОКОВА ОРЕНДА! Дніпропетровська обл., м. Дніпро, вул. Будівельників, 34. Оренда – нежитлова будівля площею 6273,70 кв.м (В)
297 373.38 грн
47.40 грн / м2
Будівля
ДОВГОСТРОКОВА ОРЕНДА! Дніпропетровська обл., м. Дніпро, вул. Будівельників, 34. Оренда – нежитлова будівля площею 6273,70 кв.м (В)
Україна, Дніпропетровська обл., м. Дніпро, вул. Будівельників, 34
21.07.2023
Рівненська обл., Вараський р-н, с. Мульчиці, вул. Центральна, 16. Оренда – нежитлові приміщення 25,3 кв.м. (П)
1 346.72 грн
53.23 грн / м2
Приміщення
Рівненська обл., Вараський р-н, с. Мульчиці, вул. Центральна, 16. Оренда – нежитлові приміщення 25,3 кв.м. (П)
Україна, Рівненська обл., Вараський р-н, с. Мульчиці, вул. Центральна, 16