Довгострокова оренда – приміщення 1,2,3-го поверху виробничого будинку АТС-440, площею 1129,90 кв.м. м. Київ, вул. Олени Теліги, 39-г, літ. «А» (В)

90 651.88 грн
80.23 грн / м2
Україна, м.Київ, Київ, вулиця Олени Теліги, 39
Перейти до аукціону на сайті
  • Інформація
  • Опис
  • Документи
Дата оголошення пропозиції:
21 листопада 2022
Площа:
1129.90 м2
Тип об’єкта:
Приміщення
Тип аукціону:
Англійський аукціон
Статус аукціону:
Аукціон не відбувся
Тип угоди:
Оренда
Розмір мінімального кроку:
1 000.00 ₴
Розмір гарантійного внеску:
54 391.13 ₴
Початок прийому пропозицій:
21.11.2022 19:28:22
Завершення прийому пропозицій:
20.12.2022 20:00:00
Проведення аукціону:
21.12.2022 12:55:00
Лот:
CLE001-UA-20221121-30632
№ лоту (УТК):
UTK080722_02T
Лот виставляється на торги (раз):
5
Стислий опис майна:
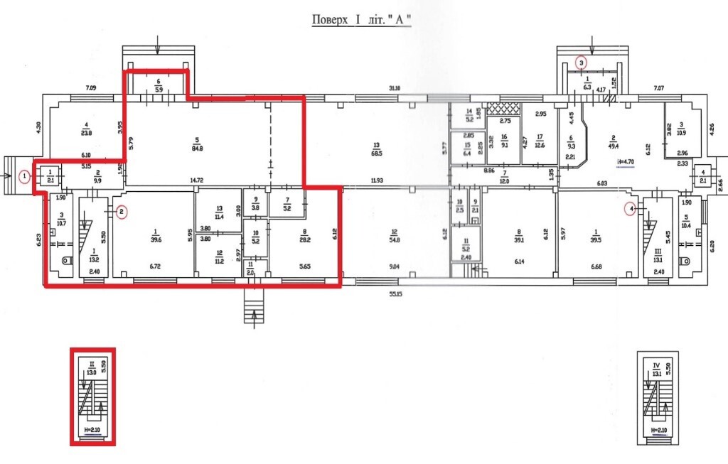
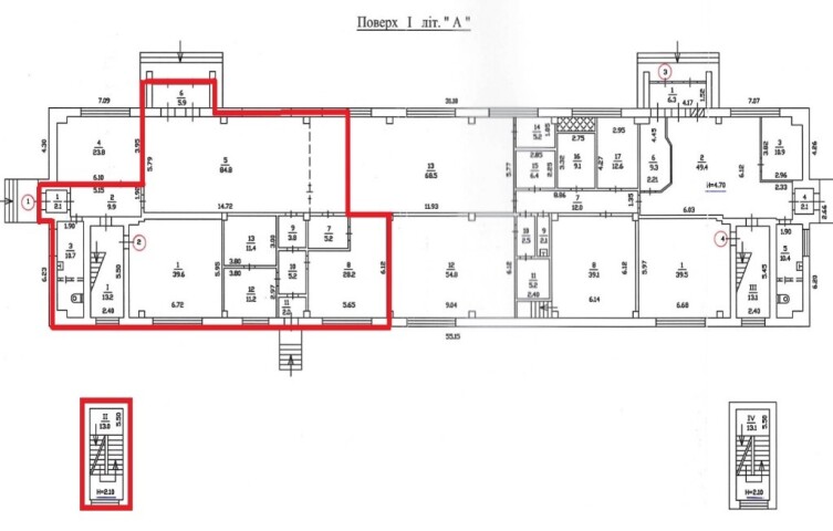
Пропонуються до оренди приміщення будинку виробничого АТС -440, літ. «А», площею 1129,90 м2. Будівля розташована в Шевченківському районі міста Києва, місцевість Сирець. Поруч розвинена інфраструктура, зупинки маршрутного транспорту, супермаркети, 5 хв. від ст. м. «Дорогожичі». Вхід з двору. Доступ 24/7. Характеристики • кількість поверхів – 3; • максимальна електропотужність – 60 кВт; • сан. вузол, каналізація, теплозабезпечення – присутнє, не задовільний стан; • площа будівлі – літ. «А» - 2000,40 м2; • опалення централізоване (міське); • земельна ділянка – 0,3000 га;* *земельна ділянка не є предметом оренди
Адреса місцезнаходження майна:
Україна, м.Київ, Київ, вулиця Олени Теліги, 39
Схожі пропозиції
м. Київ, вул. Ревуцького, 16-А. Оренда – Приміщення 1-го поверху та підвалу, площею 66,30 кв. м. (П)
3 753.91 грн
56.62 грн / м2
Приміщення
м. Київ, вул. Ревуцького, 16-А. Оренда – Приміщення 1-го поверху та підвалу, площею 66,30 кв. м. (П)
Україна, м.Київ, Київ, вул. Ревуцького, 16-А
20.02.2024
м. Київ, вул. Антоновича, 40;  Оренда–Будівля, площею 253,0 кв.м. (В)
55 670.12 грн
220.04 грн / м2
Приміщення
м. Київ, вул. Антоновича, 40; Оренда–Будівля, площею 253,0 кв.м. (В)
Україна, м.Київ, Київ, вул. Антоновича, 40
19.09.2023
м. Київ, вул. Василя Макуха (Івана Шевцова), 5 Оренда – приміщення 1-го поверху будівлі, площею 401,5 м2 (В)
83 720.78 грн
208.52 грн / м2
Приміщення
м. Київ, вул. Василя Макуха (Івана Шевцова), 5 Оренда – приміщення 1-го поверху будівлі, площею 401,5 м2 (В)
Україна, м.Київ, м. Київ, вулиця Василя Макуха (Івана Шевцова), 5
15.04.2025
ДОВГОСТРОКОВА ОРЕНДА! м. Київ, вул. Героїв Севастополя, 39/8 літ. «Е»;  Оренда – приміщення 2-го та 4-го поверхів, площею 1751,8 кв.м. (В)
105 108.00 грн
60.00 грн / м2
Приміщення
ДОВГОСТРОКОВА ОРЕНДА! м. Київ, вул. Героїв Севастополя, 39/8 літ. «Е»; Оренда – приміщення 2-го та 4-го поверхів, площею 1751,8 кв.м. (В)
Україна, м.Київ, Київ, вул. Героїв Севастополя, 39/8(Е)
Переглянуті пропозиції
07.11.2024
ДОВГОСТРОКОВА ОРЕНДА! м. Київ, вул. Салютна, 5а, літ. «Б»;  Оренда – приміщення 3-го та 4-го поверхів площею 992,8 кв.м. (В)
122 720.01 грн
123.61 грн / м2
Приміщення
ДОВГОСТРОКОВА ОРЕНДА! м. Київ, вул. Салютна, 5а, літ. «Б»; Оренда – приміщення 3-го та 4-го поверхів площею 992,8 кв.м. (В)
Україна, м.Київ, Київ, вулиця Салютна, 5а, літ.Б