ДОВГОСТРОКОВА ОРЕНДА! м. Київ, вул. Ісаакяна, 3. Оренда – Приміщення цокольного поверху площею 400,8 кв.м. (В)

60 705.17 грн
151.46 грн / м2
Україна, м.Київ, Київ, вулиця Ісаакяна, 3
Перейти до аукціону на сайті
  • Інформація
  • Опис
  • Документи
Дата оголошення пропозиції:
01 грудня 2022
Площа:
400.80 м2
Тип об’єкта:
Приміщення
Тип аукціону:
Англійський аукціон
Статус аукціону:
Аукціон не відбувся
Тип угоди:
Оренда
Розмір мінімального кроку:
650.00 ₴
Розмір гарантійного внеску:
36 423.10 ₴
Початок прийому пропозицій:
01.12.2022 13:51:51
Завершення прийому пропозицій:
29.12.2022 20:00:00
Проведення аукціону:
30.12.2022 12:55:00
Лот:
CLE001-UA-20221201-53116
№ лоту (УТК):
UTK040422_02T
Лот виставляється на торги (раз):
8
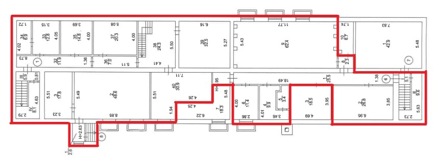
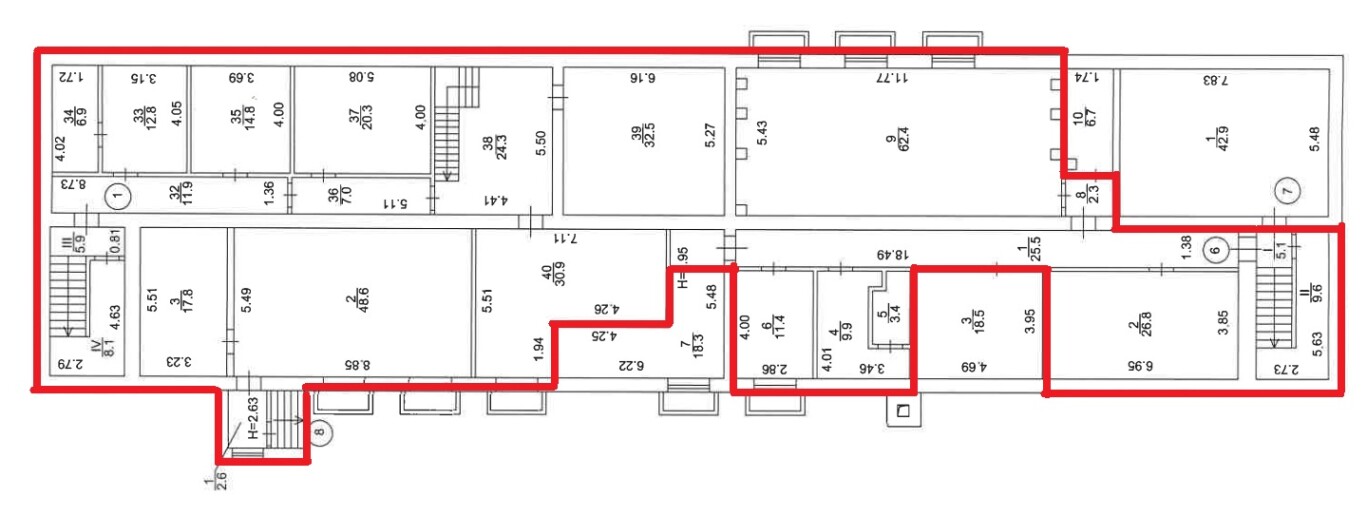
Стислий опис майна:
Пропонується до оренди частина приміщень цокольного поверху, площею 400,8 кв.м. Розташування будівлі у Шевченківському районі міста Києва, місцевість Шулявка. Поруч розвинена інфраструктура, зупинки швидкісного трамваю, маршрутного та громадського транспорту, магазини, кафе, аптеки. Вхід з двору, через прохідну. Доступ вільний 24/7. Характеристики Загальна площа будівлі – 2069,6 м2; Площа запропонована до оренди – 400,8 м2; Опалення – міське (централізоване) Кількість поверхів – 3; Загальна площа земельної ділянки – 0,2892 га; Сан. вузол, водопостачання, каналізація – відсутнє (на поверсі)
Адреса місцезнаходження майна:
Україна, м.Київ, Київ, вулиця Ісаакяна, 3
Схожі пропозиції
03.03.2023
м. Київ, вул. Архітектора Вербицького, 3. Оренда – приміщення 1-го та 3-го поверху площею 263,7 м2 (В)
25 251.91 грн
95.76 грн / м2
Приміщення
м. Київ, вул. Архітектора Вербицького, 3. Оренда – приміщення 1-го та 3-го поверху площею 263,7 м2 (В)
Україна, м.Київ, Київ, вулиця Архітектора Вербицького, 3
м. Київ, вул. Маршала Малиновського №19-А. Оренда – приміщення 1-го поверху площею 120,30 кв.м. (В)
20 681.98 грн
171.92 грн / м2
Приміщення
м. Київ, вул. Маршала Малиновського №19-А. Оренда – приміщення 1-го поверху площею 120,30 кв.м. (В)
Україна, м.Київ, Київ, вул. Маршала Малиновського №19-А
22.01.2025
ДОВГОСТРОКОВА ОРЕНДА!  м. Київ, вул. Петра Курінного, 2-Б;  Оренда – приміщення 3-го поверху площею - 614,80 кв.м. (В)
86 815.90 грн
141.21 грн / м2
Приміщення
ДОВГОСТРОКОВА ОРЕНДА! м. Київ, вул. Петра Курінного, 2-Б; Оренда – приміщення 3-го поверху площею - 614,80 кв.м. (В)
Україна, м.Київ, Київ, вулиця Петра Курінного, 2-Б
Переглянуті пропозиції
21.10.2025
Рівненська обл., Вараський р-н, с. Більська Воля, вул. Шкільна, 14. Оренда – нежитлові приміщення площею 62,8 кв.м. (В)
753.60 грн
12.00 грн / м2
Приміщення
Рівненська обл., Вараський р-н, с. Більська Воля, вул. Шкільна, 14. Оренда – нежитлові приміщення площею 62,8 кв.м. (В)
Україна, Рівненська обл., Більська Воля, вулиця Шкільна, 14