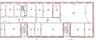
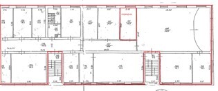
ДОВГОСТРОКОВА ОРЕНДА! Рівненська обл., м. Рівне, вул. В.Чорновола, 1. Оренда – приміщення 5-го поверху загальною площею 483,4 кв.м. (В)

57 157.22 грн
118.24 грн / м2
Україна, Рівненська обл., Рівне, вулиця Вячеслава Чорновола, 1
Перейти до аукціону на сайті
  • Інформація
  • Опис
  • Документи
Дата оголошення пропозиції:
08 грудня 2022
Площа:
483.40 м2
Тип об’єкта:
Приміщення
Тип аукціону:
Англійський аукціон
Статус аукціону:
Аукціон не відбувся
Тип угоди:
Оренда
Розмір мінімального кроку:
500.00 ₴
Розмір гарантійного внеску:
34 294.33 ₴
Початок прийому пропозицій:
08.12.2022 11:31:32
Завершення прийому пропозицій:
12.01.2023 20:00:00
Проведення аукціону:
13.01.2023 12:25:00
Лот:
CLE001-UA-20221208-96764
№ лоту (УТК):
UTK081222_00Т
Лот виставляється на торги (раз):
1
Стислий опис майна:
Пропонується до оренди приміщення 5-го поверху загальною площею 483,4 кв.м. Будівля знаходиться в центральній частині міста. Розвинена інфраструктура, високі автомобільний та пішохідний потоки. Поряд центральна площа та міський парк. Приміщення потребують реконструкції електромережі . Характеристики: • Кількість поверхів – 5; • Загальна площа – 2032,6 кв.м.; • Площа, запропонована до оренди – загальною площею 483,4 кв.м.; • Опалення – централізоване; • Земельна ділянка - площа 0,1652 га. (договір оренди)
Адреса місцезнаходження майна:
Україна, Рівненська обл., Рівне, вулиця Вячеслава Чорновола, 1
Схожі пропозиції
03.04.2024
Рівненська обл., м. Рівне, вул. Соборна, 271. Оренда – приміщення 2-го поверху площею 430,5 кв.м. (В)
30 410.52 грн
70.64 грн / м2
Приміщення
Рівненська обл., м. Рівне, вул. Соборна, 271. Оренда – приміщення 2-го поверху площею 430,5 кв.м. (В)
Україна, Рівненська обл., м. Рівне, вул. Соборна, 271
10.08.2022
Рівненська обл., м. Рівне, вул. В. Чорновола, 1. Оренда – приміщення 3-го поверху площею 108,3 кв.м. (В)
15 064.53 грн
139.10 грн / м2
Приміщення
Рівненська обл., м. Рівне, вул. В. Чорновола, 1. Оренда – приміщення 3-го поверху площею 108,3 кв.м. (В)
Україна, Рівненська обл., м. Рівне, вул. В. Чорновола, 1
23.02.2024
Рівненська обл., Рівненський р-н., с. Балашівка, вул. Незалежності, 52;   Оренда – нежитлове приміщення площею 12,9 кв.м. (В)
258.00 грн
20.00 грн / м2
Приміщення
Рівненська обл., Рівненський р-н., с. Балашівка, вул. Незалежності, 52; Оренда – нежитлове приміщення площею 12,9 кв.м. (В)
Україна, Рівненська обл., Балашівка, вул. Незалежності, 52
31.08.2022
Рівненська обл., м. Вараш, м-н. Незалежності, 4. Оренда – приміщення 1-го та 2-го поверху площею 159,4 кв.м. (В)
11 116.56 грн
69.74 грн / м2
Приміщення
Рівненська обл., м. Вараш, м-н. Незалежності, 4. Оренда – приміщення 1-го та 2-го поверху площею 159,4 кв.м. (В)
Україна, Рівненська обл., м. Вараш, м-н. Незалежності, 4