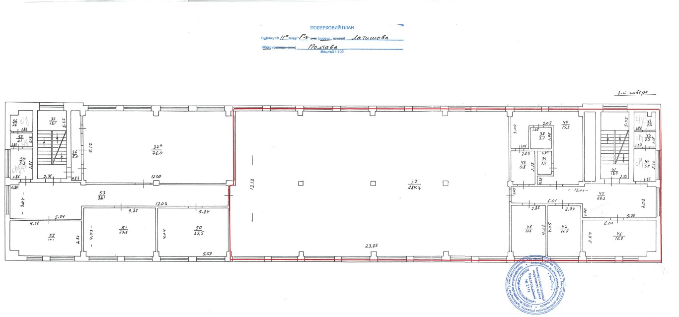
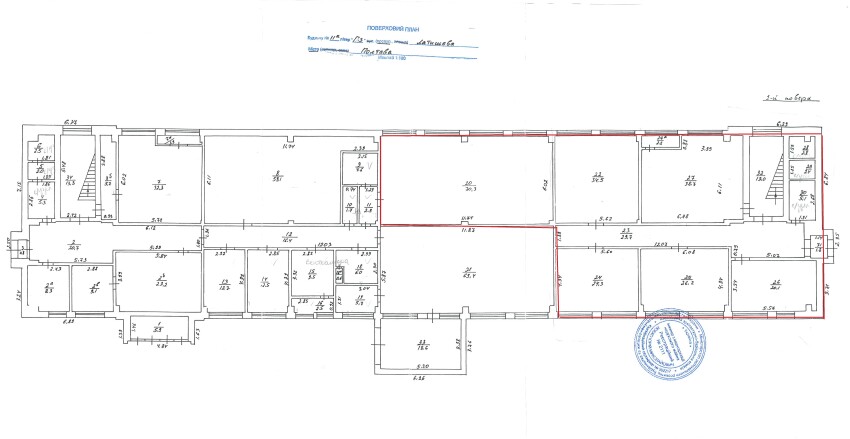
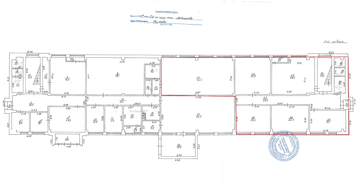
Полтавська обл., м. Полтава, провулок Латишева, буд. 11-А. Оренда – Частина будівлі площею 1287,60 кв.м. (В)

59 487.12 грн
46.20 грн / м2
Україна, Полтавська обл., м. Полтава, провулок Латишева, буд. 11-А
Перейти до аукціону на сайті
  • Інформація
  • Опис
  • Документи
Дата оголошення пропозиції:
20 грудня 2022
Площа:
1287.60 м2
Тип об’єкта:
Будівля
Тип аукціону:
Англійський аукціон
Статус аукціону:
Аукціон не відбувся
Тип угоди:
Оренда
Розмір мінімального кроку:
800.00 ₴
Розмір гарантійного внеску:
35 692.27 ₴
Початок прийому пропозицій:
20.12.2022 13:31:43
Завершення прийому пропозицій:
24.01.2023 20:00:00
Проведення аукціону:
25.01.2023 11:15:00
Лот:
CLE001-UA-20221220-58924
№ лоту (УТК):
UTK020821_21P
Лот виставляється на торги (раз):
10
Стислий опис майна:
Пропонується до оренди частина будівлі площею 1287,60 кв.м. Приміщення знаходяться на 1,2 та 3 поверсі 3-поверхової будівлі, яка розташована в районі наближеному до центру м. Полтава. Вхід з вулиці. Доступ 24/7 Характеристики: Кількість поверхів – 3; Загальна площа – 1911,90 кв.м.; Площа запропонована до оренди 1287,60 кв.м.; Опалення – наявне; Дозволена потужність – до 5 кВт; Земельна ділянка – 0,1739 га (договір оренди).
Адреса місцезнаходження майна:
Україна, Полтавська обл., м. Полтава, провулок Латишева, буд. 11-А
Схожі пропозиції
23.06.2023
Полтавська обл., Лубенський р-н, с. Засулля, вул. Молодіжна, буд.20. Оренда – двоповерхова будівля площею 368,90 кв.м. (В)
2 479.01 грн
6.72 грн / м2
Будівля
Полтавська обл., Лубенський р-н, с. Засулля, вул. Молодіжна, буд.20. Оренда – двоповерхова будівля площею 368,90 кв.м. (В)
Україна, Полтавська обл., Лубенський р-н, с. Засулля, вул. Молодіжна, буд.20
Полтавська обл., м. Полтава, вул. Гетьмана Сагайдачного, буд. 8 А. Оренда – частина будівлі
1 108.08 грн
21.60 грн / м2
Будівля
Полтавська обл., м. Полтава, вул. Гетьмана Сагайдачного, буд. 8 А. Оренда – частина будівлі
Україна, Полтавська обл., м. Полтава, вул. Гетьмана Сагайдачного, буд. 8 А
26.11.2025
Полтавська обл., Полтавський р-н., смт. Диканька, вул. Полтавська, 29. Оренда – комплекс будівель площею 192,70 кв.м. (В)
8 702.33 грн
45.16 грн / м2
Будівля
Полтавська обл., Полтавський р-н., смт. Диканька, вул. Полтавська, 29. Оренда – комплекс будівель площею 192,70 кв.м. (В)
Україна, Полтавська обл., Полтавський р-н., смт. Диканька, вул. Полтавська, 29
01.03.2024
Полтавська обл., Мирогородський р-н, смт. В.Багачка, вулиця Каштанова, 13;  Оренда – будівля площею 176,50 кв.м. (В)
2 499.42 грн
14.16 грн / м2
Будівля
Полтавська обл., Мирогородський р-н, смт. В.Багачка, вулиця Каштанова, 13; Оренда – будівля площею 176,50 кв.м. (В)
Україна, Полтавська обл., Велика Багачка, вулиця Каштанова, 13
Переглянуті пропозиції
м. Київ, вул. Володимирська, 10 Оренда – Приміщення 1-го поверху, площею 201,1 м2 (В)
60 531.10 грн
301.00 грн / м2
Приміщення
м. Київ, вул. Володимирська, 10 Оренда – Приміщення 1-го поверху, площею 201,1 м2 (В)
Україна, м.Київ, Київ, вул. Володимирська, 10
Харківська обл., м. Харків, вул. Ак. Вальтера, 3. Оренда – приміщення цокольного поверху площею 105,7 кв.м.
3 488.10 грн
33.00 грн / м2
Приміщення
Харківська обл., м. Харків, вул. Ак. Вальтера, 3. Оренда – приміщення цокольного поверху площею 105,7 кв.м.
Україна, Харківська обл., м. Харків, вул. Ак. Вальтера, 3
ДОВГОСТРОКОВА ОРЕНДА! м. Київ, вул. Ісаакяна, 3 , Оренда – приміщення будівлі літ. «А», площею 1570,90 кв.м. (В)
309 734.35 грн
197.17 грн / м2
Приміщення
ДОВГОСТРОКОВА ОРЕНДА! м. Київ, вул. Ісаакяна, 3 , Оренда – приміщення будівлі літ. «А», площею 1570,90 кв.м. (В)
Україна, м.Київ, Київ, вул. Ісаакяна, 3
10.10.2023
Сумська обл., Сумський р-н, смт. Краснопілля, вул. Сумська, 5. Оренда – офісне приміщення 1-го поверху площею 20,10 кв.м. (В)
530.64 грн
26.40 грн / м2
Офіс
Сумська обл., Сумський р-н, смт. Краснопілля, вул. Сумська, 5. Оренда – офісне приміщення 1-го поверху площею 20,10 кв.м. (В)
Україна, Сумська обл., Сумський р-н, смт. Краснопілля, вул. Сумська, 5