ДОВГОСТРОКОВА ОРЕНДА! м. Київ, вул. Ісаакяна, 3. Оренда – Приміщення цокольного поверху площею 400,8 кв.м. (В)

60 705.17 грн
151.46 грн / м2
Україна, м.Київ, Київ, вулиця Ісаакяна, 3
Перейти до аукціону на сайті
  • Інформація
  • Опис
  • Документи
Дата оголошення пропозиції:
16 січня 2023
Площа:
400.80 м2
Тип об’єкта:
Приміщення
Тип аукціону:
Англійський аукціон
Статус аукціону:
Аукціон не відбувся
Тип угоди:
Оренда
Розмір мінімального кроку:
650.00 ₴
Розмір гарантійного внеску:
36 423.10 ₴
Початок прийому пропозицій:
16.01.2023 17:03:55
Завершення прийому пропозицій:
15.02.2023 20:00:00
Проведення аукціону:
16.02.2023 11:15:00
Лот:
CLE001-UA-20230116-03919
№ лоту (УТК):
UTK040422_02T
Лот виставляється на торги (раз):
9
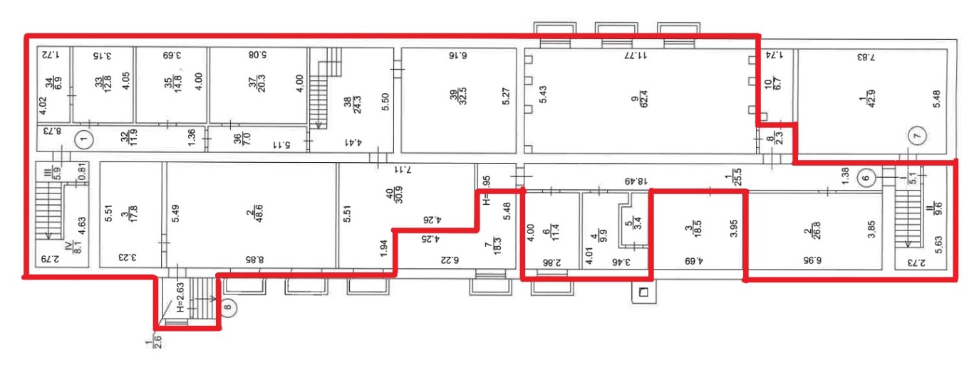
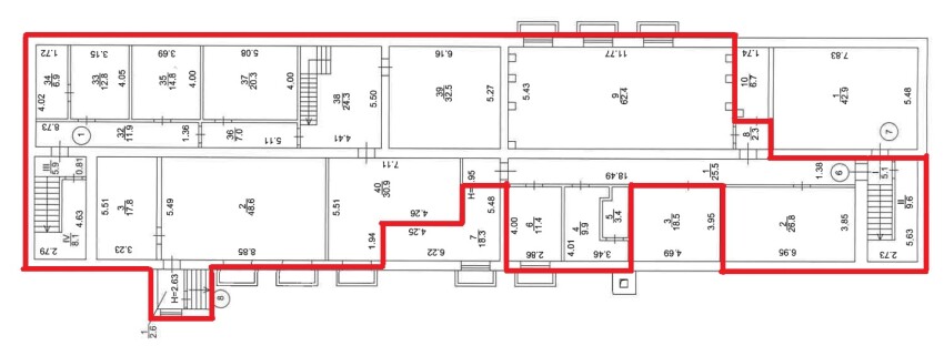
Стислий опис майна:
Пропонується до оренди частина приміщень цокольного поверху, площею 400,8 кв.м. Розташування будівлі у Шевченківському районі міста Києва, місцевість Шулявка. Поруч розвинена інфраструктура, зупинки швидкісного трамваю, маршрутного та громадського транспорту, магазини, кафе, аптеки. Вхід з двору, через прохідну. Доступ вільний 24/7. Характеристики Загальна площа будівлі – 2069,6 м2; Площа запропонована до оренди – 400,8 м2; Опалення – міське (централізоване) Кількість поверхів – 3; Загальна площа земельної ділянки – 0,2892 га; Сан. вузол, водопостачання, каналізація – відсутнє (на поверсі)
Адреса місцезнаходження майна:
Україна, м.Київ, Київ, вулиця Ісаакяна, 3
Схожі пропозиції
м. Київ, вул. Будівельників, 8-Б, оренда – приміщення підвалу, площею 452,60 кв.м. (В)
20 910.12 грн
46.20 грн / м2
Приміщення
м. Київ, вул. Будівельників, 8-Б, оренда – приміщення підвалу, площею 452,60 кв.м. (В)
Україна, м.Київ, Київ, вул. Будівельників, 8-Б
21.10.2025
м. Київ, вул. Макіївська, 3, літ. «А» (Оболонський р-н). Оренда – група приміщень у підвалі, площею 135,40 кв.м (В)
10 710.14 грн
79.10 грн / м2
Приміщення
м. Київ, вул. Макіївська, 3, літ. «А» (Оболонський р-н). Оренда – група приміщень у підвалі, площею 135,40 кв.м (В)
Україна, м.Київ, Київ, вул. Макіївська, 3, літ. «А» (Оболонський р-н)
30.04.2025
м. Київ, пр-т. Академіка Глушкова, 38 (Голосіївський р-н). Оренда – приміщення 1-го поверху, загальною площею – 143,60 кв. м.  (В)
22 471.97 грн
156.49 грн / м2
Приміщення
м. Київ, пр-т. Академіка Глушкова, 38 (Голосіївський р-н). Оренда – приміщення 1-го поверху, загальною площею – 143,60 кв. м. (В)
Україна, м.Київ, Київ, 03187, м. Київ, пр-т. Академіка Глушкова, 38 (Голосіївський р-н)
31.10.2023
ДОВГОСТРОКОВА ОРЕНДА!   м. Київ, вул. Горького (Антоновича), 40;  Оренда – приміщення 7-го поверху, площею 756,9 кв.м (В)
403 896.98 грн
533.62 грн / м2
Приміщення
ДОВГОСТРОКОВА ОРЕНДА! м. Київ, вул. Горького (Антоновича), 40; Оренда – приміщення 7-го поверху, площею 756,9 кв.м (В)
Україна, м.Київ, Київ, вулиця Антоновича, 40
Переглянуті пропозиції
30.05.2023
Дніпропетровська обл., м. Дніпро, вул. Січових Стрільців, 10. Оренда – приміщення цокольного поверху площею 47,90 кв.м. (В)
2 212.98 грн
46.20 грн / м2
Приміщення
Дніпропетровська обл., м. Дніпро, вул. Січових Стрільців, 10. Оренда – приміщення цокольного поверху площею 47,90 кв.м. (В)
Україна, Дніпропетровська обл., м. Дніпро, вул. Січових Стрільців, 10