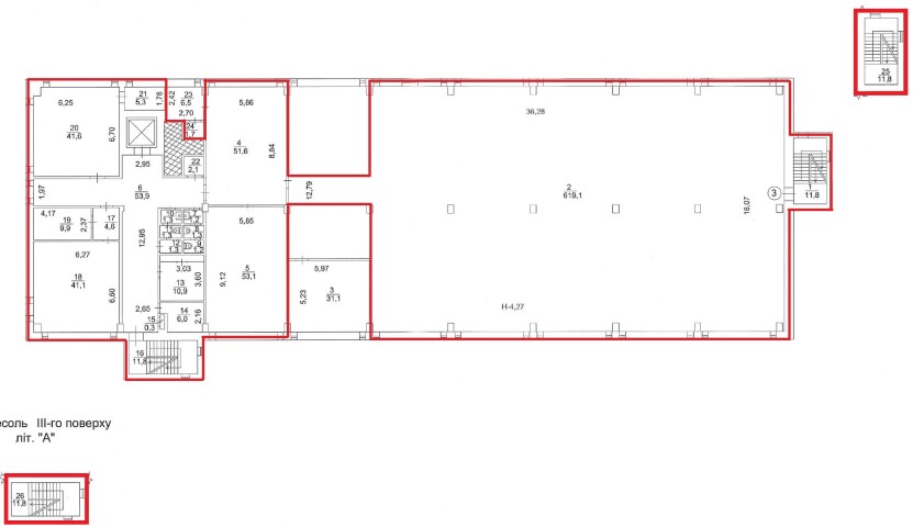
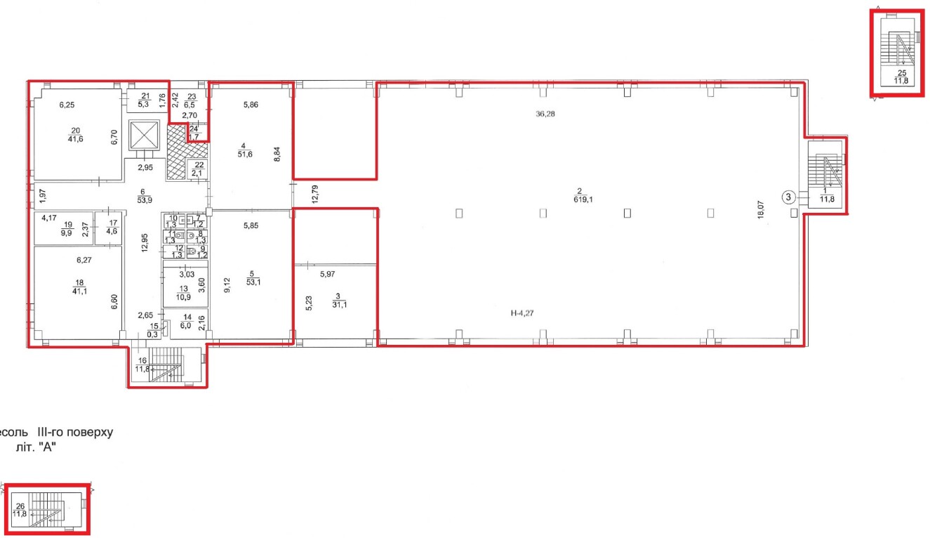
м. Київ, вул. Дегтярівська, 28-А. Оренда – приміщення 3-го поверху площею 853,34 кв.м. (В)

39 424.31 грн
46.20 грн / м2
Україна, м.Київ, Київ, вулиця Дегтярівська, 28А
Перейти до аукціону на сайті
  • Інформація
  • Опис
  • Документи
Дата оголошення пропозиції:
31 січня 2023
Площа:
853.34 м2
Тип об’єкта:
Приміщення
Тип аукціону:
Англійський аукціон
Статус аукціону:
Аукціон відмінено
Тип угоди:
Оренда
Розмір мінімального кроку:
400.00 ₴
Розмір гарантійного внеску:
23 654.59 ₴
Початок прийому пропозицій:
31.01.2023 11:31:27
Завершення прийому пропозицій:
02.03.2023 20:00:00
Проведення аукціону:
03.03.2023 12:05:00
Лот:
CLE001-UA-20230131-02826
№ лоту (УТК):
UTK270422_03T
Лот виставляється на торги (раз):
9
Стислий опис майна:
Пропонуються до оренди приміщення 3-го поверху, площею 853,34 м2 . Будівля розташована в Шевченківському районі міста Києва, місцевості Лук'янівка, Сирець, Шулявка. Поруч розвинена інфраструктура, супермаркети, бізнес-центри, зупинки маршрутного транспорту. Найближчі ст. метро «Лук’янівська», «Берестейська». Вхід з двору. Доступ 24/7. Характеристики • загальна площа будівлі – 4710,20 м2 ; • сан. вузол, каналізація, водопостачання – присутне; • кількість поверхів – 4; • опалення централізоване (міське); • площа земельної ділянки – 0,3913 га*; *земельна ділянка не є предметом оренди
Адреса місцезнаходження майна:
Україна, м.Київ, Київ, вулиця Дегтярівська, 28А
Схожі пропозиції
09.09.2025
м. Київ, вул. Архітектора Вербицького, 3 (Дарницький р-н). Оренда – Приміщення 1-го поверху, площею 215,20 м.кв. (В)
20 607.55 грн
95.76 грн / м2
Приміщення
м. Київ, вул. Архітектора Вербицького, 3 (Дарницький р-н). Оренда – Приміщення 1-го поверху, площею 215,20 м.кв. (В)
Україна, м.Київ, Київ, 02091, м. Київ, вул. Архітектора Вербицького , 3
26.08.2025
м. Київ, вул. Миколи Голего, 8. Оренда – приміщення 1-го поверху площею 30,90 кв.м (В)
1 854.00 грн
60.00 грн / м2
Приміщення
м. Київ, вул. Миколи Голего, 8. Оренда – приміщення 1-го поверху площею 30,90 кв.м (В)
Україна, м.Київ, Київ, вулиця Миколи Голего, 8
20.02.2024
м. Київ, вул. Героїв Севастополя, 39/8, літ.«В»;   Оренда – приміщення 1-го поверху блоку зовнішніх споруд, площею 80,60 кв.м. (В)
15 771.00 грн
195.67 грн / м2
Приміщення
м. Київ, вул. Героїв Севастополя, 39/8, літ.«В»; Оренда – приміщення 1-го поверху блоку зовнішніх споруд, площею 80,60 кв.м. (В)
Україна, м.Київ, Київ, вул. Героїв Севастополя, 39/8(В)
м. Київ, вул. Ревуцького, 16-А. Оренда – Приміщення 1-го поверху та підвалу, площею 66,30 кв. м. (П)
10 658.39 грн
160.76 грн / м2
Приміщення
м. Київ, вул. Ревуцького, 16-А. Оренда – Приміщення 1-го поверху та підвалу, площею 66,30 кв. м. (П)
Україна, м.Київ, Київ, вул. Ревуцького, 16-А
Переглянуті пропозиції
Чернігівська обл.,Бобровицький район, с. Нова Басань, вул. Шевченка, 43, Оренда – приміщення гаражу площею 44,00 кв.м. (В)
396.00 грн
9.00 грн / м2
Приміщення
Чернігівська обл.,Бобровицький район, с. Нова Басань, вул. Шевченка, 43, Оренда – приміщення гаражу площею 44,00 кв.м. (В)
Україна, Чернігівська обл., Нова Басань, вул. Шевченка, 43