Сумська обл., м. Буринь, вул. Першотравнева, 5. Оренда – офісні приміщення 2-го поверху площею 22,10 кв.м. (В)

502.33 грн
22.73 грн / м2
Україна, Сумська обл., м. Буринь, вул. Першотравнева, 5
Перейти до аукціону на сайті
  • Інформація
  • Опис
  • Документи
Дата оголошення пропозиції:
07 лютого 2023
Площа:
22.10 м2
Тип об’єкта:
Офіс
Тип аукціону:
Англійський аукціон
Статус аукціону:
Аукціон не відбувся
Тип угоди:
Оренда
Розмір мінімального кроку:
20.00 ₴
Розмір гарантійного внеску:
301.40 ₴
Початок прийому пропозицій:
07.02.2023 14:38:59
Завершення прийому пропозицій:
14.03.2023 20:00:00
Проведення аукціону:
15.03.2023 12:50:00
Лот:
CLE001-UA-20230207-01094
№ лоту (УТК):
UTK190922_07P
Лот виставляється на торги (раз):
6
Стислий опис майна:
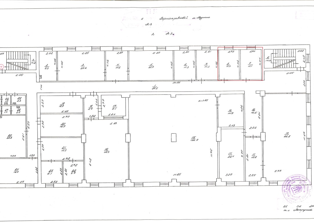
Пропонується до оренди офісні приміщення 2-го поверху площею 22,10 кв.м. триповерхової будівлі. Знаходиться в центральній частині міста. Добра візуалізація з дороги. Вхід в приміщення з тильної сторони будівлі. Можливість передачі приміщення в суборенду. Доступ 24/7. Характеристики: Кількість поверхів – 3; Загальна площа – 2212,0; Площа запропонована до оренди – 22,10 кв.м.; Водопостачання – відсутнє (наявний санвузол загального користування); Опалення та електропостачання – наявне; Земельна ділянка – 0,7542 га (договір оренди).
Адреса місцезнаходження майна:
Україна, Сумська обл., м. Буринь, вул. Першотравнева, 5
Схожі пропозиції
11.12.2024
Сумська обл., м. Охтирка, вул. Чкалова, буд. 2. Оренда – офісна будівля площею 183,90 кв.м. (В)
1 557.63 грн
8.47 грн / м2
Офіс
Сумська обл., м. Охтирка, вул. Чкалова, буд. 2. Оренда – офісна будівля площею 183,90 кв.м. (В)
Україна, Сумська обл., м. Охтирка, вул. Чкалова, буд. 2
27.09.2024
Сумська обл., м. Суми, вул. Іллінська, буд. 2. Оренда – офісні приміщення 7-го поверху площею 89,80 кв.м. (В)
5 273.95 грн
58.73 грн / м2
Офіс
Сумська обл., м. Суми, вул. Іллінська, буд. 2. Оренда – офісні приміщення 7-го поверху площею 89,80 кв.м. (В)
Україна, Сумська обл., м. Суми, вул. Іллінська, буд. 2
11.12.2024
Сумська обл., м. Буринь, вул. Першотравнева, 5;  Оренда – офісні приміщення 2-го поверху площею 129,9 кв.м. (В)
1 279.52 грн
9.85 грн / м2
Офіс
Сумська обл., м. Буринь, вул. Першотравнева, 5; Оренда – офісні приміщення 2-го поверху площею 129,9 кв.м. (В)
Україна, Сумська обл., Буринь, вул. Першотравнева, 5
19.12.2023
Сумська обл., Шосткинський район, м. Середино-Буда, вул. Європейська, буд. 10;  Оренда – офісні приміщення 1-го поверху площею 23,70 кв.м. (В)
Переглянуті пропозиції
20.04.2023
Кіровоградська обл., смт Компаніївка, вул. Вишнева, 25. Оренда – приміщення 1-го поверху площею 37,40 кв.м.(В)
718.08 грн
19.20 грн / м2
Приміщення
Кіровоградська обл., смт Компаніївка, вул. Вишнева, 25. Оренда – приміщення 1-го поверху площею 37,40 кв.м.(В)
Україна, Кіровоградська обл., смт Компаніївка, вул. Вишнева, 25
13.02.2024
Полтавська обл., Кременчуцький р-н, м. Горішні Плавні, вулиця Миру, 18. Оренда – приміщення 3-го поверху площею 10,10 кв.м. (В)
576.31 грн
57.06 грн / м2
Приміщення
Полтавська обл., Кременчуцький р-н, м. Горішні Плавні, вулиця Миру, 18. Оренда – приміщення 3-го поверху площею 10,10 кв.м. (В)
Україна, Полтавська обл., Кременчуцький р-н, м. Горішні Плавні, вулиця Миру, 18
14.05.2024
Рівненська обл., м. Рівне, вул. Боярка, 54 а, б. Оренда – комплекс будівель площею 620,1 м. кв. (В)
29 392.74 грн
47.40 грн / м2
Будівля
Рівненська обл., м. Рівне, вул. Боярка, 54 а, б. Оренда – комплекс будівель площею 620,1 м. кв. (В)
Україна, Рівненська обл., м. Рівне, вул. Боярка, 54 а, б
04.06.2025
02091, м. Київ, вул. Архітектора Вербицького, 3 (Дарницький р-н). Оренда – Приміщення 3-го поверху, площею 198,10 кв.м. (В)
18 970.06 грн
95.76 грн / м2
Приміщення
02091, м. Київ, вул. Архітектора Вербицького, 3 (Дарницький р-н). Оренда – Приміщення 3-го поверху, площею 198,10 кв.м. (В)
Україна, м.Київ, Київ, 02091, м. Київ, вул. Архітектора Вербицького , 3