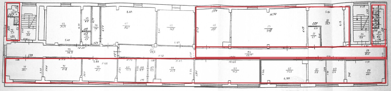
Рівненська обл., м. Рівне, вул. Орлова, 37. Оренда – приміщення 5-го поверху загальною площею 703 кв.м. (В)

32 478.60 грн
46.20 грн / м2
Україна, Рівненська обл., м. Рівне, вул. Орлова, 37
Перейти до аукціону на сайті
  • Інформація
  • Опис
  • Документи
Дата оголошення пропозиції:
01 березня 2023
Площа:
703.00 м2
Тип об’єкта:
Приміщення
Тип аукціону:
Англійський аукціон
Статус аукціону:
Аукціон не відбувся
Тип угоди:
Оренда
Розмір мінімального кроку:
1 000.00 ₴
Розмір гарантійного внеску:
19 487.16 ₴
Початок прийому пропозицій:
01.03.2023 13:58:04
Завершення прийому пропозицій:
03.04.2023 20:00:00
Проведення аукціону:
04.04.2023 12:55:00
Лот:
CLE001-UA-20230301-86958
№ лоту (УТК):
UTK080222_10P
Лот виставляється на торги (раз):
10
Стислий опис майна:
Пропонуються до оренди приміщення 5-го поверху загальною площею 703 м. кв. Будівля знаходиться в центральній частині міста. Розвинена інфраструктура, досить високі автомобільний та пішохідний потоки. Поряд стоянка для автомобілів . Приміщення потребують ремонту та реконструкції електромережі. Характеристики: Кількість поверхів – 6 ; Загальна площа – 4535,1 м. кв ; Площа, запропонована до оренди – 703 м.кв. ; Опалення – централізоване; • Земельна ділянка - площа 0,3639 га. (договір оренди)
Адреса місцезнаходження майна:
Україна, Рівненська обл., м. Рівне, вул. Орлова, 37
Схожі пропозиції
07.10.2025
Рівненська обл.,Дубенський р-н. селище Млинів , вул. Рівненська,2. Оренда – приміщення гаражу площею 65,40 кв. м (В).
1 308.00 грн
20.00 грн / м2
Приміщення
Рівненська обл.,Дубенський р-н. селище Млинів , вул. Рівненська,2. Оренда – приміщення гаражу площею 65,40 кв. м (В).
Україна, Рівненська обл., Млинів, 35100, Рівненська обл., селище Млинів вул. Рівненська,2
26.04.2023
Рівненська обл., Рівненський р-н, с.Тучин, вул.Поштова, 4. Оренда – виробничі приміщення загальною площею 243,1 кв.м. (В)
3 882.31 грн
15.97 грн / м2
Приміщення
Рівненська обл., Рівненський р-н, с.Тучин, вул.Поштова, 4. Оренда – виробничі приміщення загальною площею 243,1 кв.м. (В)
Україна, Рівненська обл., Рівненський р-н, с.Тучин, вул.Поштова, 4
26.12.2024
Рівненська обл., Дубнівський р-н., м. Дубно, вул. Данила Галицького, 15. Оренда – приміщення 4-го поверху площею 501,1 кв.м. (В)
3 006.60 грн
6.00 грн / м2
Приміщення
Рівненська обл., Дубнівський р-н., м. Дубно, вул. Данила Галицького, 15. Оренда – приміщення 4-го поверху площею 501,1 кв.м. (В)
Україна, Рівненська обл., Дубнівський р-н., м. Дубно, вул. Данила Галицького, 15
03.04.2024
Рівненська обл., Рівненський р-н., с. Вельбівно, вул. Гагаріна, 15. Оренда – частина приміщення одноповерхової будівлі, площею 16,9 кв.м. (В)
253.50 грн
15.00 грн / м2
Приміщення
Рівненська обл., Рівненський р-н., с. Вельбівно, вул. Гагаріна, 15. Оренда – частина приміщення одноповерхової будівлі, площею 16,9 кв.м. (В)
Україна, Рівненська обл., Рівненський р-н., с. Вельбівно, вул. Гагаріна, 15
Переглянуті пропозиції
м. Київ, вул. Антоновича, 40, оренда – приміщення підвалу площею 77,00 кв.м. (В)
6 578.11 грн
85.43 грн / м2
Приміщення
м. Київ, вул. Антоновича, 40, оренда – приміщення підвалу площею 77,00 кв.м. (В)
Україна, м.Київ, Київ, вул. Антоновича, 40
Харківська обл., Харківський р-н, м. Мерефа, вул. Дніпровська, 226. Оренда – приміщення 2-го поверху будівлі «Дизельна», площею 85,80 кв.м. (В)
2 975.54 грн
34.68 грн / м2
Приміщення
Харківська обл., Харківський р-н, м. Мерефа, вул. Дніпровська, 226. Оренда – приміщення 2-го поверху будівлі «Дизельна», площею 85,80 кв.м. (В)
Україна, Харківська обл., Харківський р-н, м. Мерефа, вул. Дніпровська, 226
14.03.2025
м. Харків, вул. Амосова,13 в. Оренда – приміщення цокольного поверху площею 31,60 кв.м (В)
2 051.47 грн
64.92 грн / м2
Приміщення
м. Харків, вул. Амосова,13 в. Оренда – приміщення цокольного поверху площею 31,60 кв.м (В)
Україна, Харківська обл., м. Харків, вул. Амосова,13 в
Харківська обл., м. Харків, пр-т Г. Сталінграду, 169. Оренда – приміщення другого поверху, площею 36,3 кв.м. (В)
1 132.56 грн
31.20 грн / м2
Приміщення
Харківська обл., м. Харків, пр-т Г. Сталінграду, 169. Оренда – приміщення другого поверху, площею 36,3 кв.м. (В)
Україна, Харківська обл., м. Харків, пр-т Г. Сталінграду, 169