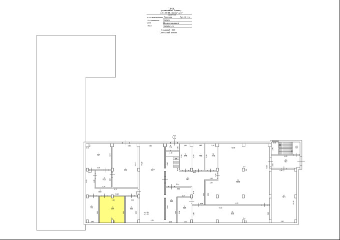
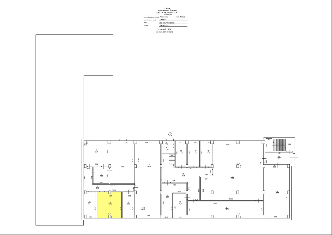
м. Харків, вул. Амосова,13 в. Оренда – приміщення цокольного поверху площею 31,60 кв.м (В)

2 051.47 грн
64.92 грн / м2
Україна, Харківська обл., м. Харків, вул. Амосова,13 в
Перейти до аукціону на сайті
  • Інформація
  • Опис
  • Документи
Дата оголошення пропозиції:
14 лютого 2025
Площа:
31.60 м2
Тип об’єкта:
Приміщення
Тип аукціону:
Англійський аукціон
Статус аукціону:
Аукціон не відбувся
Тип угоди:
Оренда
Розмір мінімального кроку:
100.00 ₴
Розмір гарантійного внеску:
1 230.88 ₴
Початок прийому пропозицій:
14.02.2025 11:38:43
Завершення прийому пропозицій:
13.03.2025 20:00:00
Проведення аукціону:
14.03.2025 12:35:00
Лот:
CLE001-UA-20250214-23604
№ лоту (УТК):
UTK140225_01P
Лот виставляється на торги (раз):
1
Стислий опис майна:
Пропонується до оренди приміщення цокольного поверху площею 31,60 кв.м. Будівля в спальному районі міста Харкова. 10 хв до зупинки транспорту. Характеристики: Кількість поверхів – 5; Загальна площа – 4838,00 кв.м_ Площа запропонована до оренди -31,6кв.м Дозволена потужність – 1,5 кВт Теплопостачання-централізоване Земельна ділянка – 0,4825 га
Адреса місцезнаходження майна:
Україна, Харківська обл., м. Харків, вул. Амосова,13 в
Схожі пропозиції
05.11.2024
Харківська обл., м. Лозова, вул. Михайла Грушевського, 7. Оренда – приміщення на 1-му поверсі площею 265,3 кв.м. (В)
3 183.60 грн
12.00 грн / м2
Приміщення
Харківська обл., м. Лозова, вул. Михайла Грушевського, 7. Оренда – приміщення на 1-му поверсі площею 265,3 кв.м. (В)
Україна, Харківська обл., м. Лозова, вул. Михайла Грушевського, 7
Харківська обл., м. Харків, вул. Старошишківська, 5а. Оренда – приміщення 1-го поверху, площею 103,6 кв.м. (В)
7 015.79 грн
67.72 грн / м2
Приміщення
Харківська обл., м. Харків, вул. Старошишківська, 5а. Оренда – приміщення 1-го поверху, площею 103,6 кв.м. (В)
Україна, Харківська обл., м. Харків, вул. Старошишківська, 5а
23.07.2025
м. Харків, вул.Конторська,14. Оренда – приміщення цокольного поверху площею 25,0 кв.м (В)
1 628.50 грн
65.14 грн / м2
Приміщення
м. Харків, вул.Конторська,14. Оренда – приміщення цокольного поверху площею 25,0 кв.м (В)
Україна, Харківська обл., Харків, вулиця Конторська, 14
Харківська обл., м. Харків, вул. Конторська, 14. Оренда – приміщення 1-го поверху будівлі АТС площею 44,2 кв.м. (П)
2 217.07 грн
50.16 грн / м2
Приміщення
Харківська обл., м. Харків, вул. Конторська, 14. Оренда – приміщення 1-го поверху будівлі АТС площею 44,2 кв.м. (П)
Україна, Харківська обл., м. Харків, вул. Конторська, 14
Переглянуті пропозиції
Харківська обл., м. Харків, пр-т Г. Сталінграду, 169. Оренда – приміщення другого поверху, площею 36,3 кв.м. (В)
1 132.56 грн
31.20 грн / м2
Приміщення
Харківська обл., м. Харків, пр-т Г. Сталінграду, 169. Оренда – приміщення другого поверху, площею 36,3 кв.м. (В)
Україна, Харківська обл., м. Харків, пр-т Г. Сталінграду, 169
м. Івано-Франківськ, вул. Ребета, 2. Нежитлові приміщення 3-го поверху площею 57,1 кв.м.
1 094.61 грн
19.17 грн / м2
Приміщення
м. Івано-Франківськ, вул. Ребета, 2. Нежитлові приміщення 3-го поверху площею 57,1 кв.м.
Україна, Івано-Франківська обл., м. Івано-Франківськ, вул. Ребета, 2
15.03.2023
Сумська обл., м. Буринь, вул. Першотравнева, 5. Оренда – офісні приміщення 2-го поверху площею 22,10 кв.м. (В)
502.33 грн
22.73 грн / м2
Офіс
Сумська обл., м. Буринь, вул. Першотравнева, 5. Оренда – офісні приміщення 2-го поверху площею 22,10 кв.м. (В)
Україна, Сумська обл., м. Буринь, вул. Першотравнева, 5
20.04.2023
Кіровоградська обл., смт Компаніївка, вул. Вишнева, 25. Оренда – приміщення 1-го поверху площею 37,40 кв.м.(В)
718.08 грн
19.20 грн / м2
Приміщення
Кіровоградська обл., смт Компаніївка, вул. Вишнева, 25. Оренда – приміщення 1-го поверху площею 37,40 кв.м.(В)
Україна, Кіровоградська обл., смт Компаніївка, вул. Вишнева, 25