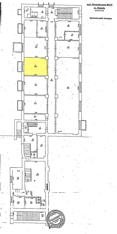
м. Харків, вул.Конторська,14. Оренда – приміщення цокольного поверху площею 25,0 кв.м (В)

1 628.50 грн
65.14 грн / м2
Україна, Харківська обл., Харків, вулиця Конторська, 14
Перейти до аукціону на сайті
  • Інформація
  • Опис
  • Документи
Дата оголошення пропозиції:
19 червня 2025
Площа:
25.00 м2
Тип об’єкта:
Приміщення
Тип аукціону:
Англійський аукціон
Статус аукціону:
Аукціон не відбувся
Тип угоди:
Оренда
Розмір мінімального кроку:
50.00 ₴
Розмір гарантійного внеску:
977.10 ₴
Початок прийому пропозицій:
19.06.2025 17:15:19
Завершення прийому пропозицій:
22.07.2025 20:00:00
Проведення аукціону:
23.07.2025 12:30:00
Лот:
CLE001-UA-20250619-55499
№ лоту (УТК):
UTK160525_04U
Лот виставляється на торги (раз):
2
Стислий опис майна:
Пропонується до оренди приміщення цокольного поверху площею 25,0 кв.м. Будівля в центрі міста Харкова. 15 хв до метро Центральний ринок. Характеристики: Кількість поверхів – 4; Загальна площа – 5611,00 кв.м_ Площа запропонована до оренди – 25,0 кв.м Дозволена потужність – 1,0 кВт Теплопостачання - відсутнє Земельна ділянка – 0,5169 га
Адреса місцезнаходження майна:
Україна, Харківська обл., Харків, вулиця Конторська, 14
Схожі пропозиції
11.12.2024
м. Харків, вул. Конторська,14.Оренда – приміщення 2-го поверху площею 36,2 кв.м (В)
2 508.66 грн
69.30 грн / м2
Приміщення
м. Харків, вул. Конторська,14.Оренда – приміщення 2-го поверху площею 36,2 кв.м (В)
Україна, Харківська обл., м. Харків, вул. Конторська,14
05.06.2024
ДОВГОСТРОКОВА ОРЕНДА! м. Харків, вул. Сумгаїтська, 9а.Оренда – приміщення 4-го поверху, площею 643,1 кв.м (В)
55 100.81 грн
85.68 грн / м2
Приміщення
ДОВГОСТРОКОВА ОРЕНДА! м. Харків, вул. Сумгаїтська, 9а.Оренда – приміщення 4-го поверху, площею 643,1 кв.м (В)
Україна, Харківська обл., м. Харків, вул. Сумгаїтська, 9а
16.04.2024
м.Харків, вул. Старошишківська, 5а. Оренда – приміщення першого поверху площею 45,8 кв.м (П)
2 926.16 грн
63.89 грн / м2
Приміщення
м.Харків, вул. Старошишківська, 5а. Оренда – приміщення першого поверху площею 45,8 кв.м (П)
Україна, Харківська обл., м. Харків, вул. Старошишківська, 5а
15.07.2025
Харківська обл., Ізюмський р-н, смт. Донець, вул. Центральна, 42. Оренда – приміщення 2-го поверху площею 171,5 кв.м. (В)
2 058.00 грн
12.00 грн / м2
Приміщення
Харківська обл., Ізюмський р-н, смт. Донець, вул. Центральна, 42. Оренда – приміщення 2-го поверху площею 171,5 кв.м. (В)
Україна, Харківська обл., Ізюмський р-н, смт. Донець, вул. Центральна, 42