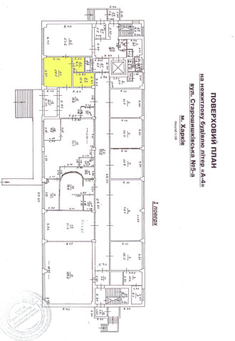
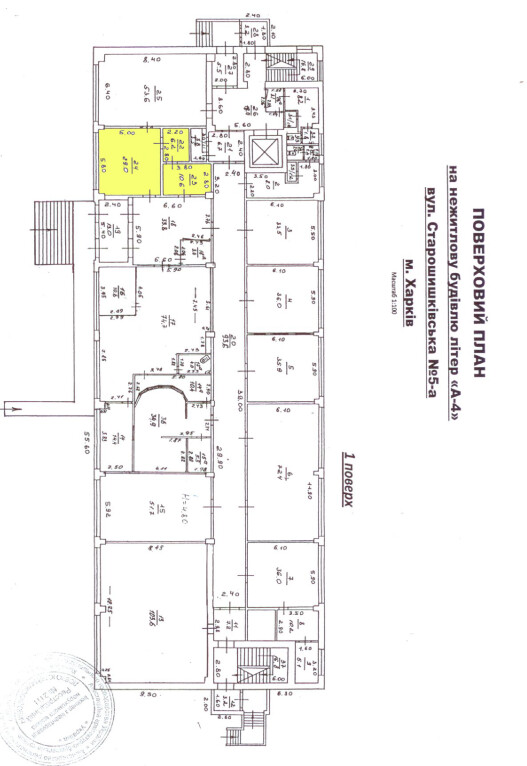
м.Харків, вул. Старошишківська, 5а. Оренда – приміщення першого поверху площею 45,8 кв.м (П)

2 926.16 грн
63.89 грн / м2
Україна, Харківська обл., м. Харків, вул. Старошишківська, 5а
Перейти до аукціону на сайті
  • Інформація
  • Опис
  • Документи
Дата оголошення пропозиції:
15 березня 2024
Площа:
45.80 м2
Тип об’єкта:
Приміщення
Тип аукціону:
Англійський аукціон
Статус аукціону:
Аукціон не відбувся
Тип угоди:
Оренда
Розмір мінімального кроку:
100.00 ₴
Розмір гарантійного внеску:
1 755.70 ₴
Початок прийому пропозицій:
15.03.2024 12:16:25
Завершення прийому пропозицій:
15.04.2024 20:00:00
Проведення аукціону:
16.04.2024 11:50:00
Лот:
CLE001-UA-20240315-20285
№ лоту (УТК):
UTK050124_11P
Лот виставляється на торги (раз):
2
Стислий опис майна:
Пропонується до оренди приміщення першого поверху площею 45,8 кв.м. Будівля в спальному районі міста Харкова. 10 хв до зупинки транспорту. Характеристики: Кількість поверхів – 4; Загальна площа – 4632,80 кв.м_ Площа запропонована до оренди -45,8 кв.м, Дозволена потужність – 4,0 кВт Теплопостачання-відсутнє Земельна ділянка – 0,3999 га
Адреса місцезнаходження майна:
Україна, Харківська обл., м. Харків, вул. Старошишківська, 5а
Схожі пропозиції
03.06.2025
Харківська обл., м. Лозова, вул. Михайла Грушевського, 7. Оренда – приміщення на 1-му поверсі площею 224,2 кв.м. (В)
2 689.20 грн
11.99 грн / м2
Приміщення
Харківська обл., м. Лозова, вул. Михайла Грушевського, 7. Оренда – приміщення на 1-му поверсі площею 224,2 кв.м. (В)
Україна, Харківська обл., м. Лозова, вул. Михайла Грушевського, 7
16.03.2023
м. Харків, просп. Олександрівський, 83. Оренда – приміщення 3 поверху площею 16,40 кв.м. (В)
895.44 грн
54.60 грн / м2
Приміщення
м. Харків, просп. Олександрівський, 83. Оренда – приміщення 3 поверху площею 16,40 кв.м. (В)
Україна, Харківська обл., м. Харків, просп. Олександрівський, 83
12.07.2024
Харківська обл., м. Лозова, вул. Михайла Грушевського, 7. Оренда – приміщення на 1-му поверсі площею 265,3 кв.м. (В)
3 183.60 грн
12.00 грн / м2
Приміщення
Харківська обл., м. Лозова, вул. Михайла Грушевського, 7. Оренда – приміщення на 1-му поверсі площею 265,3 кв.м. (В)
Україна, Харківська обл., м. Лозова, вул. Михайла Грушевського, 7
Харківська обл., Харківський р-н, м. Мерефа, вул. Дніпровська, 226. Оренда – приміщення 2-го поверху площею 85,80 кв.м. (В)
2 975.54 грн
34.68 грн / м2
Приміщення
Харківська обл., Харківський р-н, м. Мерефа, вул. Дніпровська, 226. Оренда – приміщення 2-го поверху площею 85,80 кв.м. (В)
Україна, Харківська обл., Харківський р-н, м. Мерефа, вул. Дніпровська, 226
Переглянуті пропозиції
22.04.2025
Харківська обл., м. Харків, вул. Коцарська, 45, літер «А-4»;   Оренда – приміщення на 4-му поверсі загальною площею 73,60 кв.м. (В)
2 208.00 грн
30.00 грн / м2
Приміщення
Харківська обл., м. Харків, вул. Коцарська, 45, літер «А-4»; Оренда – приміщення на 4-му поверсі загальною площею 73,60 кв.м. (В)
Україна, Харківська обл., Харків, вулиця Коцарська, 45, літер «А-4»
21.08.2024
м. Харків, вул. Старошишківська, 5а. Оренда – приміщення 1-го поверху площею 103,6 кв.м. (В)
5 642.06 грн
54.46 грн / м2
Приміщення
м. Харків, вул. Старошишківська, 5а. Оренда – приміщення 1-го поверху площею 103,6 кв.м. (В)
Україна, Харківська обл., м. Харків, вул. Старошишківська, 5а
30.07.2024
Закарпатська обл., Мукачівського р-н., с. Дусино, вул. Миру, 156-А;   Оренда – приміщення 1-го поверху площею 12,4 кв. м. (В)
272.80 грн
22.00 грн / м2
Приміщення
Закарпатська обл., Мукачівського р-н., с. Дусино, вул. Миру, 156-А; Оренда – приміщення 1-го поверху площею 12,4 кв. м. (В)
Україна, Закарпатська обл., Дусино, вул. Миру, 156-А
15.10.2025
Полтавська обл., Полтавський р-н, смт. Диканька, вулиця Незалежності, 93. Оренда – приміщення загальною площею 59,10 кв.м. (В)
917.82 грн
15.53 грн / м2
Приміщення
Полтавська обл., Полтавський р-н, смт. Диканька, вулиця Незалежності, 93. Оренда – приміщення загальною площею 59,10 кв.м. (В)
Україна, Полтавська обл., Диканька, вулиця Незалежності, 93