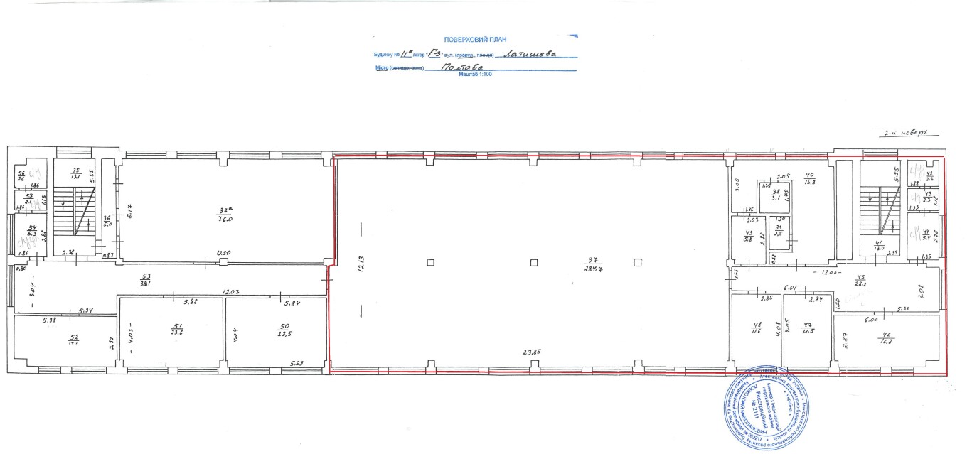
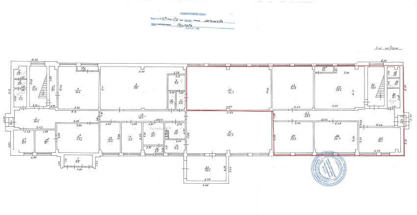
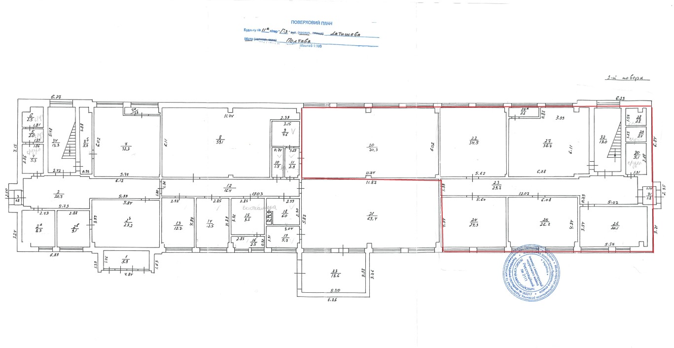
Полтавська обл., м. Полтава, провулок Латишева, буд. 11-А. Оренда – Частина будівлі площею 1287,60 кв.м. (В)

59 487.12 грн
46.20 грн / м2
Україна, Полтавська обл., м. Полтава, провулок Латишева, буд. 11-А
Перейти до аукціону на сайті
  • Інформація
  • Опис
  • Документи
Дата оголошення пропозиції:
06 березня 2023
Площа:
1287.60 м2
Тип об’єкта:
Будівля
Тип аукціону:
Англійський аукціон
Статус аукціону:
Аукціон не відбувся
Тип угоди:
Оренда
Розмір мінімального кроку:
800.00 ₴
Розмір гарантійного внеску:
35 692.27 ₴
Початок прийому пропозицій:
06.03.2023 16:39:29
Завершення прийому пропозицій:
05.04.2023 20:00:00
Проведення аукціону:
06.04.2023 11:35:00
Лот:
CLE001-UA-20230306-59586
№ лоту (УТК):
UTK020821_21P
Лот виставляється на торги (раз):
10
Стислий опис майна:
Пропонується до оренди частина будівлі площею 1287,60 кв.м. Приміщення знаходяться на 1,2 та 3 поверсі 3-поверхової будівлі, яка розташована в районі наближеному до центру м. Полтава. Вхід з вулиці. Доступ 24/7 Характеристики: Кількість поверхів – 3; Загальна площа – 1911,90 кв.м.; Площа запропонована до оренди 1287,60 кв.м.; Опалення – наявне; Дозволена потужність – до 5 кВт; Земельна ділянка – 0,1739 га (договір оренди).
Адреса місцезнаходження майна:
Україна, Полтавська обл., м. Полтава, провулок Латишева, буд. 11-А
Схожі пропозиції
15.10.2025
Полтавська обл., Лубенський р-н, с. Козубівка, вул. Шевченка, буд. 25. Оренда – частина будівлі площею 42,40 кв.м. (В)
508.80 грн
12.00 грн / м2
Будівля
Полтавська обл., Лубенський р-н, с. Козубівка, вул. Шевченка, буд. 25. Оренда – частина будівлі площею 42,40 кв.м. (В)
Україна, Полтавська обл., Козубівка, вул. Шевченка, буд. 25
Полтавська обл., Лубенський р-н, с. Засулля, вул. Молодіжна, буд.20. Оренда – одноповерхова будівля площею 189,80 кв.м. (В)
502.97 грн
2.65 грн / м2
Будівля
Полтавська обл., Лубенський р-н, с. Засулля, вул. Молодіжна, буд.20. Оренда – одноповерхова будівля площею 189,80 кв.м. (В)
Україна, Полтавська обл., Лубенський р-н, с. Засулля, вул. Молодіжна, буд.20
18.08.2022
Полтавська обл., Кременчуцький р-н, с. Погреби, вул. Шевченка, буд.72. Оренда – Будівля площею 64,90 кв.м. (В)
500.38 грн
7.71 грн / м2
Будівля
Полтавська обл., Кременчуцький р-н, с. Погреби, вул. Шевченка, буд.72. Оренда – Будівля площею 64,90 кв.м. (В)
Україна, Полтавська обл., Кременчуцький р-н, с. Погреби, вул. Шевченка, буд.72
Переглянуті пропозиції
Полтавська обл., м. Решетилівка, вул. Полтавська, 50. Оренда - підсобне приміщення та гараж
965.76 грн
19.20 грн / м2
Приміщення
Полтавська обл., м. Решетилівка, вул. Полтавська, 50. Оренда - підсобне приміщення та гараж
Україна, Полтавська обл., м. Решетилівка, вул. Полтавська, буд. 50
м. Харків, вул. Салтівське шосе, 2 Оренда приміщення 63,0 кв.м., 1 пов.
1 161.09 грн
18.43 грн / м2
Приміщення
м. Харків, вул. Салтівське шосе, 2 Оренда приміщення 63,0 кв.м., 1 пов.
Україна, Харківська обл., м. Харків, вул. Салтівське шосе, 2
Сумська обл., смт. Липова Долина, вул. Загорянка, буд. 2. Оренда – офісне приміщення 2-го поверху площею 12,36 кв.м. (В)
277.36 грн
22.44 грн / м2
Офіс
Сумська обл., смт. Липова Долина, вул. Загорянка, буд. 2. Оренда – офісне приміщення 2-го поверху площею 12,36 кв.м. (В)
Україна, Сумська обл., смт. Липова Долина, вул. Загорянка, буд. 2