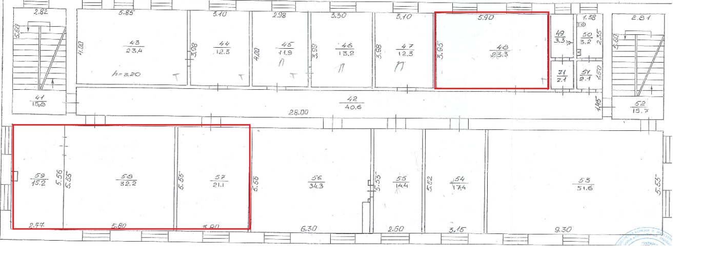
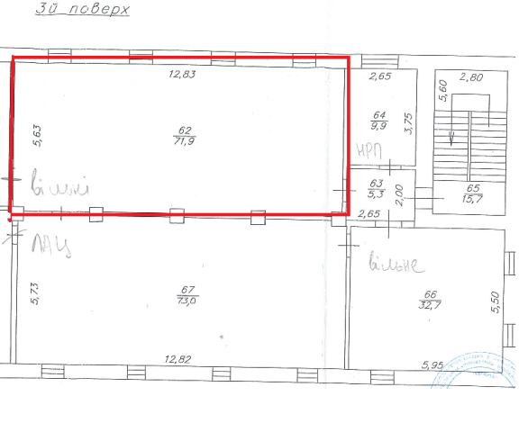
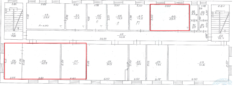
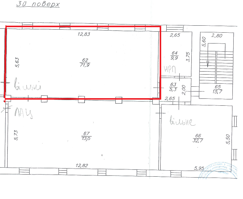
Рівненська обл., м. Дубровиця, вул. Шевченка, 53. Оренда – приміщення 2-го та 3-го поверху площею 163,7 кв.м. (В)

1 715.58 грн
10.48 грн / м2
Україна, Рівненська обл., м. Дубровиця, вул. Шевченка, 53
Перейти до аукціону на сайті
  • Інформація
  • Опис
  • Документи
Дата оголошення пропозиції:
22 березня 2023
Площа:
163.70 м2
Тип об’єкта:
Приміщення
Тип аукціону:
Англійський аукціон
Статус аукціону:
Аукціон не відбувся
Тип угоди:
Оренда
Розмір мінімального кроку:
100.00 ₴
Розмір гарантійного внеску:
1 029.35 ₴
Початок прийому пропозицій:
22.03.2023 11:31:22
Завершення прийому пропозицій:
20.04.2023 20:00:00
Проведення аукціону:
21.04.2023 11:35:00
Лот:
CLE001-UA-20230322-72981
№ лоту (УТК):
UTK011122_03P
Лот виставляється на торги (раз):
5
Стислий опис майна:
Пропонуються до оренди приміщення 2-го та 3-го поверху площею 163,7 кв.м. Будівля знаходиться в центрі міста, розвинена інфраструктура, поряд відділення Укрпошти та Ощадбанку, магазини та адміністративні приміщення. Вхід в приміщення спільний. Територія огороджена та частково впорядкована. Потребує реконструкції системи електроживлення. Характеристики: Кількість поверхів – 3; Загальна площа – 1149,3 кв.м.; Площа, запропонована до оренди – 163,7 кв.м.; Земельна ділянка - площа 0,1345 га.(договір оренди)
Адреса місцезнаходження майна:
Україна, Рівненська обл., м. Дубровиця, вул. Шевченка, 53
Схожі пропозиції
27.07.2020
Рівненська обл., м. Рівне вул. В. Чорновола, 1 Оренда - приміщення 3-го поверху 35,9 кв.м.
1 943.63 грн
54.14 грн / м2
Приміщення
Рівненська обл., м. Рівне вул. В. Чорновола, 1 Оренда - приміщення 3-го поверху 35,9 кв.м.
Україна, Рівненська обл., м. Рівне, вул. В. Чорновола, 1
Рівненська обл., м. Костопіль вул. Грушевського, 34. Оренда – приміщення 2 поверху, площею 13,1 кв.м. (В)
500.03 грн
38.17 грн / м2
Приміщення
Рівненська обл., м. Костопіль вул. Грушевського, 34. Оренда – приміщення 2 поверху, площею 13,1 кв.м. (В)
Україна, Рівненська обл., м. Костопіль, вул. Грушевського, 34
Рівненська обл., м. Рівне, вул. Боярка 54-А. Оренда - складські приміщення площею 174,7 кв.м. (В)
2 166.28 грн
12.40 грн / м2
Приміщення
Рівненська обл., м. Рівне, вул. Боярка 54-А. Оренда - складські приміщення площею 174,7 кв.м. (В)
Україна, Рівненська обл., м. Рівне, вул. Боярка 54-А
м. Рівне, вул. Орлова, 37. Оренда приміщень 3-го поверху
16 069.60 грн
21.20 грн / м2
Приміщення
м. Рівне, вул. Орлова, 37. Оренда приміщень 3-го поверху
Україна, Рівненська обл., м. Рівне, вул. Орлова, 37
Переглянуті пропозиції
11.10.2023
м. Харків, пр-т. Г. Сталінграду, 169. Оренда – приміщення 2-го поверху площею 5,5 кв.м. (В)
522.50 грн
95.00 грн / м2
Приміщення
м. Харків, пр-т. Г. Сталінграду, 169. Оренда – приміщення 2-го поверху площею 5,5 кв.м. (В)
Україна, Харківська обл., м. Харків, пр-т. Г. Сталінграду, 169