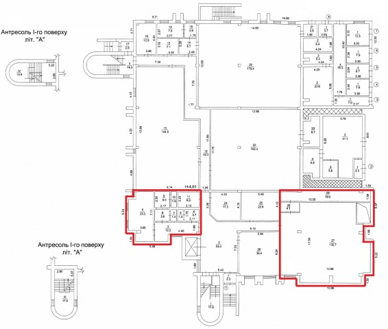
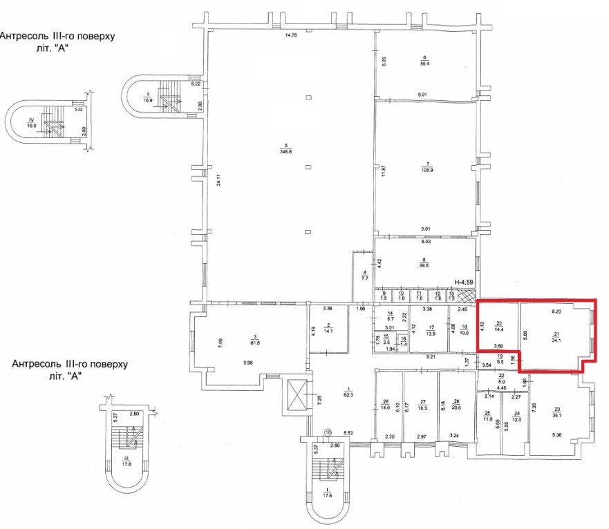
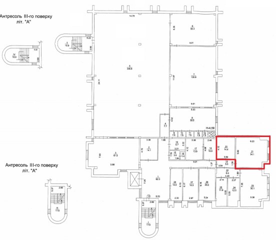
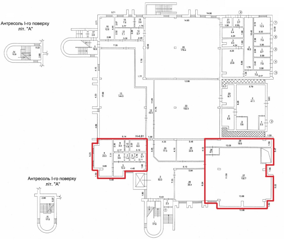
м. Київ, вул. Архітектора Вербицького, 3. Оренда – приміщення 1-го та 3-го поверху площею 263,7 м2 (В)

14 429.66 грн
54.72 грн / м2
Україна, м.Київ, Київ, вулиця Архітектора Вербицького, 3
Перейти до аукціону на сайті
  • Інформація
  • Опис
  • Документи
Дата оголошення пропозиції:
07 квітня 2023
Площа:
263.70 м2
Тип об’єкта:
Приміщення
Тип аукціону:
Англійський аукціон
Статус аукціону:
Аукціон не відбувся
Тип угоди:
Оренда
Розмір мінімального кроку:
200.00 ₴
Розмір гарантійного внеску:
8 657.80 ₴
Початок прийому пропозицій:
07.04.2023 13:47:41
Завершення прийому пропозицій:
10.05.2023 20:00:00
Проведення аукціону:
11.05.2023 11:05:00
Лот:
CLE001-UA-20230407-94549
№ лоту (УТК):
UTK181122_01T
Лот виставляється на торги (раз):
5
Стислий опис майна:
Пропонується до оренди приміщення 1-го та 3-го поверху площею 263,7 м2 . Будівля знаходиться в Дарницькому районі міста Києва, житловий масив Харківський. Зупинки маршрутного транспорту, супермаркети, торгово-розважальні центри. Найближчі станції метро «Харківська», «Вирлиця». Вхід з двору. Характеристики: • загальна площа будівлі – 4804,7 м2 ; • кількість поверхів – 5; • опалення централізоване (міське); • земельна ділянка – 0,5530 га; • каналізація, водозабезпечення, сан. вузол – присутні
Адреса місцезнаходження майна:
Україна, м.Київ, Київ, вулиця Архітектора Вербицького, 3
Схожі пропозиції
м. Київ, вул. Антоновича, 40. Оренда – приміщення 1-го поверху, площею 66,60 кв.м. (В)
38 819.14 грн
582.87 грн / м2
Приміщення
м. Київ, вул. Антоновича, 40. Оренда – приміщення 1-го поверху, площею 66,60 кв.м. (В)
Україна, м.Київ, м. Київ, вул. Антоновича, 40
09.09.2025
02091, м. Київ, вул. Архітектора Вербицького, 3 (Дарницький р-н). Оренда – Приміщення 3-го поверху, площею 198,10 кв.м. (В)
16 260.05 грн
82.08 грн / м2
Приміщення
02091, м. Київ, вул. Архітектора Вербицького, 3 (Дарницький р-н). Оренда – Приміщення 3-го поверху, площею 198,10 кв.м. (В)
Україна, м.Київ, Київ, 02091, м. Київ, вул. Архітектора Вербицького , 3
27.11.2025
м. Київ, вул. Дегтярівська, 28А, літ. «А» (Шевченківський р-н). Оренда – група приміщень у підвалі, загальною площею – 269,80 кв.м (В)
49 260.08 грн
182.58 грн / м2
Приміщення
м. Київ, вул. Дегтярівська, 28А, літ. «А» (Шевченківський р-н). Оренда – група приміщень у підвалі, загальною площею – 269,80 кв.м (В)
Україна, м.Київ, Київ, вул. Дегтярівська, 28А, літ. «А»
09.07.2025
м. Київ, вул. Наталії Ужвій 1 (Подільський р-н). Оренда – приміщення 1-го поверху, загальною площею – 65,60 м. кв. (В)
6 006.34 грн
91.56 грн / м2
Приміщення
м. Київ, вул. Наталії Ужвій 1 (Подільський р-н). Оренда – приміщення 1-го поверху, загальною площею – 65,60 м. кв. (В)
Україна, м.Київ, Київ, 04108, м. Київ, вул. Наталії Ужвій 1
Переглянуті пропозиції
26.11.2025
Полтавська обл., м. Зіньків, вулиця Воздвиженська, 36. Оренда – приміщення 3-го поверху площею 10,10 кв.м. (В)
505.00 грн
50.00 грн / м2
Приміщення
Полтавська обл., м. Зіньків, вулиця Воздвиженська, 36. Оренда – приміщення 3-го поверху площею 10,10 кв.м. (В)
Україна, Полтавська обл., м. Зіньків, вулиця Воздвиженська, 36
26.11.2025
м. Харків, пр-т Ювілейний,66. Оренда – приміщення 2-го поверху площею 10,8 кв.м (В)
572.83 грн
53.04 грн / м2
Приміщення
м. Харків, пр-т Ювілейний,66. Оренда – приміщення 2-го поверху площею 10,8 кв.м (В)
Україна, Харківська обл., м. Харків, пр-т Ювілейний,66